Metrodom

Eladó családi ház
Veresegyház

+ 9 kép 1/12
146 000 000 Ft146 M Ft 1 123 077 Ft/m2
3 szoba
130 m2
építés éve:2025

Részletes adatok

Telekméret: 698 m2
Fűtés: Egyéb
Energetikai besorolás: Nem adta meg a hirdető

Az OTP Bank lakáshitel ajánlataFizetett hirdetés

+36 20 921
Czafit Márton
OTPIP I. kerület Zsolt utcai iroda

Érdekel az OTP Bank kedvezményes lakáshitel ajánlata? *

* A kérdésre „Igen” válasz bejelölése esetén, az „Üzenet küldése” gombra kattintva kijelentem, hogy az OTP Bank Nyrt. Adatkezelési tájékoztatójának tartalmát megismertem és tudomásul vettem.

Eladó családi ház leírása

ÚJ ÉPÍTÉSŰ, DUPLA KOMFORTOS CSALÁDI HÁZ VERESEGYHÁZ SZÍVÉBEN ? CSOK PLUSZ ÉS OSP HITEL IGÉNYBE VEHETŐ!

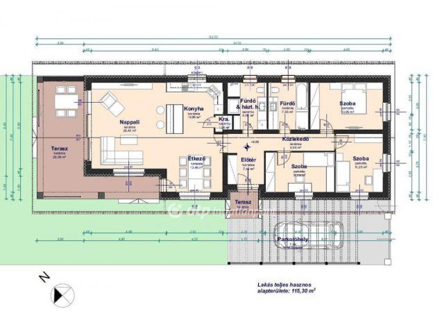
Veresegyház központjában, csendes, aszfaltozott utcában eladó egy 115,3 m2 + 30 m2 terasz, egy szintes, modern, energiatakarékos családi ház 698 m2-es telken.
Cég által épített ingatlan - igényesség és megbízhatóság garantált, referenciaházak megtekinthetők!

A ház 2025-ben épül, átadás 2026 III. negyedévében várható.
Az épület 30 cm-es tégla falazattal és 15 cm grafitos szigeteléssel készül, betoncserép tetővel, háromrétegű nyílászárókkal, elektromos alumínium redőnyökkel és szúnyoghálóval felszerelve.

MŰSZAKI FELSZERELTSÉG:

- Concept 8 kW hőszivattyú padlófűtéssel

- Fan-coil hűtés / inverteres klíma (választható)

- Napelem előkészítés

- H-tarifás mérőóra (1x32 A)

- Pergolás, motorizált kapus kocsibeálló, viacolor burkolattal

- Választható burkolatok, szaniterek és belső ajtók

ELRENDEZÉS:

Amerikai konyhás, 50 m2-es nappali?étkező?konyha, 3 hálószoba, 2 fürdőszoba, háztartási helyiség, kamra, előtér, közlekedő, + 30 m2-es fedett terasz.
Az alaprajz igény szerint módosítható - akár plusz szobával vagy garázzsal is bővíthető!

KÖRNYÉK:

Csendes, átmenő forgalomtól mentes mellékutca a központ közelében.
Pár perces sétával elérhető iskola, óvoda, bolt, buszmegálló, vasútállomás, orvosi rendelő, posta.

FINANSZÍROZÁS:

A ház CSOK Plusz, Babaváró és 3%-os Otthon Start hitel igénybevételével is megvásárolható.
A teljes ügyintézésben díjmentesen segítünk!

Minőségi kivitelezés, modern technológia, alacsony rezsi - Veresegyház egyik legjobb helyén!
Érdeklődj még ma, és valósítsd meg álmaid otthonát 2026-ra!

M313623

Hirdetés feltöltve: 2025. 10. 14. Utoljára módosítva: 2025. 11. 02.

3 szobás családi házak ára Veresegyházon

Ebből az összehasonlításból megtudhatod, hogyan viszonyul a lakás ára a környékbeli családi házak átlagos árához. Ez nem azt jelenti, hogy ennyivel olcsóbb vagy drágább, mint amennyit a lakás ér, hanem hogy ennyivel tér el a környékbeli átlagtól.

Ennek a m² ára
Veresegyház m² ár
1123 e Ft
979 e Ft -15%
Ennek az ára
Veresegyház átlagár
146 M Ft m Ft
102.4 m Ft -43%

Az ingatlan elhelyezkedése

Cím: Veresegyház

Eladó családi házak a környékről

Eladó családi ház
Eladó családi ház

Dunakeszi

250 M Ft
4 szoba
180 m2
Eladó családi ház
Eladó családi ház

Veresegyház

139 M Ft
7 szoba
240 m2
Eladó családi ház
Eladó családi ház

Budakeszi, Makkosmária

100 M Ft
1 szoba
10 m2
Eladó családi ház
Eladó családi ház

Budaörs, Odvshegy utca

268.9 M Ft
5 szoba
235 m2
Eladó családi ház
Eladó családi ház

Budakeszi

130 M Ft
5 szoba
30 m2
Eladó családi ház
Eladó családi ház

Veresegyház

145.5 M Ft
5 szoba
136 m2
Eladó családi ház
Eladó családi ház

Veresegyház

89 M Ft
1020 m²
199 m2
Eladó családi ház
Eladó családi ház

Tápiószentmárton

48 M Ft
5 szoba
180 m2
Eladó családi ház
Eladó családi ház

Dunavarsány

69.9 M Ft
3 + 1 szoba
140 m2
Eladó családi ház
Eladó családi ház

Tápiószentmárton

7.9 M Ft
2 + 1 szoba
86 m2
Eladó családi ház
Eladó családi ház

Tápiószele

32.9 M Ft
4 szoba
200 m2
Eladó családi ház
Eladó családi ház

Veresegyház

149.9 M Ft
2 szoba
280 m2
Eladó családi ház
Eladó családi ház

Veresegyház

149.9 M Ft
2 szoba
280 m2
Eladó családi ház
Eladó családi ház

Budaörs, Városközpont utca

119.5 M Ft
5 + 1 szoba
140 m2
Eladó családi ház
Eladó családi ház

Veresegyház

89 M Ft
10 szoba
199 m2
Eladó családi ház
Eladó családi ház

Veresegyház

149.9 M Ft
6 szoba
266 m2
Eladó családi ház
Eladó családi ház

Veresegyház

136 M Ft
5 szoba
198 m2
Eladó családi ház
Eladó családi ház

Remeteszőlős

399.9 M Ft
5 + 2 szoba
260 m2
Eladó családi ház
Eladó családi ház

Veresegyház

59.9 M Ft
2 szoba
60 m2
Eladó családi ház
Eladó családi ház

Budakeszi, Budakeszi kertváros

140 M Ft
2 szoba
55 m2
Eladó családi ház
Eladó családi ház

Veresegyház

157 M Ft
6 szoba
250 m2
Eladó családi ház
Eladó családi ház

Érd

164.9 M Ft
5 szoba
192 m2
Eladó családi ház
Eladó családi ház

Kerepes

199 M Ft
6 szoba
360 m2
Eladó családi ház
Eladó családi ház

Veresegyház

145.5 M Ft
5 szoba
148 m2

Falusi CSOK ingatlanok

Eladó családi ház
Eladó családi ház

Ceglédbercel, Iskola utca

79.99 M Ft
5 szoba
90 m2
Eladó családi ház
Eladó családi ház

Törtel

25.9 M Ft
5 szoba
95 m2
Eladó családi ház
Eladó családi ház

Szabadbattyán

136 M Ft
5 szoba
226 m2
Eladó téglalakás
Eladó téglalakás

Balatonszemes

86.8 M Ft
2 szoba
58 m2
Eladó családi ház
Eladó családi ház

Ceglédbercel

95 M Ft
6 szoba
220 m2
Eladó családi ház
Eladó családi ház

Dunaszentbenedek

24.9 M Ft
2 szoba
85 m2
Eladó családi ház
Eladó családi ház

Vásárosdombó

14.99 M Ft
2 szoba
69 m2
Eladó családi ház
Eladó családi ház

Csörötnek

199 M Ft
6 szoba
286 m2