Eladó családi ház
Veresegyház

+ 9 kép 1/12
146 000 000 Ft146 M Ft 1 123 077 Ft/m2
3 szoba
130 m2
építés éve:2025

Részletes adatok

Telekméret: 698 m2
Fűtés: Egyéb
Energetikai besorolás: Nem adta meg a hirdető

Az OTP Bank lakáshitel ajánlataFizetett hirdetés

+36 70 206
Tamásné Mocsári Ildikó
referens

Érdekel az OTP Bank kedvezményes lakáshitel ajánlata? *

* A kérdésre „Igen” válasz bejelölése esetén, az „Üzenet küldése” gombra kattintva kijelentem, hogy az OTP Bank Nyrt. Adatkezelési tájékoztatójának tartalmát megismertem és tudomásul vettem.

Eladó családi ház leírása

ÚJ ÉPÍTÉSŰ, DUPLA KOMFORTOS CSALÁDI HÁZ VERESEGYHÁZ SZÍVÉBEN ? CSOK PLUSZ ÉS OSP HITEL IGÉNYBE VEHETŐ!

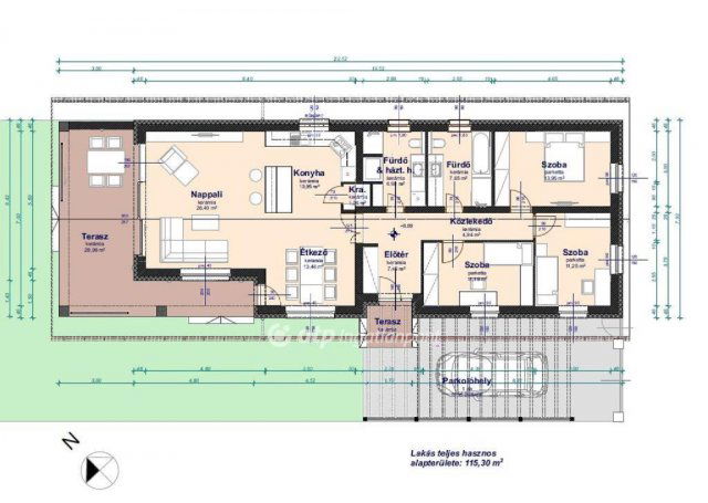
Veresegyház központjában, csendes, aszfaltozott utcában eladó egy 115,3 m2 + 30 m2 terasz, egy szintes, modern, energiatakarékos családi ház 698 m2-es telken.
Cég által épített ingatlan - igényesség és megbízhatóság garantált, referenciaházak megtekinthetők!

A ház 2025-ben épül, átadás 2026 III. negyedévében várható.
Az épület 30 cm-es tégla falazattal és 15 cm grafitos szigeteléssel készül, betoncserép tetővel, háromrétegű nyílászárókkal, elektromos alumínium redőnyökkel és szúnyoghálóval felszerelve.

MŰSZAKI FELSZERELTSÉG:

- Concept 8 kW hőszivattyú padlófűtéssel

- Fan-coil hűtés / inverteres klíma (választható)

- Napelem előkészítés

- H-tarifás mérőóra (1x32 A)

- Pergolás, motorizált kapus kocsibeálló, viacolor burkolattal

- Választható burkolatok, szaniterek és belső ajtók

ELRENDEZÉS:

Amerikai konyhás, 50 m2-es nappali?étkező?konyha, 3 hálószoba, 2 fürdőszoba, háztartási helyiség, kamra, előtér, közlekedő, + 30 m2-es fedett terasz.
Az alaprajz igény szerint módosítható - akár plusz szobával vagy garázzsal is bővíthető!

KÖRNYÉK:

Csendes, átmenő forgalomtól mentes mellékutca a központ közelében.
Pár perces sétával elérhető iskola, óvoda, bolt, buszmegálló, vasútállomás, orvosi rendelő, posta.

FINANSZÍROZÁS:

A ház CSOK Plusz, Babaváró és 3%-os Otthon Start hitel igénybevételével is megvásárolható.
A teljes ügyintézésben díjmentesen segítünk!

Minőségi kivitelezés, modern technológia, alacsony rezsi - Veresegyház egyik legjobb helyén!
Érdeklődj még ma, és valósítsd meg álmaid otthonát 2026-ra!

M313623

Referencia szám: M313623-ZE

Hirdetés feltöltve: 2025. 10. 09.

3 szobás családi házak ára Veresegyházon

Ebből az összehasonlításból megtudhatod, hogyan viszonyul a lakás ára a környékbeli családi házak átlagos árához. Ez nem azt jelenti, hogy ennyivel olcsóbb vagy drágább, mint amennyit a lakás ér, hanem hogy ennyivel tér el a környékbeli átlagtól.

Ennek a m² ára
Veresegyház m² ár
1123 e Ft
937 e Ft -20%
Ennek az ára
Veresegyház átlagár
146 M Ft m Ft
96.8 m Ft -51%

Az ingatlan elhelyezkedése

Cím: Veresegyház

Eladó családi házak a környékről

Eladó családi ház
Eladó családi ház

Veresegyház

149.9 M Ft
6 szoba
266 m2
Eladó családi ház
Eladó családi ház

Budaörs, Bányász utca

385 M Ft
6 szoba
300 m2
Eladó családi ház
Eladó családi ház

Gyál, Gyál út

169.9 M Ft
2 szoba
90 m2
Eladó családi ház
Eladó családi ház

Veresegyház

89 M Ft
1020 m²
199 m2
Eladó családi ház
Eladó családi ház

Remeteszőlős

399.9 M Ft
5 + 2 szoba
260 m2
Eladó családi ház
Eladó családi ház

Veresegyház

149.9 M Ft
4 szoba
260 m2
Eladó családi ház
Eladó családi ház

Dunakeszi

250 M Ft
4 szoba
180 m2
Eladó családi ház
Eladó családi ház

Veresegyház

149.9 M Ft
2 szoba
280 m2
Eladó családi ház
Eladó családi ház

Veresegyház

145.5 M Ft
5 szoba
136 m2
Eladó családi ház
Eladó családi ház

Veresegyház

145.5 M Ft
5 szoba
148 m2
Eladó családi ház
Eladó családi ház

Leányfalu

237 M Ft
9 szoba
800 m2
Eladó családi ház
Eladó családi ház

Veresegyház

149.9 M Ft
2 szoba
280 m2
Eladó családi ház
Eladó családi ház

Veresegyház

136.8 M Ft
3 + 2 szoba
181 m2
Eladó családi ház
Eladó családi ház

Veresegyház, Salamon utca

119.9 M Ft
4 szoba
160 m2
Eladó családi ház
Eladó családi ház

Veresegyház

104.99 M Ft
5 szoba
133 m2
Eladó családi ház
Eladó családi ház

Kerepes

81.99 M Ft
5 szoba
102 m2
Eladó családi ház
Eladó családi ház

Budakeszi

130 M Ft
5 szoba
30 m2
Eladó családi ház
Eladó családi ház

Veresegyház

220 M Ft
6 szoba
277 m2
Eladó családi ház
Eladó családi ház

Veresegyház

149.9 M Ft
4 szoba
280 m2
Eladó családi ház
Eladó családi ház

Veresegyház

149 M Ft
6 szoba
250 m2
Eladó családi ház
Eladó családi ház

Budakeszi, Budakeszi kertváros

229 M Ft
10 szoba
450 m2
Eladó családi ház
Eladó családi ház

Veresegyház

145.5 M Ft
5 szoba
136 m2
Eladó családi ház
Eladó családi ház

Szigetszentmiklós, Városközpont, Tököli út közeli utca

120 M Ft
7 szoba
525 m2
Eladó családi ház
Eladó családi ház

Veresegyház

59.9 M Ft
2 szoba
60 m2

Falusi CSOK ingatlanok

Eladó téglalakás
Eladó téglalakás

Balatonszemes

91.5 M Ft
2 szoba
60 m2
Eladó téglalakás
Eladó téglalakás

Balatonszemes

110.9 M Ft
2 szoba
60 m2
Eladó téglalakás
Eladó téglalakás

Besnyő

54.9 M Ft
2 + 1 szoba
56 m2
Eladó családi ház
Eladó családi ház

Szalánta, Hunyadi

41.9 M Ft
3 + 1 szoba
120 m2
Eladó családi ház
Eladó családi ház

Magyarszék

48.5 M Ft
3 + 1 szoba
86 m2
Eladó családi ház
Eladó családi ház

Csátalja, Kossuth Lajos utca

41.9 M Ft
3 szoba
90 m2
Eladó téglalakás
Eladó téglalakás

Hegyeshalom

28 M Ft
1 szoba
29 m2
Eladó családi ház
Eladó családi ház

Pilisszentkereszt

139 M Ft
5 szoba
220 m2