River Life

Eladó családi ház
Velence

+ 11 kép 1/14
69 000 000 Ft69 M Ft 690 000 Ft/m2
4 szoba
100 m²
építés éve:1976

Részletes adatok

Állapot: Átlagos
Telekméret: 473 m2
Fűtés: Gázkazán
Energetikai besorolás: F

Az OTP Bank lakáshitel ajánlataFizetett hirdetés

+36 20 487
Darnai Henrietta
referens

Érdekel az OTP Bank kedvezményes lakáshitel ajánlata? *

* A kérdésre „Igen” válasz bejelölése esetén, az „Üzenet küldése” gombra kattintva kijelentem, hogy az OTP Bank Nyrt. Adatkezelési tájékoztatójának tartalmát megismertem és tudomásul vettem.

Eladó családi ház leírása

Velence csendes környékén, Újtelepen kínálunk eladásra egy felújítandó családiházat.
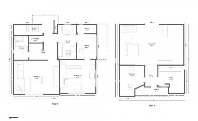
Az ingatlan 1976-ban épült, tégla szerkezetű családi ház, amely lakóövezeti besorolású területen található. A ház alapterülete 100 nm, a telek területe 473 nm, megközelítőleg 20 x 20 méteres mérettel. Az épület kétszintes, belmagassága 2,7 méter.
A fűtésről gáz-cirkó rendszer gondoskodik radiátoros hőleadással. A közművek: víz, villany, csatorna és gáz a telken belül rendelkezésre állnak. A nappali déli tájolású, így az ingatlan fényviszonyai kedvezőek. Parkolás garázsban biztosított.

A földszinten található egy 18 nm-es nappali, egy 14 nm-es szoba, egy 7,3 nm-es konyha, az ahhoz kapcsolódó 5,5 nm-es étkező, valamint egy 1,9 nm-es kamra. Ezen a szinten kapott helyet továbbá egy 4 nm-es fürdőszoba, egy különálló, 1,1 nm-es WC, valamint egy 6,9 nm-es közlekedő. A bejárati ajtónál tetővel rendelkező kétoldalról megközelíthető lépcső is megtalálható. Az oldal kert irányában pedig egy kényelmes terasz található, amelynél a ház saját fala és tetőszerkezete természetes védelmet nyújt az eső és a szél ellen.

Az emeleten egy tágas, 20 nm-es szoba, egy 6,3 nm-es szoba, egy 7,5 nm-es fürdőszoba, valamint egy 3 nm-es közlekedő található. A közlekedőből nyílik az erkély, ahol kényelmesen elfogyaszthatjuk a reggeli kávénkat.

Az ingatlan jogilag rendezett, a térképmásolaton minden feltüntetésre került. Ügyfeleink részére díjmentesen biztosítunk előzetes hitelbírálatot, piaci hitel esetén egyedi kamatot adunk és teljeskörű támogatást adunk egészen a birtokbavételig! Keressen bizalommal akár hétvégén is!

Hirdetés feltöltve: 2026. 04. 18.

4 szobás családi házak ára Velencén

Ebből az összehasonlításból megtudhatod, hogyan viszonyul a lakás ára a környékbeli családi házak átlagos árához. Ez nem azt jelenti, hogy ennyivel olcsóbb vagy drágább, mint amennyit a lakás ér, hanem hogy ennyivel tér el a környékbeli átlagtól.

Ennek a m² ára
Velence m² ár
690 e Ft
1089 e Ft 37%
Ennek az ára
Velence átlagár
69 M Ft m Ft
159.9 m Ft 57%

Az ingatlan elhelyezkedése

Cím: Velence

Eladó családi házak a környékről

Székesfehérvár
Eladó családi ház

Székesfehérvár

59 M Ft
3 szoba
100 m²
Vértesacsa
Eladó családi ház

Vértesacsa

86 M Ft
3 + 1 szoba
123 m²
Bicske, Baboshegy
Eladó családi ház

Bicske

26.9 M Ft
1 szoba
30 m²
Velence, Liget utca
Eladó családi ház

Velence

149 M Ft
2 + 2 szoba
150 m²
Velence
Eladó családi ház

Velence

220 M Ft
7 szoba
155 m²
Velence
Eladó családi ház

Velence

180 M Ft
6 szoba
170 m²
Tabajd
Eladó családi ház

Tabajd

22 M Ft
3 szoba
75 m²
Mány
Eladó családi ház

Mány

18.5 M Ft
3 szoba
70 m²
Bakonycsernye
Eladó családi ház

Bakonycsernye

39 M Ft
3 szoba
350 m²
Velence
Eladó családi ház

Velence

219 M Ft
7 szoba
345 m²
Velence
Eladó családi ház

Velence

89 M Ft
4 szoba
89 m²
Szabadbattyán
Eladó családi ház

Szabadbattyán

357.518 M Ft
9 + 2 szoba
1053 m²
Velence, Liget utca
Eladó családi ház

Velence

99.8 M Ft
2 + 1 szoba
134 m²
Velence, Liget utca
Eladó családi ház

Velence

99.8 M Ft
2 + 1 szoba
134 m²
Velence
Eladó családi ház

Velence

80 M Ft
6 szoba
200 m²
Velence
Eladó családi ház

Velence

42.9 M Ft
1 szoba
40 m²
Velence
Eladó családi ház

Velence

42.9 M Ft
1 szoba
40 m²
Velence
Eladó családi ház

Velence

79 M Ft
10 + 1 szoba
189 m²
Alcsútdoboz, Szabadság utca
Eladó családi ház

Alcsútdoboz

320 M Ft
12 szoba
620 m²
Felcsút, Rákóczi Ferenc utca
Eladó családi ház

Felcsút

32 M Ft
2 + 1 szoba
55 m²
Velence
Eladó családi ház

Velence

180 M Ft
6 szoba
170 m²
Velence
Eladó családi ház

Velence

45.9 M Ft
2 szoba
57 m²
Kulcs
Eladó családi ház

Kulcs

180 M Ft
8 szoba
167 m²
Etyek
Eladó családi ház

Etyek

160 M Ft
6 szoba
228 m²

Falusi CSOK ingatlanok

Bag
Eladó családi ház

Bag

16.9 M Ft
6 szoba
160 m²
Jánosháza
Eladó családi ház

Jánosháza

25 M Ft
3 szoba
90 m²
Jánosháza
Eladó családi ház

Jánosháza

38 M Ft
2 szoba
116 m²
Szigliget
Eladó családi ház

Szigliget

299 M Ft
3 szoba
95 m²
Zalalövő
Eladó családi ház

Zalalövő

47 M Ft
4 + 1 szoba
117 m²
Hajdúbagos
Eladó családi ház

Hajdúbagos

36.9 M Ft
3 szoba
50 m²
Gönyű
Eladó családi ház

Gönyű

111.951 M Ft
5 szoba
105 m²
Bácsbokod
Eladó családi ház

Bácsbokod

55 M Ft
6 szoba
250 m²