Metrodom

Eladó családi ház
Velence

+ 11 kép 1/14
74 000 000 Ft74 M Ft 740 000 Ft/m2
4 szoba
100 m²
építés éve:1976

Részletes adatok

Állapot: Átlagos
Telekméret: 473 m2
Fűtés: Gázkazán
Energetikai besorolás: Nem adta meg a hirdető

Az OTP Bank lakáshitel ajánlataFizetett hirdetés

+36 30 267
Csuri Katalin
OTPip - Érd Bajcsy-Zsilinszky út 160 - OTP Ingatlanpont Iroda

Érdekel az OTP Bank kedvezményes lakáshitel ajánlata? *

* A kérdésre „Igen” válasz bejelölése esetén, az „Üzenet küldése” gombra kattintva kijelentem, hogy az OTP Bank Nyrt. Adatkezelési tájékoztatójának tartalmát megismertem és tudomásul vettem.

Eladó családi ház leírása

Velence csendes környékén, Újtelepen kínálunk eladásra egy felújítandó családiházat.
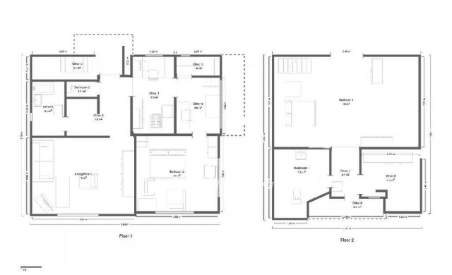
Az ingatlan 1976-ban épült, tégla szerkezetű családi ház, amely lakóövezeti besorolású területen található. A ház alapterülete 100 nm, a telek területe 473 nm, megközelítőleg 20 x 20 méteres mérettel. Az épület kétszintes, belmagassága 2,7 méter.
A fűtésről gáz-cirkó rendszer gondoskodik radiátoros hőleadással. A közművek: víz, villany, csatorna és gáz a telken belül rendelkezésre állnak. A nappali déli tájolású, így az ingatlan fényviszonyai kedvezőek. Parkolás garázsban biztosított.

A földszinten található egy 18 nm-es nappali, egy 14 nm-es szoba, egy 7,3 nm-es konyha, az ahhoz kapcsolódó 5,5 nm-es étkező, valamint egy 1,9 nm-es kamra. Ezen a szinten kapott helyet továbbá egy 4 nm-es fürdőszoba, egy különálló, 1,1 nm-es WC, valamint egy 6,9 nm-es közlekedő. A bejárati ajtónál tetővel rendelkező kétoldalról megközelíthető lépcső is megtalálható. Az oldal kert irányában pedig egy kényelmes terasz található, amelynél a ház saját fala és tetőszerkezete természetes védelmet nyújt az eső és a szél ellen.

Az emeleten egy tágas, 20 nm-es szoba, egy 6,3 nm-es szoba, egy 7,5 nm-es fürdőszoba, valamint egy 3 nm-es közlekedő található. A közlekedőből nyílik az erkély, ahol kényelmesen elfogyaszthatjuk a reggeli kávénkat.

Az ingatlan jogilag rendezett, a térképmásolaton minden feltüntetésre került. Ügyfeleink részére díjmentesen biztosítunk előzetes hitelbírálatot, piaci hitel esetén egyedi kamatot adunk és teljeskörű támogatást adunk egészen a birtokbavételig! Keressen bizalommal akár hétvégén is!

Hirdetés feltöltve: 2026. 04. 01.

4 szobás családi házak ára Velencén

Ebből az összehasonlításból megtudhatod, hogyan viszonyul a lakás ára a környékbeli családi házak átlagos árához. Ez nem azt jelenti, hogy ennyivel olcsóbb vagy drágább, mint amennyit a lakás ér, hanem hogy ennyivel tér el a környékbeli átlagtól.

Ennek a m² ára
Velence m² ár
740 e Ft
1146 e Ft 35%
Ennek az ára
Velence átlagár
74 M Ft m Ft
172.7 m Ft 57%

Az ingatlan elhelyezkedése

Cím: Velence

Eladó családi házak a környékről

Velence
Eladó családi ház

Velence

148.5 M Ft
5 szoba
143 m²
Velence
Eladó családi ház

Velence

79 M Ft
10 + 1 szoba
189 m²
Velence
Eladó családi ház

Velence

205 M Ft
7 szoba
593 m²
Adony
Eladó családi ház

Adony

9.5 M Ft
2 szoba
30 m²
Velence
Eladó családi ház

Velence

89 M Ft
4 szoba
89 m²
Velence
Eladó családi ház

Velence

239 M Ft
7 szoba
345 m²
Velence, Liget utca
Eladó családi ház

Velence

99.8 M Ft
2 + 1 szoba
134 m²
Gánt, Gánti út
Eladó családi ház

Gánt

29.9 M Ft
2 + 1 szoba
40 m²
Pusztaszabolcs
Eladó családi ház

Pusztaszabolcs

143.9 M Ft
4 szoba
149 m²
Székesfehérvár
Eladó családi ház

Székesfehérvár

59 M Ft
3 szoba
100 m²
Velence
Eladó családi ház

Velence

450 M Ft
4 szoba
213 m²
Velence, Liget utca
Eladó családi ház

Velence

149 M Ft
2 + 2 szoba
150 m²
Kulcs
Eladó családi ház

Kulcs

180 M Ft
8 szoba
167 m²
Velence
Eladó családi ház

Velence

42.9 M Ft
1 szoba
40 m²
Iváncsa
Eladó családi ház

Iváncsa

39.9 M Ft
4 szoba
112 m²
Pusztavám
Eladó családi ház

Pusztavám

22.9 M Ft
3 szoba
103 m²
Bicske, Baboshegy
Eladó családi ház

Bicske

26.9 M Ft
1 szoba
30 m²
Alcsútdoboz, Szabadság utca
Eladó családi ház

Alcsútdoboz

320 M Ft
12 szoba
620 m²
Mór
Eladó családi ház

Mór

110 M Ft
12 szoba
340 m²
Vértesacsa
Eladó családi ház

Vértesacsa

86 M Ft
3 + 1 szoba
123 m²
Mány
Eladó családi ház

Mány

18.5 M Ft
3 szoba
70 m²
Velence
Eladó családi ház

Velence

210 M Ft
5 szoba
155 m²
Szabadbattyán
Eladó családi ház

Szabadbattyán

357.518 M Ft
9 + 2 szoba
1053 m²
Velence
Eladó családi ház

Velence

45.9 M Ft
2 szoba
51 m²

Falusi CSOK ingatlanok

Igal
Eladó családi ház

Igal

49.3 M Ft
7 szoba
275 m²
Csemő
Eladó családi ház

Csemő

61.9 M Ft
3 szoba
88 m²
Perbál
Eladó családi ház

Perbál

130 M Ft
5 szoba
190 m²
Balatonszemes
Eladó téglalakás

Balatonszemes

125.2 M Ft
2 szoba
50 m²
Hajdúbagos
Eladó családi ház

Hajdúbagos

36.9 M Ft
3 szoba
50 m²
Kadarkút, Körmendi utca
Eladó családi ház

Kadarkút

21 M Ft
3 szoba
82 m²
Kemecse
Eladó családi ház

Kemecse

71.9 M Ft
4 szoba
144 m²
Ságvár
Eladó családi ház

Ságvár

53.9 M Ft
3 szoba
75 m²