Avico Greentop

Eladó családi ház
Vecsés

+ 15 kép 1/18
77 000 000 Ft77 M Ft 641 667 Ft/m2
3 + 1 szoba
120 m²
építés éve:1970

Részletes adatok

Állapot: Átlagos
Telekméret: 893 m2
Fűtés: Elektromos
Energetikai besorolás: H

Az OTP Bank lakáshitel ajánlataFizetett hirdetés

+36 70 786
Pröbsztl Gábor Zoltán
referens

Érdekel az OTP Bank kedvezményes lakáshitel ajánlata? *

* A kérdésre „Igen” válasz bejelölése esetén, az „Üzenet küldése” gombra kattintva kijelentem, hogy az OTP Bank Nyrt. Adatkezelési tájékoztatójának tartalmát megismertem és tudomásul vettem.

Eladó családi ház leírása

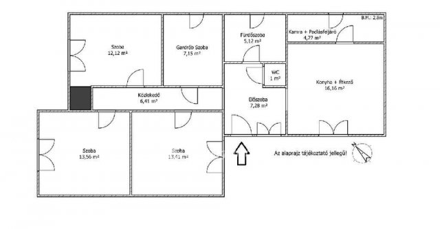
Eladó egy jó állapotú vegyes falazatú családi ház Vecsésen, 893 négyzetméteres telken. A ház 87 négyzetméteres alapterületű részben felújított három plusz egy félszobás. A felújított zuhanyzó és tágas étkezős konyha napfényes, igény szerint az első szoba kellemes nappalinak is kialakítható. 2023-ban a teljes épületfalazat vízszigetelést kapott injektálós technológiával. A villamos vezetékek és a csövek cseréje már megtörtént. Jelenleg elektromos fűtéssel rendelkezik egy H- tarifás nagy teljesítményű klímával kiegészítve. Mivel a cserépkályhákat megőrizték akár fával is fűthető a ház. Melegvizet modern Hajdú villanybojler szolgáltat. Tartozik még hozzá egy 34 négyzetméteres téliesített melléképület ami jelenleg lakássá van alakítva, de akár üzlethelyiségnek (Pl.: körmös, fodrász) is kiváló lehet. A telken található még egy betonalapos lemez fészer és egy kisház ami műhelynek vagy tárolónak is hasznosítható. Parkolni a ház előtt de a kertben is van hely akár több autónak is. Vecsés egy jó infrastruktúrájú város szinte minden szolgáltatás helyben elérhető, Budapestre ingázóknak pedig vonzó lehetőség az agglomerációban, hiszen autóval és tömegközlekedéssel is megoldhatóak a mindennapok. Elsősorban pároknak és családosoknak ajánlanám, de érdekes lehet bárkinek aki otthonról dolgozik vagy vállalkozik. Ha érdekesnek találta jöjjön el és tekintse meg élőben is! Időpont egyeztetéshez hívjon bizalommal!

Teljes körű ügyintézéssel állunk az eladók és a vevők rendelkezésére! A kínálatunkból választott ingatlan finanszírozásához minősített fogyasztóbarát, piaci és kedvezményes hitel- és lízingkonstrukciókat kínálunk (lakásvásárlási hitel, szabad felhasználású hitel, babaváró hitel, CSOK Plusz intézés, Otthonfelújítási Támogatás, egyéb felújítási hitelek). Az adásvételi szerződés megkötéséhez igény szerint megbízható ügyvédi közreműködést biztosítunk, és segítséget nyújtunk az adásvételhez kapcsolódó egyéb ügyek intézéséhez.

Kérdéseire az esti órákban és hétvégén is szívesen válaszolok! Ha az új ingatlana megvásárlásához a jelenlegi ingatlanát el kell adnia, abban is szívesen segítünk.

Hirdetés feltöltve: 2026. 04. 11.

4 szobás családi házak ára Vecsésen

Ebből az összehasonlításból megtudhatod, hogyan viszonyul a lakás ára a környékbeli családi házak átlagos árához. Ez nem azt jelenti, hogy ennyivel olcsóbb vagy drágább, mint amennyit a lakás ér, hanem hogy ennyivel tér el a környékbeli átlagtól.

Ennek a m² ára
Vecsés m² ár
642 e Ft
993 e Ft 35%
Ennek az ára
Vecsés átlagár
77 M Ft m Ft
117.2 m Ft 34%

Az ingatlan elhelyezkedése

Cím: Vecsés

Eladó családi házak a környékről

Vecsés
Eladó családi ház

Vecsés

162.9 M Ft
5 szoba
194 m²
Vecsés
Eladó családi ház

Vecsés

395 M Ft
8 szoba
580 m²
Tápiószele
Eladó családi ház

Tápiószele

45 M Ft
6 szoba
360 m²
Tápiószele
Eladó családi ház

Tápiószele

37.9 M Ft
4 szoba
141 m²
Tápiószele
Eladó családi ház

Tápiószele

32.9 M Ft
4 szoba
200 m²
Vecsés, Szabadkai utca
Eladó családi ház

Vecsés

120 M Ft
3 szoba
89 m²
Kerepes
Eladó családi ház

Kerepes

81.99 M Ft
5 szoba
102 m²
Tápiószele
Eladó családi ház

Tápiószele

18.9 M Ft
4 szoba
68 m²
Kerepes
Eladó családi ház

Kerepes

199 M Ft
6 szoba
360 m²
Remeteszőlős
Eladó családi ház

Remeteszőlős

399.9 M Ft
5 + 2 szoba
260 m²
Vecsés
Eladó családi ház

Vecsés

155 M Ft
7 szoba
244 m²
Őrbottyán
Eladó családi ház

Őrbottyán

154 M Ft
4 + 1 szoba
115 m²
Vecsés
Eladó családi ház

Vecsés

245 M Ft
5 szoba
198 m²
Tápiószentmárton
Eladó családi ház

Tápiószentmárton

48 M Ft
5 szoba
180 m²
Tápiószentmárton
Eladó családi ház

Tápiószentmárton

7.9 M Ft
2 + 1 szoba
86 m²
Budakeszi
Eladó családi ház

Budakeszi

130 M Ft
5 szoba
30 m²
Vecsés
Eladó családi ház

Vecsés

84.9 M Ft
5 szoba
110 m²
Tápiószentmárton
Eladó családi ház

Tápiószentmárton

16.5 M Ft
3 szoba
50 m²
Nagykáta
Eladó családi ház

Nagykáta

130 M Ft
3 szoba
203 m²
Vecsés, Bem utca
Eladó családi ház

Vecsés

87 M Ft
7 szoba
120 m²
Zebegény
Eladó családi ház

Zebegény

69.9 M Ft
6 szoba
245 m²
Vecsés
Eladó családi ház

Vecsés

245 M Ft
5 szoba
198 m²
Budakeszi, Budakeszi kertváros
Eladó családi ház

Budakeszi

229 M Ft
10 szoba
450 m²
Tápiógyörgye
Eladó családi ház

Tápiógyörgye

19.9 M Ft
3 szoba
65 m²

Falusi CSOK ingatlanok

Ceglédbercel
Eladó családi ház

Ceglédbercel

95 M Ft
6 szoba
220 m²
Vértesboglár
Eladó családi ház

Vértesboglár

56.9 M Ft
4 szoba
154 m²
Pécsvárad
Eladó családi ház

Pécsvárad

189 M Ft
7 szoba
618 m²
Nagyréde
Eladó családi ház

Nagyréde

69.5 M Ft
4 szoba
110 m²
Patca
Eladó családi ház

Patca

21.9 M Ft
4 szoba
104 m²
Nagykarácsony
Eladó családi ház

Nagykarácsony

34.9 M Ft
3 szoba
112 m²
Kenyeri
Eladó családi ház

Kenyeri

39.9 M Ft
3 szoba
94 m²
Zalavár
Eladó családi ház

Zalavár

65 M Ft
2 + 1 szoba
100 m²