Aerogate Homes

Eladó családi ház
Valkó

45 990 000 Ft45.99 M Ft 207 162 Ft/m2
8 szoba
222 m²
építés éve:1986

Részletes adatok

Állapot: Felújítandó
Telekméret: 1097 m2
Fűtés: Gázkazán
Parkolás: Kocsibeálló
Közmű: Víz, Gáz, Villany, Csatorna
Energetikai besorolás: Nem adta meg a hirdető

Az OTP Bank lakáshitel ajánlataFizetett hirdetés

+36 20 287
Kiss Luca
referens

Érdekel az OTP Bank kedvezményes lakáshitel ajánlata? *

* A kérdésre „Igen” válasz bejelölése esetén, az „Üzenet küldése” gombra kattintva kijelentem, hogy az OTP Bank Nyrt. Adatkezelési tájékoztatójának tartalmát megismertem és tudomásul vettem.

Eladó családi ház leírása

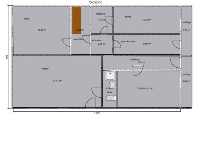
Eladásra kínálunk Valkón, az Arany János utcában egy felújítandó állapotú, kétszintes családi házat, amely 222 m² alapterülettel rendelkezik.

Az ingatlan egy 1097 m²-es telken helyezkedik el, ahol a főépület mellett további felújítandó melléképületek is találhatók, így számos átalakítási és hasznosítási lehetőséget kínál az új tulajdonos számára.

A ház méretének és elrendezésének köszönhetően kiváló lehet nagyobb család számára, de befektetési vagy fejlesztési célra is remek alapot ad, hiszen a jelenlegi állapot lehetőséget biztosít arra, hogy az ingatlant teljes mértékben saját elképzelések szerint újítsák fel.

A tágas telek és a jelentős alapterület ritka kombináció a környéken, így az ingatlan komoly potenciált rejt magában.

Főbb jellemzők:

222 m² alapterület

kétszintes épület

felújítandó állapot

1097 m² telek

melléképületek a telken

sokféle hasznosítási lehetőség

Az ingatlan ideális választás lehet mindazok számára, akik nagy alapterületű házat keresnek és saját elképzeléseik szerint szeretnék kialakítani új otthonukat vagy befektetésüket.

További részletekért várom megtisztelő hívását!

Hirdetés feltöltve: 2026. 03. 10. Utoljára módosítva: 2026. 03. 10.

Az ingatlan elhelyezkedése

Cím: Valkó

Eladó ingatlanok a környékről

Tápiógyörgye
Eladó családi ház

Tápiógyörgye

19.9 M Ft
3 szoba
65 m²
Hernád
Eladó családi ház

Hernád

114 M Ft
5 szoba
160 m²
Valkó
Eladó családi ház

Valkó

30 M Ft
3 szoba
107 m²
Valkó
Eladó családi ház

Valkó

54.9 M Ft
4 szoba
95 m²
Tápiószentmárton
Eladó családi ház

Tápiószentmárton

48 M Ft
5 szoba
180 m²
Tápiószele
Eladó családi ház

Tápiószele

45 M Ft
6 szoba
360 m²
Budakeszi, Budakeszi kertváros
Eladó családi ház

Budakeszi

229 M Ft
10 szoba
450 m²
Kerepes
Eladó családi ház

Kerepes

199 M Ft
6 szoba
360 m²
Érd, Érdliget - Kutyavár, Érd-liget
Eladó családi ház

Érd

230 M Ft
7 szoba
280 m²
Vámosmikola
Eladó családi ház

Vámosmikola

58.9 M Ft
5 szoba
210 m²
Tápiószőlős
Eladó családi ház

Tápiószőlős

34.9 M Ft
5 szoba
210 m²
Ceglédbercel
Eladó családi ház

Ceglédbercel

66.66 M Ft
3 szoba
92 m²
Őrbottyán
Eladó családi ház

Őrbottyán

93.8 M Ft
5 szoba
100 m²
Valkó, Danyi utca
Eladó családi ház

Valkó

43 M Ft
2 + 1 szoba
98 m²
Tápiószentmárton
Eladó családi ház

Tápiószentmárton

16.5 M Ft
3 szoba
50 m²
Budakeszi, Makkosmária
Eladó családi ház

Budakeszi

100 M Ft
1 szoba
10 m²
Valkó
Eladó családi ház

Valkó

49.9 M Ft
3 szoba
119 m²
Valkó
Eladó családi ház

Valkó

30 M Ft
3 + 1 szoba
125 m²
Zebegény
Eladó családi ház

Zebegény

69.9 M Ft
6 szoba
245 m²
Valkó
Eladó családi ház

Valkó

13.9 M Ft
3 + 1 szoba
83 m²
Valkó
Eladó családi ház

Valkó

42 M Ft
2 szoba
60 m²
Kerepes
Eladó családi ház

Kerepes

81.99 M Ft
5 szoba
102 m²
Valkó
Eladó családi ház

Valkó

21.9 M Ft
4 szoba
103 m²
Pécel, Reményik Sándor utca
Eladó családi ház

Pécel

296 M Ft
6 szoba
396 m²

Falusi CSOK ingatlanok

Nagyharsány
Eladó téglalakás

Nagyharsány

22.5 M Ft
3 szoba
71 m²
Balatonfenyves
Eladó téglalakás

Balatonfenyves

20.8 M Ft
2 szoba
69 m²
Pécsvárad
Eladó családi ház

Pécsvárad

140 M Ft
4 + 1 szoba
119 m²
Tatárszentgyörgy
Eladó családi ház

Tatárszentgyörgy

67 M Ft
4 szoba
92 m²
Vásárosdombó
Eladó ikerház

Vásárosdombó

21.7 M Ft
3 szoba
98 m²
Kaposgyarmat
Eladó családi ház

Kaposgyarmat

695 M Ft
6 szoba
610 m²
Pócsa
Eladó családi ház

Pócsa

29.9 M Ft
4 szoba
113 m²
Somogyszil
Eladó családi ház

Somogyszil

27.9 M Ft
3 szoba
140 m²