City Pearl

Eladó családi ház
Vaja

Figyelem!

Ez az ingatlan a 2019.07.01-től induló falusi CSOK által támogatott településen található

+ 17 kép 1/20
22 900 000 Ft22.9 M Ft 204 464 Ft/m2
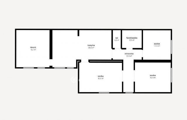
3 szoba
112 m2
építés éve:1995

Részletes adatok

Állapot: Felújítandó
Telekméret: 800 m2
Fűtés: Egyéb
Energetikai besorolás: Nem adta meg a hirdető

Az OTP Bank lakáshitel ajánlataFizetett hirdetés

+36 20 468
Kissné Orosz Ildikó Krisztina
OTPIP Nyíregyháza Hunyadi u.

Érdekel az OTP Bank kedvezményes lakáshitel ajánlata? *

* A kérdésre „Igen” válasz bejelölése esetén, az „Üzenet küldése” gombra kattintva kijelentem, hogy az OTP Bank Nyrt. Adatkezelési tájékoztatójának tartalmát megismertem és tudomásul vettem.

Eladó családi ház leírása

Csendes, kertvárosi otthon Vaja szívében eladó!
Eladásra kínálunk Vaján, a nyugodt és barátságos Dessewffy utcában egy 112,8nm-es családi házat, amely egy tágas, 800 nm-es telken helyezkedik el. Az ingatlan ideális választás lehet mindazoknak, akik szeretnék saját ízlésükre formálni otthonukat, és a város zajától távol, mégis mindenhez közel élni.
Az ingatlan jellemzői:
3 szoba + nappali-konyha, előszoba, fürdőszoba, külön WC
Nagy méretű terasz, ahol élvezheti a reggeli kávét vagy a nyári estéket
Melléképület fa tüzelésű kazánnal
Gazdálkodásra is alkalmas ól a hátsó udvarban
Tégla falazat, fa nyílászárók, hullámpala tető
Fűtés: fatüzelésű kazán biztosítja a meleget
Állapot: felújítandó , így tökéletes lehetőség, hogy saját elképzelése szerint alakítsa ki álmai otthonát!
Miért éppen ez az ingatlan? Mert a csendes környék, a tágas telek és a barátságos szomszédság együttese ideális helyszínt biztosít családoknak, kertészkedőknek vagy mindazoknak, akik szeretik a természetközeli, nyugodt életet.
Vaja egyik legkedveltebb részén, barátságos környezetben várja új tulajdonosát ez a hangulatos, nagy lehetőségeket rejtő családi ház!
Szeretnéd, hogy írjak hozzá egy rövidebb, tömörített verziót is, ami jól működik pl. Facebook-hirdetésben vagy apróhirdetési oldalon.

OTP Banki hátterünknek köszönhetően finanszírozási igényekben (pl. Otthon Start Hitelprogram , Babaváró, Falusi CSOK, CSOK Plusz, Lakáshitel, Személyi kölcsön stb.), illetve biztosítások tekintetében is díjmentesen, soron kívüli ügyintézéssel segítem ügyfeleim! Referenciaszám: M311712

Hirdetés feltöltve: 2025. 11. 05. Utoljára módosítva: 2025. 11. 05.

Az ingatlan elhelyezkedése

Cím: Vaja

Eladó ingatlanok a környékről

Eladó családi ház
Eladó családi ház

Vaja

14.9 M Ft
2 szoba
100 m2
Eladó családi ház
Eladó családi ház

Nyíregyháza

250 M Ft
4 szoba
440 m2
Eladó családi ház
Eladó családi ház

Nyíregyháza

46 M Ft
3 + 1 szoba
140 m2
Eladó családi ház
Eladó családi ház

Vaja

22.9 M Ft
3 szoba
112 m2
Eladó családi ház
Eladó családi ház

Magy

21.9 M Ft
2 + 1 szoba
72 m2
Eladó családi ház
Eladó családi ház

Nyíregyháza

75.9 M Ft
6 szoba
240 m2
Eladó családi ház
Eladó családi ház

Levelek

15.5 M Ft
1 + 1 szoba
61 m2
Eladó családi ház
Eladó családi ház

Újfehértó

22.9 M Ft
2 szoba
60 m2
Eladó családi ház
Eladó családi ház

Kisvárda

38.1 M Ft
3 szoba
114 m2
Eladó családi ház
Eladó családi ház

Vaja

170 M Ft
4 szoba
340 m2
Eladó családi ház
Eladó családi ház

Vaja

22.9 M Ft
3 szoba
112 m2
Eladó családi ház
Eladó családi ház

Nyíregyháza

79 M Ft
5 szoba
126 m2
Eladó családi ház
Eladó családi ház

Nyíregyháza

87 M Ft
5 szoba
210 m2
Eladó családi ház
Eladó családi ház

Vaja

14.9 M Ft
2 szoba
100 m2
Eladó családi ház
Eladó családi ház

Levelek

15.5 M Ft
1 + 1 szoba
61 m2
Eladó családi ház
Eladó családi ház

Nyíregyháza

120 M Ft
5 szoba
203 m2
Eladó családi ház
Eladó családi ház

Nyírtelek

10.9 M Ft
2 szoba
55 m2
Eladó családi ház
Eladó családi ház

Nyíregyháza

105 M Ft
6 szoba
180 m2
Eladó családi ház
Eladó családi ház

Újfehértó

39.99 M Ft
1 szoba
68 m2
Eladó családi ház
Eladó családi ház

Nyíregyháza

199.9 M Ft
6 szoba
500 m2
Eladó családi ház
Eladó családi ház

Vaja

22.9 M Ft
3 szoba
112 m2
Eladó családi ház
Eladó családi ház

Napkor

49.8 M Ft
4 szoba
253 m2
Eladó családi ház
Eladó családi ház

Nyíregyháza

85 M Ft
3 szoba
170 m2
Eladó ikerház
Eladó ikerház

Nyírtura

62.99 M Ft
3 szoba
100 m2

Falusi CSOK ingatlanok

Eladó családi ház
Eladó családi ház

Vaskút

19 M Ft
3 szoba
225 m2
Eladó családi ház
Eladó családi ház

Erdősmecske

32 M Ft
3 szoba
115 m2
Eladó családi ház
Eladó családi ház

Onga

65 M Ft
5 szoba
168 m2
Eladó családi ház
Eladó családi ház

Orgovány, Mátyás király utca

16 M Ft
2 szoba
60 m2
Eladó családi ház
Eladó családi ház

Galgagyörk

69.9 M Ft
3 szoba
110 m2
Eladó családi ház
Eladó családi ház

Szabadbattyán

30 M Ft
4 szoba
75 m2
Eladó ikerház
Eladó ikerház

Sáránd

69.9 M Ft
3 szoba
90 m2
Eladó családi ház
Eladó családi ház

Katymár

6.7 M Ft
4 szoba
136 m2

Falusi CSOK ingatlanok

Eladó családi ház
Eladó családi ház

Mályi

89.9 M Ft
4 szoba
100 m2
Eladó családi ház
Eladó családi ház

Kocsér

31.9 M Ft
2 + 1 szoba
68 m2
Eladó családi ház
Eladó családi ház

Medgyesegyháza

24 M Ft
2 szoba
84 m2
Eladó családi ház
Eladó családi ház

Onga

65 M Ft
5 szoba
168 m2
Eladó családi ház
Eladó családi ház

Nyáregyháza

67 M Ft
3 szoba
74 m2
Eladó családi ház
Eladó családi ház

Onga

46.8 M Ft
4 szoba
103 m2
Eladó téglalakás
Eladó téglalakás

Fertőszentmiklós

74.9 M Ft
2 szoba
75 m2
Eladó családi ház
Eladó családi ház

Recsk

21 M Ft
4 szoba
220 m2