River Life

Eladó családi ház
Úrhida

+ 17 kép 1/20
104 900 000 Ft104.9 M Ft 617 059 Ft/m2
5 szoba
170 m²
építés éve:1965

Részletes adatok

Telekméret: 1375 m2
Fűtés: Egyéb
Parkolás: Garázs
Komfort: Összkomfortos
Energetikai besorolás: Nem adta meg a hirdető

Az OTP Bank lakáshitel ajánlataFizetett hirdetés

+36 20 583
Kruller Petra
referens

Érdekel az OTP Bank kedvezményes lakáshitel ajánlata? *

* A kérdésre „Igen” válasz bejelölése esetén, az „Üzenet küldése” gombra kattintva kijelentem, hogy az OTP Bank Nyrt. Adatkezelési tájékoztatójának tartalmát megismertem és tudomásul vettem.

Eladó családi ház leírása

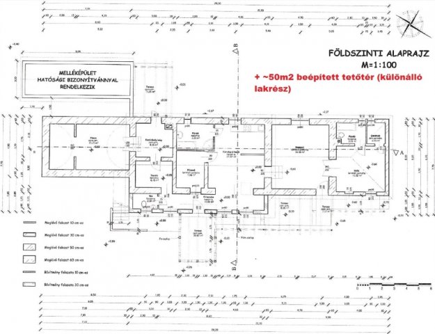
Vh-004788. Úrhidán, átmenő forgalomtól mentes utcában kétlakrészes/kétgenerációs, összesen 170m2-es, felújított családi ház 1375m2-es telekterülettel eladó!

A ház két ütemben épült. Utca felöli része az 1960-as években épült kő falazattal, hátsó része pedig a későbbiekben került hozzáépítésre B30-as falazattal, melynek tetőtere nemrégiben beépítésre került, létrehozva ezzel egy különálló lakrészt.

Az épület statikailag, műszakilag jó állapotú, az elmúlt években nyílászárói (redőnnyel és szúnyoghálóval felszereltek), víz- és villanyvezetékei, fűtőtestei, burkolatai cserére kerültek. A homlokzat és födém szigetelése megtörtént.

A ház melegét vegyes tüzelésű kazán biztosítja radiátorokkal, illetve az alsó részen 3db, a tetőtéri részben pedig 1db hűtő-fűtő klíma került felszerelésre kiegészítő fűtésként. A melegvíz ellátást villanybojler szolgáltatja. A villanyhálózat 3 fázisú, illetve H-tarifás óra is bekötésre került. A telken belül található gázcsonk, így igény esetén kialakítható gázkazánnal való fűtés is.

A földszinten (111m2) előszoba, közlekedő, konyha, vendég WC, 3 szoba, gardrób, két fürdőszoba, mosókonyha, kazánhelyiség (külön bejárattal) került kialakításra. A házhoz kapcsolódik egy ~30m2-es, boltíves pince is.

A tetőtéri rész (~50m2) külön bejárattal rendelkezik. Ezen a szinten egy fürdőszoba, WC és egy egy-légterű amerikai konyha nappali található, melyben egy elszeparált haló rész is helyet kapott.

A két lakásnak a közművei nem lettek elkülönítve.

A telek 1375m2, teljesen körbekerített. Található rajta egy 27m2-es melléképület is.

Eladási irányár: 104,9 M Ft

Az ingatlan megvásárlásához a jelenleg elérhető családtámogatási konstrukciók (CSOK, Otthon Start, jelzáloghitel, Babaváró hitel stb.) igénybe vehetők.

Ha felkeltette érdeklődését, hívja irodánkat bizalommal, éljen ingyenes, személyre szabott hitelügyintézés szolgáltatásunkkal. Segítünk továbbá adásvételhez szükséges ügyvédi közreműködésben, energetikai tanúsítvány, valamint értékbecslés elkészítésében. ...TOVÁBBI, TÖBBEZRES INGATLAN KÍNÁLAT: www.gdn-ingatlan.hu - GDN azonosító: 394643

Hirdetés feltöltve: 2026. 04. 11. Utoljára módosítva: 2026. 05. 15.

5 szobás családi házak ára Úrhidán

Ebből az összehasonlításból megtudhatod, hogyan viszonyul a lakás ára a környékbeli családi házak átlagos árához. Ez nem azt jelenti, hogy ennyivel olcsóbb vagy drágább, mint amennyit a lakás ér, hanem hogy ennyivel tér el a környékbeli átlagtól.

Ennek a m² ára
Úrhida m² ár
617 e Ft
159 e Ft -287%
Ennek az ára
Úrhida átlagár
104.9 M Ft m Ft
31.1 m Ft -237%

Az ingatlan elhelyezkedése

Cím: Úrhida

Eladó ingatlanok a környékről

Mány
Eladó családi ház

Mány

18.5 M Ft
3 szoba
70 m²
Úrhida
Eladó családi ház

Úrhida

74.5 M Ft
4 szoba
120 m²
Etyek
Eladó családi ház

Etyek

160 M Ft
6 szoba
228 m²
Lepsény, Róka sétány
Eladó családi ház

Lepsény

64.9 M Ft
5 + 1 szoba
203 m²
Velence, Liget utca
Eladó családi ház

Velence

149 M Ft
2 + 2 szoba
150 m²
Vértesacsa
Eladó családi ház

Vértesacsa

86 M Ft
3 + 1 szoba
123 m²
Szabadbattyán
Eladó családi ház

Szabadbattyán

357.518 M Ft
9 + 2 szoba
1053 m²
Mór
Eladó családi ház

Mór

110 M Ft
12 szoba
340 m²
Úrhida
Eladó családi ház

Úrhida

109 M Ft
5 szoba
150 m²
Gárdony
Eladó családi ház

Gárdony

119 M Ft
5 szoba
165 m²
Csákvár, Kossuth utca
Eladó családi ház

Csákvár

76 M Ft
1 szoba
181 m²
Úrhida
Eladó családi ház

Úrhida

109 M Ft
5 szoba
150 m²
Úrhida
Eladó családi ház

Úrhida

109 M Ft
5 szoba
150 m²
Bakonycsernye
Eladó családi ház

Bakonycsernye

39 M Ft
3 szoba
350 m²
Úrhida, Arany János utca
Eladó családi ház

Úrhida

125 M Ft
3 szoba
302 m²
Úrhida
Eladó családi ház

Úrhida

125 M Ft
3 szoba
302 m²
Kulcs
Eladó családi ház

Kulcs

180 M Ft
8 szoba
167 m²
Székesfehérvár
Eladó családi ház

Székesfehérvár

69.9 M Ft
3 szoba
95 m²
Úrhida
Eladó családi ház

Úrhida

109 M Ft
5 szoba
150 m²
Úrhida
Eladó családi ház

Úrhida

109 M Ft
5 szoba
150 m²
Velence, Liget utca
Eladó családi ház

Velence

99.8 M Ft
2 + 1 szoba
134 m²
Úrhida
Eladó családi ház

Úrhida

54.99 M Ft
4 szoba
150 m²
Pusztaszabolcs
Eladó családi ház

Pusztaszabolcs

143.9 M Ft
4 szoba
149 m²
Adony
Eladó családi ház

Adony

8 M Ft
2 szoba
30 m²

Falusi CSOK ingatlanok

Fertőszentmiklós
Eladó családi ház

Fertőszentmiklós

249 M Ft
3 szoba
1200 m²
Balatonszemes
Eladó téglalakás

Balatonszemes

110.9 M Ft
2 szoba
0 m²
Szabadbattyán
Eladó családi ház

Szabadbattyán

79.6 M Ft
4 szoba
101 m²
Felsőlajos
Eladó családi ház

Felsőlajos

100 M Ft
4 szoba
140 m²
Halimba
Eladó családi ház

Halimba

59.9 M Ft
6 szoba
182 m²
Iváncsa
Eladó családi ház

Iváncsa

93.5 M Ft
5 szoba
283 m²
Hegyeshalom, Margaréta utca 12
Eladó téglalakás

Hegyeshalom

32.89 M Ft
1 szoba
27 m²
Hosszúpereszteg
Eladó családi ház

Hosszúpereszteg

27.9 M Ft
4 szoba
0 m²