Aerogate Homes

Eladó családi ház
Üllő

+ 14 kép 1/17
95 000 000 Ft95 M Ft 922 330 Ft/m2
2 + 2 szoba
103 m²
építés éve:1972

Részletes adatok

Telekméret: 1050 m2
Fűtés: Gázkazán
Energetikai besorolás: Nem adta meg a hirdető

Az OTP Bank lakáshitel ajánlataFizetett hirdetés

+36 30 790
Alföldi Attila
OTPIP I. kerület Zsolt utcai iroda

Érdekel az OTP Bank kedvezményes lakáshitel ajánlata? *

* A kérdésre „Igen” válasz bejelölése esetén, az „Üzenet küldése” gombra kattintva kijelentem, hogy az OTP Bank Nyrt. Adatkezelési tájékoztatójának tartalmát megismertem és tudomásul vettem.

Eladó családi ház leírása

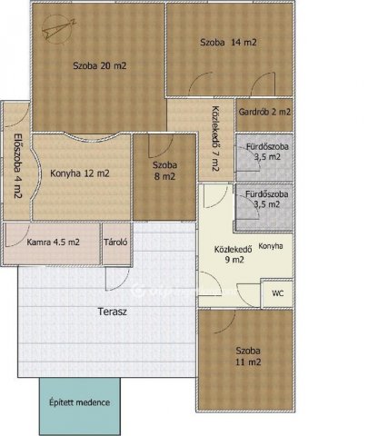
Pest megyében Üllőn eladó egy csendes nívós környéken lévő, 103 m2-s 2+2 félszobás felújított , duplakomfortos, családi ház amely egy1050 m2-s telken helyezkedik el. Állapot: Szigetelt falak, esztétikus betoncserép fedés, frissen felújított belső terek. Az ingatlan egy ajtó beépítésével 2 generációs házzá alakítható át. Kérem nézze meg az alaprajzot.
Fűtés-hűtés: Gazdaságos gáz-cirkó és hűtő fűtő klíma.
Kert és extrák: A parkosított telken egy épített kismedence várja a nyári felfrissülést. A nagy méretű terasz lehetőséget teremt a grillezésekre, pihenésre. A tárolást melléképület az autók parkolását saját garázs biztosítja.
A környék infrastruktúrája kiváló!!! Minden ami számit pár perc sétával elérhető. Beleértve a vasút állómást is. Teljes körű ügyintézéssel állunk az eladók és a vevők rendelkezésére! A kínálatunkból választott ingatlan finanszírozásához kedvezményes hitel- konstrukciókat kínálunk. Az adásvételi szerződés megkötéséhez igény szerint megbízható ügyvédi közreműködést biztosítunk, és segítséget nyújtunk az adásvételhez kapcsolódó ügyek intézéséhez. Kérdés , mutatás esetén hívjon bizalommal! Ref. szám:M322928 Az ingatlan megfelel a kedvezményes hitelek felvételére is. Beleértve a 3%-s OSP hitelt is.

Referencia szám: M322928

Hirdetés feltöltve: 2026. 04. 17. Utoljára módosítva: 2026. 05. 10.

4 szobás családi házak ára Üllőn

Ebből az összehasonlításból megtudhatod, hogyan viszonyul a lakás ára a környékbeli családi házak átlagos árához. Ez nem azt jelenti, hogy ennyivel olcsóbb vagy drágább, mint amennyit a lakás ér, hanem hogy ennyivel tér el a környékbeli átlagtól.

Ennek a m² ára
Üllő m² ár
922 e Ft
900 e Ft -3%
Ennek az ára
Üllő átlagár
95 M Ft m Ft
105.6 m Ft 10%

Az ingatlan elhelyezkedése

Cím: Üllő

Eladó családi házak a környékről

Tápiószele
Eladó családi ház

Tápiószele

32.9 M Ft
4 szoba
200 m²
Üllő
Eladó családi ház

Üllő

299 M Ft
6 szoba
320 m²
Üllő
Eladó családi ház

Üllő

117 M Ft
6 szoba
280 m²
Nagykáta
Eladó családi ház

Nagykáta

130 M Ft
3 szoba
203 m²
Tápiószőlős
Eladó családi ház

Tápiószőlős

34.9 M Ft
5 szoba
210 m²
Tápiószele
Eladó családi ház

Tápiószele

18.9 M Ft
4 szoba
68 m²
Dunakeszi
Eladó családi ház

Dunakeszi

250 M Ft
4 szoba
180 m²
Üllő
Eladó családi ház

Üllő

105 M Ft
4 szoba
150 m²
Tápiószele
Eladó családi ház

Tápiószele

11.9 M Ft
3 szoba
62 m²
Üllő
Eladó családi ház

Üllő

149 M Ft
4 szoba
172 m²
Üllő
Eladó családi ház

Üllő

99.8 M Ft
3 szoba
161 m²
Budakeszi, Budakeszi kertváros
Eladó családi ház

Budakeszi

229 M Ft
10 szoba
450 m²
Budakeszi
Eladó családi ház

Budakeszi

130 M Ft
5 szoba
30 m²
Üllő
Eladó családi ház

Üllő

99.8 M Ft
3 szoba
161 m²
Üllő
Eladó családi ház

Üllő

53.9 M Ft
2 szoba
51 m²
Tápiószele
Eladó családi ház

Tápiószele

45 M Ft
6 szoba
360 m²
Üllő
Eladó családi ház

Üllő

91.9 M Ft
4 szoba
89 m²
Üllő
Eladó családi ház

Üllő

72.9 M Ft
6 szoba
200 m²
Üllő, Pesti út
Eladó családi ház

Üllő

149 M Ft
4 szoba
172 m²
Őrbottyán
Eladó családi ház

Őrbottyán

154 M Ft
4 + 1 szoba
115 m²
Üllő, Zöldfa utca
Eladó családi ház

Üllő

229 M Ft
4 szoba
268 m²
Tápiószentmárton
Eladó családi ház

Tápiószentmárton

16.5 M Ft
3 szoba
50 m²
Üllő
Eladó családi ház

Üllő

285 M Ft
12 szoba
551 m²
Üllő
Eladó családi ház

Üllő

105 M Ft
5 szoba
155 m²

Falusi CSOK ingatlanok

Hegyeshalom, Margaréta utca 12
Eladó téglalakás

Hegyeshalom

50.09 M Ft
2 szoba
43 m²
Győrság
Eladó családi ház

Győrság

79.9 M Ft
4 szoba
92 m²
Tokaj
Eladó családi ház

Tokaj

125 M Ft
9 szoba
230 m²
Vértesboglár
Eladó családi ház

Vértesboglár

131 M Ft
5 szoba
147 m²
Fonyód, Rózsa utca
Eladó ikerház

Fonyód

105 M Ft
5 szoba
134 m²
Levelek
Eladó családi ház

Levelek

74 M Ft
6 + 1 szoba
190 m²
Hegyeshalom, Margaréta utca 12
Eladó téglalakás

Hegyeshalom

35.92 M Ft
1 szoba
31 m²
Segesd
Eladó családi ház

Segesd

15.8 M Ft
3 szoba
100 m²