BAM Living

Eladó családi ház
Újszász

+ 9 kép 1/12
15 900 000 Ft15.9 M Ft 244 615 Ft/m2
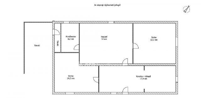
3 szoba
65 m²
építés éve:1960

Részletes adatok

Állapot: Átlagos
Telekméret: 1457 m2
Fűtés: Gázkazán
Energetikai besorolás: Nem adta meg a hirdető
Zenga Premier

Friss hirdetések, amiket nem találsz meg más ingatlankereső portálon.

Fedezd fel elsőként a Zenga Premier címkés eladó ingatlanokat!

További részletek a zenga.hu-n

Az OTP Bank lakáshitel ajánlataFizetett hirdetés

+36 20 220
Szabó Sándor
Budapest XIII. kerület Pannónia utca 25 - OTP Ingatlanpont Iroda

Érdekel az OTP Bank kedvezményes lakáshitel ajánlata? *

* A kérdésre „Igen” válasz bejelölése esetén, az „Üzenet küldése” gombra kattintva kijelentem, hogy az OTP Bank Nyrt. Adatkezelési tájékoztatójának tartalmát megismertem és tudomásul vettem.

Eladó családi ház leírása

Újszászon, a Nap úton eladó családi ház nagy telekkel!

Megvételre kínálok Újszászon, csendes utcában egy vályog falazatú, 65 m2-es, 3 szobás családi házat, mely műszakilag felújított állapotban várja új tulajdonosát.

A felújítás során kicserélték a víz- és villanyhálózatot, megújultak a hideg- és melegburkolatok, valamint a nyílászárók egy része is. A födémen 10 cm vastag hőszigetelés található.

A fűtést új, kondenzációs gázkazán és új radiátorok szolgáltatják, így az ingatlan energetikailag is korszerű.

A 1457 m2-es, tágas telek kiváló lehetőségeket rejt: akár kétlakásos lakóingatlan is építhető rá, így befektetésre is ideális.

Csendes, barátságos környék, jó megközelíthetőség, rendezett udvar várja leendő tulajdonosát.

Vasútállomás 10 -15 perces séta távolságra található!

Keressen bizalommal, akár hétvégén is!

Hirdetés feltöltve: 2026. 03. 03. Utoljára módosítva: 2026. 03. 03.

3 szobás családi házak ára Újszászon

Ebből az összehasonlításból megtudhatod, hogyan viszonyul a lakás ára a környékbeli családi házak átlagos árához. Ez nem azt jelenti, hogy ennyivel olcsóbb vagy drágább, mint amennyit a lakás ér, hanem hogy ennyivel tér el a környékbeli átlagtól.

Ennek a m² ára
Újszász m² ár
245 e Ft
476 e Ft 49%
Ennek az ára
Újszász átlagár
15.9 M Ft m Ft
36.3 m Ft 56%

Az ingatlan elhelyezkedése

Cím: Újszász

Eladó családi házak a környékről

Szolnok
Eladó családi ház

Szolnok

34 M Ft
6462 m²
69 m²
Cibakháza
Eladó családi ház

Cibakháza

12.9 M Ft
4 szoba
111 m²
Újszász
Eladó családi ház

Újszász

29.9 M Ft
4 szoba
107 m²
Jászberény, Tőtevény tanya
Eladó családi ház

Jászberény

99.9 M Ft
6 szoba
229 m²
Újszász
Eladó családi ház

Újszász

56.055 M Ft
3 szoba
65 m²
Jászárokszállás
Eladó családi ház

Jászárokszállás

21.5 M Ft
2 szoba
45 m²
Újszász
Eladó családi ház

Újszász

43 M Ft
5 + 2 szoba
173 m²
Kisújszállás
Eladó családi ház

Kisújszállás

119 M Ft
6 szoba
464 m²
Újszász
Eladó családi ház

Újszász

17.9 M Ft
2 + 1 szoba
75 m²
Újszász
Eladó családi ház

Újszász

23 M Ft
4 szoba
105 m²
Jászberény
Eladó családi ház

Jászberény

75 M Ft
3 szoba
168 m²
Kőtelek
Eladó családi ház

Kőtelek

11.9 M Ft
2 szoba
65 m²
Újszász
Eladó családi ház

Újszász

56.055 M Ft
3 szoba
65 m²
Szolnok
Eladó családi ház

Szolnok

20.5 M Ft
2 szoba
78 m²
Újszász
Eladó családi ház

Újszász

5.9 M Ft
1 + 1 szoba
31 m²
Újszász
Eladó családi ház

Újszász

18.99 M Ft
1 szoba
42 m²
Szolnok
Eladó családi ház

Szolnok

120 M Ft
3 + 4 szoba
296 m²
Újszász
Eladó családi ház

Újszász

24.9 M Ft
3 szoba
90 m²
Újszász
Eladó családi ház

Újszász

39.7 M Ft
2 + 2 szoba
180 m²
Újszász
Eladó családi ház

Újszász

69.999 M Ft
3 szoba
83 m²
Jászberény
Eladó családi ház

Jászberény

118 M Ft
1 szoba
190 m²
Újszász
Eladó családi ház

Újszász

69.999 M Ft
3 szoba
83 m²
Újszász
Eladó családi ház

Újszász

79.9 M Ft
4 szoba
91 m²
Újszász
Eladó családi ház

Újszász

54.423 M Ft
3 szoba
63 m²

Falusi CSOK ingatlanok

Ceglédbercel, Aranyhegy utca
Eladó családi ház

Ceglédbercel

99.9 M Ft
5 szoba
110 m²
Pécsvárad
Eladó családi ház

Pécsvárad

189 M Ft
7 szoba
618 m²
Nagybaracska
Eladó családi ház

Nagybaracska

35 M Ft
3 szoba
110 m²
Balatonszepezd
Eladó családi ház

Balatonszepezd

299 M Ft
5 szoba
220 m²
Ceglédbercel
Eladó családi ház

Ceglédbercel

67 M Ft
4 szoba
102 m²
Vajszló
Eladó családi ház

Vajszló

21.49 M Ft
2 szoba
91 m²
Zengővárkony
Eladó családi ház

Zengővárkony

28 M Ft
3 szoba
87 m²
Pánd
Eladó családi ház

Pánd

28.9 M Ft
3 szoba
74 m²