River Life

Eladó családi ház
Tura

+ 11 kép 1/14
43 900 000 Ft43.9 M Ft 585 333 Ft/m2
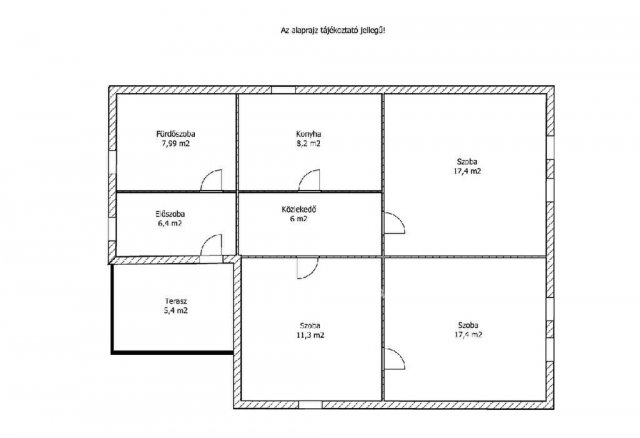
2 szoba
75 m²
építés éve:1970

Részletes adatok

Telekméret: 746 m2
Fűtés: Gázkonvektor
Energetikai besorolás: Nem adta meg a hirdető

Az OTP Bank lakáshitel ajánlataFizetett hirdetés

+36 20 220
Szabó Sándor
referens

Érdekel az OTP Bank kedvezményes lakáshitel ajánlata? *

* A kérdésre „Igen” válasz bejelölése esetén, az „Üzenet küldése” gombra kattintva kijelentem, hogy az OTP Bank Nyrt. Adatkezelési tájékoztatójának tartalmát megismertem és tudomásul vettem.

Eladó családi ház leírása

Különleges otthon a Schossberger-kastély szomszédságában - kétgenerációs lehetőséggel!

Eladásra kínálunk Tura egyik legkülönlegesebb részén, a híres Schossberger-kastély közvetlen közelében egy 75 m2-es családi házat!

Az ingatlan 746 m2-es telken helyezkedik el, amely számos lehetőséget kínál akár bővítésre, gazdálkodásra vagy több generáció együttélésére.

A ház főbb jellemzői:
- 75 m2 lakótér
- 3 szoba
- vegyes falazat (túlnyomórészt vályog)
- praktikus elrendezés

Az ingatlanon nemrég felújítás történt, mely során:
- új bejárati ajtó került beépítésre
- megújultak a hideg- és melegburkolatok
- a fürdőszobában új víz- és csatornarendszer lett kialakítva

A telken található:
- több melléképület
- garázs
- különálló nyári konyha, amelyből akár egy önálló, egyszobás lakrész is kialakítható

Ezáltal az ingatlan kiváló választás lehet:
- kétgenerációs otthonnak
- befektetésnek (külön lakrész kiadására)
- vagy akár nyugodt, kertvárosi életre vágyóknak

A kastély közelsége nemcsak különleges hangulatot ad a környéknek, hanem hosszú távon értéknövelő tényező is lehet.

Buszmegálló, orvos, óvoda, iskola, bölcsőde, bevásárlási lehetőség a telektől 5-10 perc sétára található.

Ha egy sok lehetőséget rejtő ingatlant keres jó adottságokkal, ezt érdemes megnézni! Keressen bizalommal, akár hétvégén is!
Érd.: Szabó Sándor +3620-220 4440

Referencia szám: M326428-ZE

Hirdetés feltöltve: 2026. 04. 12.

2 szobás családi házak ára Turán

Ebből az összehasonlításból megtudhatod, hogyan viszonyul a lakás ára a környékbeli családi házak átlagos árához. Ez nem azt jelenti, hogy ennyivel olcsóbb vagy drágább, mint amennyit a lakás ér, hanem hogy ennyivel tér el a környékbeli átlagtól.

Ennek a m² ára
Tura m² ár
585 e Ft
455 e Ft -29%
Ennek az ára
Tura átlagár
43.9 M Ft m Ft
32.6 m Ft -35%

Az ingatlan elhelyezkedése

Cím: Tura

Eladó családi házak a környékről

Budakeszi, Makkosmária
Eladó családi ház

Budakeszi

100 M Ft
1 szoba
10 m²
Budakeszi, Budakeszi kertváros
Eladó családi ház

Budakeszi

229 M Ft
10 szoba
450 m²
Tápiószentmárton
Eladó családi ház

Tápiószentmárton

16.5 M Ft
3 szoba
50 m²
Tura
Eladó családi ház

Tura

45 M Ft
3 szoba
110 m²
Tura
Eladó családi ház

Tura

52.2 M Ft
3 szoba
86 m²
Tura
Eladó családi ház

Tura

13.499 M Ft
1 szoba
26 m²
Tápiószele
Eladó családi ház

Tápiószele

11.9 M Ft
3 szoba
62 m²
Tápiógyörgye
Eladó családi ház

Tápiógyörgye

19.9 M Ft
3 szoba
65 m²
Tura
Eladó családi ház

Tura

45 M Ft
3 szoba
80 m²
Tura
Eladó családi ház

Tura

54.9 M Ft
3 szoba
113 m²
Érd
Eladó családi ház

Érd

164.9 M Ft
5 szoba
192 m²
Dunakeszi
Eladó családi ház

Dunakeszi

250 M Ft
4 szoba
180 m²
Tura
Eladó családi ház

Tura

52.2 M Ft
3 szoba
86 m²
Tura
Eladó családi ház

Tura

50.5 M Ft
6 + 1 szoba
156 m²
Tápiószele
Eladó családi ház

Tápiószele

37.9 M Ft
4 szoba
141 m²
Tura
Eladó családi ház

Tura

45 M Ft
3 szoba
110 m²
Érd, Érdliget - Kutyavár, Érd-liget
Eladó családi ház

Érd

230 M Ft
7 szoba
280 m²
Kerepes
Eladó családi ház

Kerepes

199 M Ft
6 szoba
360 m²
Tura
Eladó családi ház

Tura

47.9 M Ft
4 szoba
100 m²
Tura
Eladó családi ház

Tura

87 M Ft
7 szoba
154 m²
Zebegény
Eladó családi ház

Zebegény

69.9 M Ft
6 szoba
245 m²
Tura
Eladó családi ház

Tura

70 M Ft
2 + 1 szoba
86 m²
Tura, Katona út
Eladó családi ház

Tura

40 M Ft
3 szoba
58 m²
Tura, Vásár utca
Eladó családi ház

Tura

195 M Ft
4 szoba
570 m²

Falusi CSOK ingatlanok

Nagyréde
Eladó családi ház

Nagyréde

69.5 M Ft
4 szoba
110 m²
Szentliszló
Eladó családi ház

Szentliszló

62.794 M Ft
2 + 3 szoba
170 m²
Balatonszemes
Eladó téglalakás

Balatonszemes

119.9 M Ft
2 szoba
81 m²
Bakonybél
Eladó családi ház

Bakonybél

69.8 M Ft
6 szoba
160 m²
Badacsonytördemic
Eladó családi ház

Badacsonytördemic

90 M Ft
3 szoba
130 m²
Iklad
Eladó családi ház

Iklad

60 M Ft
3 szoba
76 m²
Földeák, Béke utca
Eladó családi ház

Földeák

86 M Ft
7 szoba
357 m²
Hegyeshalom
Eladó téglalakás

Hegyeshalom

56.9 M Ft
57 m²
57 m²