Astora Art House

Eladó családi ház
Tószeg

Figyelem!

Ez az ingatlan a 2019.07.01-től induló falusi CSOK által támogatott településen található

+ 17 kép 1/20
22 000 000 Ft22 M Ft 215 686 Ft/m2
3 + 2 szoba
102 m2
építés éve:1955

Részletes adatok

Állapot: Átlagos
Telekméret: 666 m2
Fűtés: Egyéb
Energetikai besorolás: I

Az OTP Bank lakáshitel ajánlataFizetett hirdetés

+36 20 382
Szűcsné Gellér Katalin
Jászberény. OTPIP SzeMi

Érdekel az OTP Bank kedvezményes lakáshitel ajánlata? *

* A kérdésre „Igen” válasz bejelölése esetén, az „Üzenet küldése” gombra kattintva kijelentem, hogy az OTP Bank Nyrt. Adatkezelési tájékoztatójának tartalmát megismertem és tudomásul vettem.

Eladó családi ház leírása

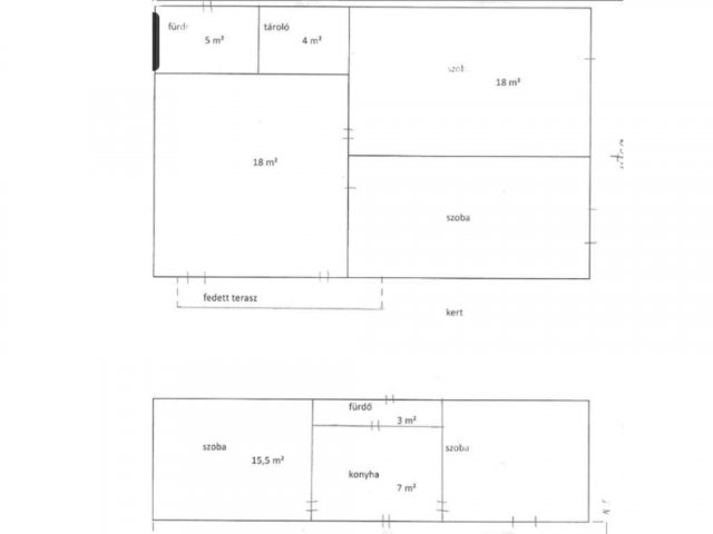
Jász-Nagykun-Szolnok vármegyében, mindössze 15 km-re Szolnoktól, Tószegen eladó egy azonnal költözhető, kétgenerációs családi ház.

A 666 nm-es telken két különálló lakrész található, így akár két család számára is ideális választás lehet.
A nagyobb, 60 nm-es épületben két tágas szoba kapott helyet, amelyek még kialakításra várnak, valamint egy 18 nm-es nappali, konyha, egy 7 nm-es fürdő + WC és egy 5 nm-es kamra.
A ház stabil beton alapra épült, vályog falazattal, fűtését kályha biztosítja, a gáz pedig az utcában elérhető.

A kisebb, 42 nm-es házrészben két kényelmes szoba, egy konyha, valamint fürdő + WC található, a fűtést itt is kályha adja.
A bejárat előtt egy hangulatos, nagy fedett terasz várja új lakóit, tökéletes helyszínt teremtve a reggeli kávéhoz vagy egy nyugodt esti pihenéshez.
A telken ezen felül garázs és gazdasági épületek is rendelkezésre állnak, így minden adott a kényelmes mindennapokhoz.
A településen falusi CSOK is igénybe vehető.

22000000 Ft

Hirdetés feltöltve: 2026. 01. 26. Utoljára módosítva: 2026. 01. 26.

Az ingatlan elhelyezkedése

Cím: Tószeg

Eladó ingatlanok a környékről

Eladó családi ház
Eladó családi ház

Jászberény

95 M Ft
5 szoba
150 m2
Eladó családi ház
Eladó családi ház

Abádszalók

16 M Ft
4 szoba
110 m2
Eladó családi ház
Eladó családi ház

Kunszentmárton

13.9 M Ft
3 szoba
92 m2
Eladó családi ház
Eladó családi ház

Tószeg

16 M Ft
5 szoba
97 m2
Eladó családi ház
Eladó családi ház

Tószeg

12.99 M Ft
2 szoba
37 m2
Eladó családi ház
Eladó családi ház

Jászberény

39.9 M Ft
5 szoba
160 m2
Eladó családi ház
Eladó családi ház

Szolnok

20.5 M Ft
2 szoba
78 m2
Eladó családi ház
Eladó családi ház

Tószeg

47.9 M Ft
3 + 1 szoba
106 m2
Eladó családi ház
Eladó családi ház

Tiszafüred

119 M Ft
4 + 1 szoba
165 m2
Eladó családi ház
Eladó családi ház

Szászberek

88 M Ft
5 szoba
150 m2
Eladó családi ház
Eladó családi ház

Jászárokszállás

21.5 M Ft
2 szoba
45 m2
Eladó családi ház
Eladó családi ház

Tószeg, Utca

38.99 M Ft
2 szoba
92 m2
Eladó családi ház
Eladó családi ház

Jánoshida

23 M Ft
4 szoba
82 m2
Eladó családi ház
Eladó családi ház

Tószeg

47.9 M Ft
3 + 1 szoba
106 m2
Eladó családi ház
Eladó családi ház

Mezőtúr, Tündér

25 M Ft
1 szoba
85 m2
Eladó családi ház
Eladó családi ház

Tószeg

96.7 M Ft
5 szoba
200 m2
Eladó családi ház
Eladó családi ház

Tiszafüred

39.9 M Ft
4 szoba
90 m2
Eladó családi ház
Eladó családi ház

Cibakháza

12.9 M Ft
4 szoba
111 m2
Eladó családi ház
Eladó családi ház

Tószeg

17 M Ft
4 + 2 szoba
135 m2
Eladó családi ház
Eladó családi ház

Szolnok

41.8 M Ft
2 szoba
95 m2
Eladó családi ház
Eladó családi ház

Törökszentmiklós

14.9 M Ft
1 + 2 szoba
65 m2
Eladó családi ház
Eladó családi ház

Tószeg

22 M Ft
3 + 2 szoba
102 m2
Eladó családi ház
Eladó családi ház

Cibakháza

2.5 M Ft
2 szoba
75 m2
Eladó családi ház
Eladó családi ház

Szolnok

120 M Ft
3 + 4 szoba
296 m2

Falusi CSOK ingatlanok

Eladó családi ház
Eladó családi ház

Úri, Fő utca

99 M Ft
6 szoba
150 m2
Eladó családi ház
Eladó családi ház

Szigetcsép, Szabadság utca

62 M Ft
4 szoba
120 m2
Eladó családi ház
Eladó családi ház

Bugac

34.4 M Ft
3 szoba
70 m2
Eladó családi ház
Eladó családi ház

Szederkény

107.9 M Ft
6 szoba
224 m2
Eladó ikerház
Eladó ikerház

Balatonakali

129 M Ft
4 szoba
145 m2
Eladó családi ház
Eladó családi ház

Gégény, Kossuth

15 M Ft
4 szoba
135 m2
Eladó családi ház
Eladó családi ház

Törtel

59.9 M Ft
3 szoba
66 m2
Eladó családi ház
Eladó családi ház

Zengővárkony

28 M Ft
3 szoba
87 m2

Falusi CSOK ingatlanok

Eladó családi ház
Eladó családi ház

Csengőd

42 M Ft
2 szoba
81 m2
Eladó családi ház
Eladó családi ház

Abádszalók

70 M Ft
3 szoba
100 m2
Eladó ikerház
Eladó ikerház

Bodajk

64.9 M Ft
5 szoba
90 m2
Eladó családi ház
Eladó családi ház

Újszilvás

5.9 M Ft
1 szoba
31 m2
Eladó családi ház
Eladó családi ház

Magyarszék

48.5 M Ft
3 + 1 szoba
86 m2
Eladó családi ház
Eladó családi ház

Pécsvárad

85 M Ft
4 szoba
100 m2
Eladó családi ház
Eladó családi ház

Hajós

49.5 M Ft
6 szoba
394 m2
Eladó családi ház
Eladó családi ház

Tápiószőlős

14.9 M Ft
2 szoba
67 m2