Astora Art House

Eladó családi ház
Tószeg

Figyelem!

Ez az ingatlan a 2019.07.01-től induló falusi CSOK által támogatott településen található

+ 17 kép 1/20
22 000 000 Ft22 M Ft 215 686 Ft/m2
3 + 2 szoba
102 m2
építés éve:1955

Részletes adatok

Állapot: Átlagos
Telekméret: 666 m2
Fűtés: Egyéb
Energetikai besorolás: Nem adta meg a hirdető

Az OTP Bank lakáshitel ajánlataFizetett hirdetés

+36 20 348
Botka József
Szolnok Szapáry utca 23 - OTP Ingatlanpont Iroda

Érdekel az OTP Bank kedvezményes lakáshitel ajánlata? *

* A kérdésre „Igen” válasz bejelölése esetén, az „Üzenet küldése” gombra kattintva kijelentem, hogy az OTP Bank Nyrt. Adatkezelési tájékoztatójának tartalmát megismertem és tudomásul vettem.

Eladó családi ház leírása

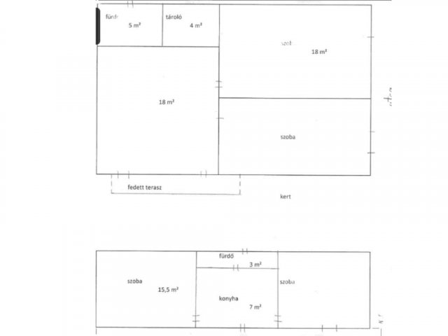
Jász-Nagykun-Szolnok vármegyében, mindössze 15 km-re Szolnoktól, Tószegen eladó egy azonnal költözhető, kétgenerációs családi ház.

A 666 nm-es telken két különálló lakrész található, így akár két család számára is ideális választás lehet.
A nagyobb, 60 nm-es épületben két tágas szoba kapott helyet, amelyek még kialakításra várnak, valamint egy 18 nm-es nappali, konyha, egy 7 nm-es fürdő + WC és egy 5 nm-es kamra.
A ház stabil beton alapra épült, vályog falazattal, fűtését kályha biztosítja, a gáz pedig az utcában elérhető.

A kisebb, 42 nm-es házrészben két kényelmes szoba, egy konyha, valamint fürdő + WC található, a fűtést itt is kályha adja.
A bejárat előtt egy hangulatos, nagy fedett terasz várja új lakóit, tökéletes helyszínt teremtve a reggeli kávéhoz vagy egy nyugodt esti pihenéshez.
A telken ezen felül garázs és gazdasági épületek is rendelkezésre állnak, így minden adott a kényelmes mindennapokhoz.
A településen falusi CSOK is igénybe vehető.

Ha kétgenerációs megoldást keresel, vagy szeretnél egy külön lakrészt akár kiadásra, akár saját vállalkozás számára, ez az ingatlan remek lehetőség.
Ha szeretnéd személyesen is megnézni, keress bátran üzenetben vagy telefonon!

Hirdetés feltöltve: 2025. 11. 26. Utoljára módosítva: 2025. 12. 10.

Az ingatlan elhelyezkedése

Cím: Tószeg

Eladó ingatlanok a környékről

Eladó családi ház
Eladó családi ház

Jászszentandrás

24.25 M Ft
3 szoba
75 m2
Eladó családi ház
Eladó családi ház

Kisújszállás

8 M Ft
1 + 1 szoba
61 m2
Eladó családi ház
Eladó családi ház

Tószeg

17 M Ft
4 + 2 szoba
135 m2
Eladó családi ház
Eladó családi ház

Tószeg

12.99 M Ft
2 szoba
37 m2
Eladó családi ház
Eladó családi ház

Tószeg

17.9 M Ft
2 szoba
51 m2
Eladó családi ház
Eladó családi ház

Cibakháza

2.5 M Ft
2 szoba
75 m2
Eladó családi ház
Eladó családi ház

Szolnok

20.5 M Ft
2 szoba
78 m2
Eladó családi ház
Eladó családi ház

Újszász

39.7 M Ft
2 + 2 szoba
180 m2
Eladó családi ház
Eladó családi ház

Tószeg

41.9 M Ft
3 szoba
74 m2
Eladó családi ház
Eladó családi ház

Tószeg, Utca

38.99 M Ft
2 szoba
92 m2
Eladó nyaraló
Eladó nyaraló

Szolnok

21.95 M Ft
365 m²
24 m2
Eladó családi ház
Eladó családi ház

Jászfényszaru

55 M Ft
4 szoba
140 m2
Eladó családi ház
Eladó családi ház

Jászberény

75 M Ft
3 szoba
168 m2
Eladó családi ház
Eladó családi ház

Jászladány, Liszt Ferenc utca

35 M Ft
2 + 2 szoba
120 m2
Eladó családi ház
Eladó családi ház

Jászjákóhalma

72.5 M Ft
4 szoba
187 m2
Eladó családi ház
Eladó családi ház

Tószeg, Szabadság út

19.9 M Ft
3 szoba
58 m2
Eladó családi ház
Eladó családi ház

Kunszentmárton

13.9 M Ft
3 szoba
92 m2
Eladó családi ház
Eladó családi ház

Jászfényszaru

29.5 M Ft
2 + 1 szoba
103 m2
Eladó családi ház
Eladó családi ház

Szászberek

88 M Ft
5 szoba
150 m2
Eladó családi ház
Eladó családi ház

Jászjákóhalma

25 M Ft
4 + 1 szoba
200 m2
Eladó családi ház
Eladó családi ház

Jászberény, Tőtevény tanya

99.9 M Ft
6 szoba
229 m2
Eladó családi ház
Eladó családi ház

Tószeg

145 M Ft
5 szoba
130 m2
Eladó családi ház
Eladó családi ház

Szolnok

120 M Ft
3 + 4 szoba
296 m2
Eladó családi ház
Eladó családi ház

Jászárokszállás

21.5 M Ft
2 szoba
45 m2

Falusi CSOK ingatlanok

Eladó családi ház
Eladó családi ház

Kemeneshőgyész

8 M Ft
2 szoba
60 m2
Eladó családi ház
Eladó családi ház

Felsőlajos

100 M Ft
4 szoba
140 m2
Eladó családi ház
Eladó családi ház

Nyáregyháza

124.9 M Ft
7 szoba
267 m2
Eladó családi ház
Eladó családi ház

Mikebuda

68.5 M Ft
2 szoba
90 m2
Eladó családi ház
Eladó családi ház

Hercegszántó

7 M Ft
3 szoba
120 m2
Eladó családi ház
Eladó családi ház

Kislőd

53.2 M Ft
3 szoba
86 m2
Eladó családi ház
Eladó családi ház

Belvárdgyula

58.65 M Ft
5 szoba
164 m2
Eladó családi ház
Eladó családi ház

Balatonfőkajár

40 M Ft
2 szoba
64 m2

Falusi CSOK ingatlanok

Eladó családi ház
Eladó családi ház

Vasszécseny

20 M Ft
2 szoba
139 m2
Eladó családi ház
Eladó családi ház

Dunaalmás

52.5 M Ft
3 + 1 szoba
140 m2
Eladó családi ház
Eladó családi ház

Csemő

54.9 M Ft
4 szoba
108 m2
Eladó családi ház
Eladó családi ház

Adásztevel

8.9 M Ft
2 szoba
63 m2
Eladó családi ház
Eladó családi ház

Enese

82.9 M Ft
4 szoba
90 m2
Eladó családi ház
Eladó családi ház

Tiszatenyő

13.99 M Ft
2 szoba
63 m2
Eladó családi ház
Eladó családi ház

Ácsteszér

45 M Ft
4 szoba
152 m2
Eladó családi ház
Eladó családi ház

Cák

38.8 M Ft
2 szoba
70 m2