Avico Greentop

Eladó családi ház
Törtel

Figyelem!

Ez az ingatlan a 2019.07.01-től induló falusi CSOK által támogatott településen található

40 000 000 Ft40 M Ft 493 827 Ft/m2
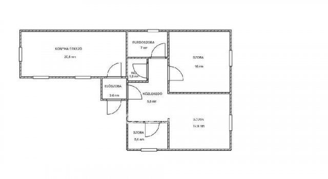
2 + 1 szoba
81 m²
építés éve:1970

Részletes adatok

Telekméret: 1537 m2
Fűtés: Egyéb
Energetikai besorolás: Nem adta meg a hirdető

Az OTP Bank lakáshitel ajánlataFizetett hirdetés

+36 70 393
Rácz Ildikó Éva
OTP - Vágujhelyi Zsuzsanna

Érdekel az OTP Bank kedvezményes lakáshitel ajánlata? *

* A kérdésre „Igen” válasz bejelölése esetén, az „Üzenet küldése” gombra kattintva kijelentem, hogy az OTP Bank Nyrt. Adatkezelési tájékoztatójának tartalmát megismertem és tudomásul vettem.

Eladó családi ház leírása

Pest Vármegyében eladó egy teljes belső felújításon átesett családi ház. Az 1960-as években épült, vályog falazatú családi ház szerkezetileg kifogástalan állapotban van.
2021-ben teljes körű belső felújításon esett át, így az ingatlan azonnal birtokba vehető, további ráfordítást nem igényel. A fürdőszobában zuhanykabin található, különleges, kézzel készített egyedi kerámia falburkolattal és mosdókagylóval. A helyiség komfortját padlófűtés teszi teljessé. A világos, tágas konyhát egyedi kerámia falburkolat teszi különlegessé. A gázvezeték az utcában elérhető, jelenleg a gáztűzhely palackos gázzal működik. Az otthon melegéről központi elhelyezkedésű cserépkályha gondoskodik, a hálószobában hűtő-fútő klima is található. A vételár tartalmazza a teljes bútorzatot, valamint a háztartási gépeket is, többek között a páraelszívót, két hűtőszekrényt, a gáztűzhelyet, a mosógépet és a 100 literes bojlert. Az ingatlan egyedi hangulatát tovább emelik a kézzel készített, különleges kerámia lámpatestek, amelyek szintén az ár részét képezik és az új tulajdonosnál maradnak. A kert öntözését fúrt kút biztosítja szivattyúval, a kerti eszközök tárolására külön tároló szolgál, a fűnyíró és az öntözőrendszer pedig a vételár részét képezi. A barátságos, gondozott kertben gyümölcsfák, bogyós növények, diófa, szőlő és rózsák is helyet kaptak. A 16 nm-es, korábban garázsként használt melléképület jelenleg műhelyként működik;, vízvezetékkel ellátott és ipari árammal felszerelt. A vásárlás finanszírozásában az OTP kedvezőbb kamatozású hitelkonstrukcióival és egyéb banki termékek kínálatával tudunk segíteni, díjmentesen, sorban állás nélkül! Az adásvételi szerződés lebonyolításához korrekt ügyvédi közreműködést tudunk ajánlani. Amennyiben felkeltettem érdeklődését, hívjon bizalommal!
We can recommend the assistance of a reliable (English speaking) lawyer, if so requested and can also offer help at arranging the administrative matters related to the acquisition. If you wish to send an English language notification of your interest, please send a message thereof indicating your phone number (and/or e-mail address) so we can contact you without language difficulties.

Referencia szám: M322854

Hirdetés feltöltve: 2026. 03. 13. Utoljára módosítva: 2026. 03. 13.

3 szobás családi házak ára Törtelen

Ebből az összehasonlításból megtudhatod, hogyan viszonyul a lakás ára a környékbeli családi házak átlagos árához. Ez nem azt jelenti, hogy ennyivel olcsóbb vagy drágább, mint amennyit a lakás ér, hanem hogy ennyivel tér el a környékbeli átlagtól.

Ennek a m² ára
Törtel m² ár
494 e Ft
431 e Ft -15%
Ennek az ára
Törtel átlagár
40 M Ft m Ft
33 m Ft -21%

Az ingatlan elhelyezkedése

Cím: Törtel

Eladó családi házak a környékről

Törtel
Eladó családi ház

Törtel

16.5 M Ft
2 szoba
46 m²
Törtel
Eladó családi ház

Törtel

24.9 M Ft
2 szoba
55 m²
Törtel
Eladó családi ház

Törtel

28.5 M Ft
5 szoba
175 m²
Tápiószentmárton
Eladó családi ház

Tápiószentmárton

16.5 M Ft
3 szoba
50 m²
Zebegény
Eladó családi ház

Zebegény

69.9 M Ft
6 szoba
245 m²
Tápiószőlős
Eladó családi ház

Tápiószőlős

34.9 M Ft
5 szoba
210 m²
Tápiószele
Eladó családi ház

Tápiószele

37.9 M Ft
4 szoba
141 m²
Budaörs
Eladó családi ház

Budaörs

400 M Ft
12 szoba
583 m²
Tápiószentmárton
Eladó családi ház

Tápiószentmárton

48 M Ft
5 szoba
180 m²
Törtel
Eladó családi ház

Törtel

9 M Ft
3 szoba
87 m²
Dunakeszi
Eladó családi ház

Dunakeszi

250 M Ft
4 szoba
180 m²
Tápiószele
Eladó családi ház

Tápiószele

32.9 M Ft
4 szoba
200 m²
Törtel, Ceglédi út
Eladó családi ház

Törtel

61.3 M Ft
3 szoba
91 m²
Törtel
Eladó családi ház

Törtel

29.9 M Ft
4 szoba
120 m²
Törtel
Eladó családi ház

Törtel

31.9 M Ft
5 szoba
150 m²
Érd, Érdliget - Kutyavár, Érd-liget
Eladó családi ház

Érd

230 M Ft
7 szoba
280 m²
Budakeszi, Budakeszi kertváros
Eladó családi ház

Budakeszi

229 M Ft
10 szoba
450 m²
Budakeszi, Makkosmária
Eladó családi ház

Budakeszi

100 M Ft
1 szoba
10 m²
Tápiószele
Eladó családi ház

Tápiószele

45 M Ft
6 szoba
360 m²
Budakeszi, Budakeszi kertváros
Eladó családi ház

Budakeszi

140 M Ft
2 szoba
55 m²
Törtel
Eladó családi ház

Törtel

9 M Ft
3 szoba
87 m²
Budakeszi
Eladó családi ház

Budakeszi

130 M Ft
5 szoba
30 m²
Tápiószele
Eladó családi ház

Tápiószele

11.9 M Ft
3 szoba
62 m²
Törtel
Eladó családi ház

Törtel

24 M Ft
3 szoba
70 m²

Falusi CSOK ingatlanok

Csemő
Eladó családi ház

Csemő

89 M Ft
4 szoba
140 m²
Szellő
Eladó családi ház

Szellő

125 M Ft
5 szoba
124 m²
Törtel
Eladó családi ház

Törtel

35 M Ft
3 szoba
52 m²
Csemő
Eladó családi ház

Csemő

61.9 M Ft
3 szoba
88 m²
Zagyvarékas
Eladó családi ház

Zagyvarékas

14.5 M Ft
3 szoba
85 m²
Galgahévíz
Eladó családi ház

Galgahévíz

38 M Ft
3 szoba
101 m²
Balatonszemes
Eladó téglalakás

Balatonszemes

119.9 M Ft
2 szoba
81 m²
Ceglédbercel, Aranyhegy utca
Eladó családi ház

Ceglédbercel

114.99 M Ft
5 szoba
133 m²

Falusi CSOK ingatlanok

Halimba
Eladó családi ház

Halimba

59.9 M Ft
6 szoba
182 m²
Ceglédbercel
Eladó családi ház

Ceglédbercel

67 M Ft
4 szoba
102 m²
Nagykörű, Jókai Mór utca 20
Eladó családi ház

Nagykörű

8.97 M Ft
1 + 1 szoba
101 m²
Szentlőrinckáta
Eladó családi ház

Szentlőrinckáta

28.49 M Ft
6 szoba
204 m²
Ceglédbercel
Eladó családi ház

Ceglédbercel

80 M Ft
7 szoba
125 m²
Újhartyán
Eladó családi ház

Újhartyán

99.9 M Ft
5 szoba
168 m²
Vasboldogasszony
Eladó családi ház

Vasboldogasszony

85 M Ft
6 szoba
180 m²
Tószeg
Eladó családi ház

Tószeg

16 M Ft
5 szoba
97 m²