River Life

Eladó családi ház
Törökbálint

+ 10 kép 1/13
196 000 000 Ft196 M Ft 960 784 Ft/m2
5 szoba
204 m2
építés éve:2024

Részletes adatok

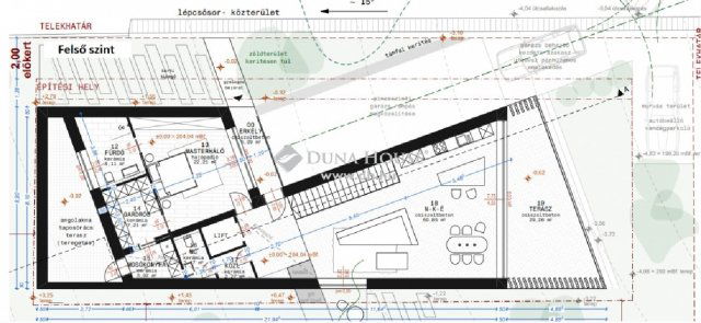
Telekméret: 1450 m2
Fűtés: Geotermikus
Energetikai besorolás: Nem adta meg a hirdető

Az OTP Bank lakáshitel ajánlataFizetett hirdetés

+36 1 690
Drevnó Béla
Duna House Kispest

Érdekel az OTP Bank kedvezményes lakáshitel ajánlata? *

* A kérdésre „Igen” válasz bejelölése esetén, az „Üzenet küldése” gombra kattintva kijelentem, hogy az OTP Bank Nyrt. Adatkezelési tájékoztatójának tartalmát megismertem és tudomásul vettem.

Eladó családi ház leírása

GYÖNYÖRŰ PANORÁMÁS TELKEN, ÚJ ÉPÍTÉSŰ PROJEKT, TÖRÖKBÁLINT LEGKEDVELTEBB RÉSZÉN!

Ha különleges helyszínt keres álmai otthonának vagy befektetésének, akkor ezt a rendkívüli adottságokkal rendelkező telket mindenképpen érdemes megnéznie!
ÖRÖK PANORÁMA - LUXUS KÖRNYEZET - ENGEDÉLYEZETT ÉPÍTÉSI TERVEK

Józsefhegyen, a város felett, a központtól karnyújtásnyira található.
A környező telkek már beépültek, a környék arculatát luxusingatlanok és természetes zöld területek jellemzik.
M0, M7 és M1 autópálya néhány perc alatt elérhető.

Az irányár a telket, a főépítész által jóváhagyott teljes építészeti tervdokumentációt és a talajvizsgálati szakvéleményt is tartalmazza.
A kivitelezés külön megegyezés tárgya.

A telek paraméterei:
- Összesen 1450 nm alapterületű
- Lke-4 kertvárosias besorolású
- Összesen 4 lakóegység építhető
- Víz és csatorna a telken belül, villany a telekhatárnál található
- 25 %-os terepszint feletti és alatti beépíthetőség
- Legnagyobb épületmagasság: 5 m
- Zöldterületi arány: 50 %
A Duna House teljes kínálatával kapcsolatban forduljanak hozzám bizalommal!

Bankfüggetlen pénzügyi szakembereink tanácsadással, ügyintézéssel tudják segíteni Önöket álmaik, céljaik megvalósításában!

Vegye igénybe díjmentes konzultációinkat!

https://www.facebook.com/otthonkonnyeden

Referencia szám: HZ065757

Hirdetés feltöltve: 2025. 11. 05. Utoljára módosítva: 2025. 12. 03.

5 szobás családi házak ára Törökbálinton

Ebből az összehasonlításból megtudhatod, hogyan viszonyul a lakás ára a környékbeli családi házak átlagos árához. Ez nem azt jelenti, hogy ennyivel olcsóbb vagy drágább, mint amennyit a lakás ér, hanem hogy ennyivel tér el a környékbeli átlagtól.

Ennek a m² ára
Törökbálint m² ár
961 e Ft
1119 e Ft 14%
Ennek az ára
Törökbálint átlagár
196 M Ft m Ft
302.6 m Ft 35%

Az ingatlan elhelyezkedése

Cím: Törökbálint

Eladó családi házak a környékről

Eladó családi ház
Eladó családi ház

Törökbálint

197 M Ft
7 szoba
168 m2
Eladó családi ház
Eladó családi ház

Pécel, Reményik Sándor utca

296 M Ft
6 szoba
396 m2
Eladó családi ház
Eladó családi ház

Tahitótfalu

188 M Ft
7 szoba
280 m2
Eladó családi ház
Eladó családi ház

Leányfalu

237 M Ft
9 szoba
800 m2
Eladó családi ház
Eladó családi ház

Törökbálint

680 M Ft
649 m²
1120 m2
Eladó családi ház
Eladó családi ház

Törökbálint

196 M Ft
5 szoba
204 m2
Eladó családi ház
Eladó családi ház

Törökbálint

79.9 M Ft
3 szoba
103 m2
Eladó családi ház
Eladó családi ház

Törökbálint, Kossuth Lajos utca

345 M Ft
8 szoba
318 m2
Eladó családi ház
Eladó családi ház

Törökbálint

666.75 M Ft
7 szoba
426 m2
Eladó családi ház
Eladó családi ház

Tápiószentmárton

48 M Ft
5 szoba
180 m2
Eladó családi ház
Eladó családi ház

Törökbálint

666.75 M Ft
7 szoba
426 m2
Eladó családi ház
Eladó családi ház

Remeteszőlős

399.9 M Ft
5 + 2 szoba
260 m2
Eladó családi ház
Eladó családi ház

Tápiószele

37.9 M Ft
4 szoba
141 m2
Eladó családi ház
Eladó családi ház

Törökbálint

196 M Ft
5 szoba
204 m2
Eladó családi ház
Eladó családi ház

Kerepes

199 M Ft
6 szoba
360 m2
Eladó családi ház
Eladó családi ház

Törökbálint, Kazinczy Ferenc utca

139 M Ft
9 szoba
264 m2
Eladó családi ház
Eladó családi ház

Törökbálint

199.99 M Ft
3 szoba
103 m2
Eladó családi ház
Eladó családi ház

Törökbálint, Munkácsy Mihály utca

399 M Ft
1 szoba
340 m2
Eladó családi ház
Eladó családi ház

Törökbálint

700 M Ft
5 + 5 szoba
360 m2
Eladó családi ház
Eladó családi ház

Budakeszi, Makkosmária

100 M Ft
1 szoba
10 m2
Eladó családi ház
Eladó családi ház

Budakeszi, Budakeszi kertváros

140 M Ft
2 szoba
55 m2
Eladó családi ház
Eladó családi ház

Sződ, Rátóti utca

149.99 M Ft
11 szoba
270 m2
Eladó családi ház
Eladó családi ház

Törökbálint

69.9 M Ft
3 szoba
127 m2
Eladó családi ház
Eladó családi ház

Budaörs, Bányász utca

385 M Ft
6 szoba
300 m2

Falusi CSOK ingatlanok

Eladó családi ház
Eladó családi ház

Hernádnémeti

18.9 M Ft
2 szoba
62 m2
Eladó családi ház
Eladó családi ház

Gersekarát, Dózsa György utca

6 M Ft
3 szoba
58 m2
Eladó családi ház
Eladó családi ház

Csatár

98.5 M Ft
2 + 3 szoba
110 m2
Eladó téglalakás
Eladó téglalakás

Balatonszemes

125.2 M Ft
2 szoba
50 m2
Eladó családi ház
Eladó családi ház

Iváncsa

73.9 M Ft
1 + 3 szoba
97 m2
Eladó családi ház
Eladó családi ház

Mezőfalva

39 M Ft
3 szoba
77 m2
Eladó téglalakás
Eladó téglalakás

Balatonszemes

546 M Ft
4 szoba
136 m2
Eladó családi ház
Eladó családi ház

Fertőd

189.9 M Ft
4 szoba
175 m2