Kedves Felhasználónk! Rendszerfrissítés miatt az oldalunk 2026. február 9-én 12 órától várhatóan 20 óráig nem lesz elérhető. Köszönjük megértésed!
Oasis Residence

Eladó családi ház
Tolcsva

Figyelem!

Ez az ingatlan a 2019.07.01-től induló falusi CSOK által támogatott településen található

+ 11 kép 1/14
28 000 000 Ft28 M Ft 285 714 Ft/m2
3 szoba
98 m2
építés éve:1984

Részletes adatok

Telekméret: 670 m2
Fűtés: Házközponti
Energetikai besorolás: Nem adta meg a hirdető

Az OTP Bank lakáshitel ajánlataFizetett hirdetés

+36 20 361
Spéth Gábor György
OTP Ingatlanpont Miskolc Szemere

Érdekel az OTP Bank kedvezményes lakáshitel ajánlata? *

* A kérdésre „Igen” válasz bejelölése esetén, az „Üzenet küldése” gombra kattintva kijelentem, hogy az OTP Bank Nyrt. Adatkezelési tájékoztatójának tartalmát megismertem és tudomásul vettem.

Eladó családi ház leírása

Kizárólag az OTP kínálatában

Az ingatlan megvásárolható az Otthon Start 3%-os hitellel is

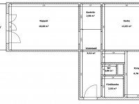
Eladásra kínálunk a zempléni hegység lábánál, Tolcsva településen egy 98 nm alapterületű téglából épült családi házat, mely egy 670 nm-es telken helyezkedik el. Az ingatlanban redőnnyel felszerelt műanyag nyílászárók találhatók, a fűtésről pedig egy vegyestüzelésű kazán gondoskodik, radiátoros hőleadókon keresztül. Az ingatlan azonnal költözhető állapotban van, egyaránt ideális választás lehet családosok, illetve az idősebb korosztály számára is. Jöjjön, nézzük meg együtt és tegyen egy ajánlatot. OTP Banki hátterünknek köszönhetően finanszírozási igényekben (pl. Otthon Start Program, Babaváró, Falusi CSOK, CSOK Plusz, Lakáshitel, Személyi kölcsön stb.), illetve biztosítások tekintetében is díjmentesen, soron kívüli ügyintézéssel segítem ügyfeleim! Az adásvételi szerződéshez igény esetén ügyvédet biztosítunk. Referenciaszám: M317557

Hirdetés feltöltve: 2026. 02. 05. Utoljára módosítva: 2026. 02. 05.

Az ingatlan elhelyezkedése

Cím: Tolcsva

Eladó ingatlanok a környékről

Eladó panellakás
Eladó panellakás

Kazincbarcika

27 M Ft
2 szoba
55 m2
Eladó családi ház
Eladó családi ház

Szuhakálló

179 M Ft
6 szoba
210 m2
Eladó családi ház
Eladó családi ház

Ózd

15 M Ft
7 szoba
225 m2
Eladó családi ház
Eladó családi ház

Ózd

25.99 M Ft
4 szoba
198 m2
Eladó családi ház
Eladó családi ház

Bánhorváti

908.664 M Ft
22 szoba
1490 m2
Eladó családi ház
Eladó családi ház

Telkibánya

65 M Ft
4 + 1 szoba
85 m2
Eladó ikerház
Eladó ikerház

Miskolc

59.9 M Ft
5 + 1 szoba
210 m2
Eladó családi ház
Eladó családi ház

Ózd

13 M Ft
5 szoba
150 m2
Eladó panellakás
Eladó panellakás

Miskolc, Győri kapu, Mátyás Király utca

39.8 M Ft
3 szoba
64 m2
Eladó családi ház
Eladó családi ház

Taktaszada, Thököly utca

37 M Ft
4 + 1 szoba
190 m2
Eladó panellakás
Eladó panellakás

Miskolc

25.9 M Ft
1 + 1 szoba
35 m2
Eladó sorház
Eladó sorház

Felsőzsolca

74.99 M Ft
4 szoba
109 m2
Eladó családi ház
Eladó családi ház

Léh

23.99 M Ft
2 + 1 szoba
100 m2
Eladó családi ház
Eladó családi ház

Rudabánya

19.9 M Ft
5 szoba
140 m2
Eladó telek
Eladó telek

Felsőzsolca

127 M Ft
154 m²
Eladó telek
Eladó telek

Tokaj

19.5 M Ft
1525 m²
Eladó családi ház
Eladó családi ház

Sajógalgóc

47.9 M Ft
3 szoba
140 m2
Eladó családi ház
Eladó családi ház

Miskolc

25.9 M Ft
4 szoba
148 m2
Eladó családi ház
Eladó családi ház

Miskolc

44.99 M Ft
4 + 2 szoba
150 m2
Eladó családi ház
Eladó családi ház

Tarcal

19.9 M Ft
3 szoba
110 m2
Eladó családi ház
Eladó családi ház

Tolcsva

28 M Ft
3 szoba
98 m2
Eladó családi ház
Eladó családi ház

Felsőzsolca

58.9 M Ft
3 + 3 szoba
81 m2
Eladó családi ház
Eladó családi ház

Csobád

27 M Ft
2 + 1 szoba
100 m2
Eladó téglalakás
Eladó téglalakás

Miskolc

74.49 M Ft
3 szoba
67 m2

Falusi CSOK ingatlanok

Eladó téglalakás
Eladó téglalakás

Felsőszentiván, Jókai Mór u 9 fszt 2

17.56 M Ft
1 + 1 szoba
90 m2
Eladó családi ház
Eladó családi ház

Marcaltő

26 M Ft
3 szoba
103 m2
Eladó családi ház
Eladó családi ház

Dunaszekcső

12.5 M Ft
3 szoba
110 m2
Eladó családi ház
Eladó családi ház

Kölked

42 M Ft
3 szoba
100 m2
Eladó családi ház
Eladó családi ház

Recsk

28 M Ft
3 szoba
91 m2
Eladó családi ház
Eladó családi ház

Ónod, Szent István u. 9

9.24 M Ft
1 + 1 szoba
155 m2
Eladó családi ház
Eladó családi ház

Bátmonostor

22.9 M Ft
3 szoba
82 m2
Eladó családi ház
Eladó családi ház

Alattyán

45 M Ft
4 + 1 szoba
186 m2

Falusi CSOK ingatlanok

Eladó családi ház
Eladó családi ház

Győrság

477 M Ft
15 szoba
1115 m2
Eladó családi ház
Eladó családi ház

Kisfalud

91.5 M Ft
2 szoba
70 m2
Eladó családi ház
Eladó családi ház

Kenyeri

21.8 M Ft
2 szoba
75 m2
Eladó családi ház
Eladó családi ház

Szakmár

12.9 M Ft
3 + 1 szoba
90 m2
Eladó családi ház
Eladó családi ház

Alattyán

45 M Ft
4 + 1 szoba
186 m2
Eladó családi ház
Eladó családi ház

Véménd

46.9 M Ft
5 szoba
195 m2
Eladó családi ház
Eladó családi ház

Poroszló, Dobosok útja 8

18.94 M Ft
1 + 1 szoba
116 m2
Eladó téglalakás
Eladó téglalakás

Balatonszemes

91.5 M Ft
2 szoba
60 m2