Eladó családi ház
Tiszavasvári

1/1
38 000 000 Ft38 M Ft 211 111 Ft/m2
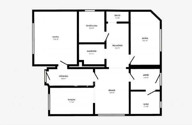
3 + 2 szoba
180 m2
építés éve:1985

Részletes adatok

Állapot: Átlagos
Telekméret: 1042 m2
Fűtés: Gázkazán
Energetikai besorolás: Nem adta meg a hirdető
Zenga Premier

Friss hirdetések, amiket nem találsz meg más ingatlankereső portálon.

Fedezd fel elsőként a Zenga Premier címkés eladó ingatlanokat!

További részletek a zenga.hu-n

Az OTP Bank lakáshitel ajánlataFizetett hirdetés

+36 30 097
Katona Ferenc
OTP Ingatlanpont Kft.

Érdekel az OTP Bank kedvezményes lakáshitel ajánlata? *

* A kérdésre „Igen” válasz bejelölése esetén, az „Üzenet küldése” gombra kattintva kijelentem, hogy az OTP Bank Nyrt. Adatkezelési tájékoztatójának tartalmát megismertem és tudomásul vettem.

Eladó családi ház leírása

Eladó Tiszavasvári központi részén egy 180 négyzetméteres, kétszintes családi ház tágas, 1042 négyzetméteres telken. Az ingatlan tégla falazatú, masszív szerkezetű, új lemeztetővel ellátott, így hosszú távon is megbízható otthont kínál. A házban három szoba és két félszoba található, ami ideális nagyobb családok számára is. A kert rendezett, gondozott, konyhakerttel, ahol akár saját zöldségek is termeszthetők. A környék jó elhelyezkedésű, csendes és biztonságos, mégis közel minden fontos szolgáltatáshoz. Kényelmes, tágas otthon Tiszavasvári egyik legkedveltebb részén.
OTP Banki hátterünknek köszönhetően finanszírozási igényekben (pl. Otthon Start Hitelprogram, Babaváró, Falusi CSOK, CSOK Plusz, Lakáshitel, Személyi kölcsön stb.), illetve biztosítások tekintetében is díjmentesen, soron kívüli ügyintézéssel segítem ügyfeleim! Referenciaszám: M314155

Hirdetés feltöltve: 2025. 10. 08. Utoljára módosítva: 2025. 10. 08.

Az ingatlan elhelyezkedése

Cím: Tiszavasvári

Eladó családi házak a környékről

Eladó családi ház
Eladó családi ház

Tiszavasvári

21.9 M Ft
3 + 2 szoba
110 m2
Eladó családi ház
Eladó családi ház

Tiszavasvári

21.5 M Ft
2 szoba
80 m2
Eladó családi ház
Eladó családi ház

Nyírtelek

10.9 M Ft
2 szoba
55 m2
Eladó családi ház
Eladó családi ház

Nyíregyháza

89.9 M Ft
5 szoba
274 m2
Eladó családi ház
Eladó családi ház

Tiszavasvári

21.99 M Ft
3 szoba
67 m2
Eladó családi ház
Eladó családi ház

Nyíregyháza

69 M Ft
6 szoba
240 m2
Eladó családi ház
Eladó családi ház

Nyíregyháza

190 M Ft
4 szoba
230 m2
Eladó családi ház
Eladó családi ház

Nyíregyháza

180 M Ft
3 szoba
204 m2
Eladó családi ház
Eladó családi ház

Tiszavasvári

11 M Ft
2 szoba
70 m2
Eladó családi ház
Eladó családi ház

Tiszavasvári

21.5 M Ft
2 szoba
80 m2
Eladó családi ház
Eladó családi ház

Tiszavasvári, Vasas utca

21.5 M Ft
4 + 1 szoba
80 m2
Eladó családi ház
Eladó családi ház

Tiszavasvári

21.5 M Ft
2 szoba
80 m2
Eladó családi ház
Eladó családi ház

Tiszavasvári, Toldi utca 3

4.7 M Ft
1 + 1 szoba
62 m2
Eladó családi ház
Eladó családi ház

Nyíregyháza

250 M Ft
4 szoba
440 m2
Eladó családi ház
Eladó családi ház

Tiszavasvári, Toldi utca 3

4.7 M Ft
1 + 1 szoba
62 m2
Eladó családi ház
Eladó családi ház

Tiszavasvári, Kodály Zoltán utca 12

1.02 M Ft
11 + 1 szoba
67 m2
Eladó családi ház
Eladó családi ház

Nyíregyháza, Oros, Oros

55 M Ft
4 szoba
100 m2
Eladó családi ház
Eladó családi ház

Tiszavasvári

23.5 M Ft
2 szoba
80 m2
Eladó családi ház
Eladó családi ház

Tiszavasvári

44.99 M Ft
5 szoba
133 m2
Eladó családi ház
Eladó családi ház

Tiszavasvári

31.9 M Ft
5 szoba
360 m2
Eladó családi ház
Eladó családi ház

Nyíregyháza

23 M Ft
2 szoba
51 m2
Eladó családi ház
Eladó családi ház

Nyíregyháza

44.9 M Ft
1 szoba
51 m2
Eladó családi ház
Eladó családi ház

Napkor

49.8 M Ft
4 szoba
253 m2
Eladó családi ház
Eladó családi ház

Tiszavasvári

24.9 M Ft
5 szoba
200 m2

Falusi CSOK ingatlanok

Eladó családi ház
Eladó családi ház

Galgahévíz

49 M Ft
3 + 1 szoba
108 m2
Eladó családi ház
Eladó családi ház

Dudar

19 M Ft
2 szoba
60 m2
Eladó családi ház
Eladó családi ház

Örkény

29.9 M Ft
3 szoba
106 m2
Eladó családi ház
Eladó családi ház

Zánka

89 M Ft
5 + 2 szoba
200 m2
Eladó családi ház
Eladó családi ház

Lázi

18.9 M Ft
2 szoba
74 m2
Eladó téglalakás
Eladó téglalakás

Hegyeshalom

28 M Ft
1 szoba
29 m2
Eladó családi ház
Eladó családi ház

Geresdlak

24.8 M Ft
1 szoba
50 m2
Eladó családi ház
Eladó családi ház

Tapsony

23.8 M Ft
3 szoba
130 m2