Aerogate Homes

Eladó családi ház
Tiszaörs

Figyelem!

Ez az ingatlan a 2019.07.01-től induló falusi CSOK által támogatott településen található

+ 17 kép 1/20
23 100 000 Ft23.1 M Ft 161 538 Ft/m2
2 + 3 szoba
143 m2
építés éve:1960

Részletes adatok

Telekméret: 1452 m2
Fűtés: Egyéb
Energetikai besorolás: Nem adta meg a hirdető

Az OTP Bank lakáshitel ajánlataFizetett hirdetés

+36 20 496
Jónás Irén
Tiszafüred OTP IP iroda

Érdekel az OTP Bank kedvezményes lakáshitel ajánlata? *

* A kérdésre „Igen” válasz bejelölése esetén, az „Üzenet küldése” gombra kattintva kijelentem, hogy az OTP Bank Nyrt. Adatkezelési tájékoztatójának tartalmát megismertem és tudomásul vettem.

Eladó családi ház leírása

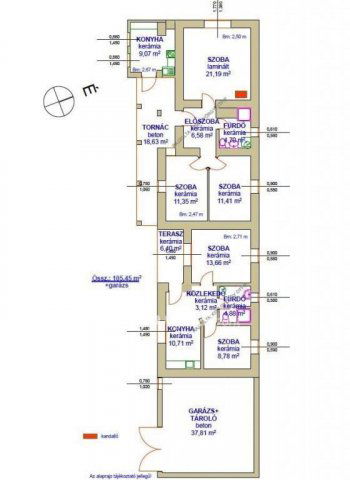
TISZAÖRSÖN ELADÓ EGY 105,45 M2 HASZNOS ALAPTERÜLETŰ, 2+3 SZOBÁS, 2 ÖNÁLLÓ LAKRÉSZES CSALÁDI HÁZ+GARÁZS, TISZAÖRS FÜRDŐTŐL 3,5 KM-RE!!! Az épület falazata nagyrészt vályog, részben tégla, födém saralt fagerendás, tetőn cserépfedés. A lakóház elosztása, szerkezete jó, épület kb. 1960-as évek, felújítva, bővítve kb. 1995-ben.
Udvara körbekerített, rajta: kerti csap, fúrt kút, diófa, szőlő.
A teljes bútorzat és berendezés az ár részét képezi! Fűtés: kályha.
Melegvíz: villanybojler. Közművek: villany, gázcsonk, víz, csatorna nincs a településen. Tiszaörs kifejezetten élhető, rendezett kisközség, Jász-Nagykun-Szolnok vármegye északkeleti részén, a Tisza-tó és a Hortobágy kapujában, a Tisza-tótól 14,5 km-re. A településen az alap infrastrukturális ellátottság megoldott (4 osztályos általános Iskola, óvoda, posta, napköziotthonos idősek otthona, gyógyszertár, orvosi ellátás, élelmiszer boltok, benzinkút stb.), tömegközlekedés helyközi buszjáratokkal. A községben élénk a közösségi élet, az idősek és rászorulók házi ellátása is megoldott. Közeli nagyobb infrastruktúrával rendelkező város: Tiszafüred (11 km), Kunhegyes (24 km), Karcag (25 km), Debrecen, Eger is elérhető közelségben, M3-as autópálya 44 km-re! A községhez tartozik a kiváló gyógyvizű, családias, retró hangulatú Tiszaörs fürdő (3,5 km)!!! A telek területe: 1452 m2. Közelben: faluközpont, 34-es sz. főút. Amennyiben hirdetésem felkeltette érdeklődését, keressen bizalommal bármikor (hétvégén is!), lehetőleg a +36 20 496 68 10 telefonon, ha nem tudom azonnal felvenni, visszahívom, ha a számát kijelzi. További kérdéseire is készséggel válaszolok. A tiszafüredi OTP Ingatlanpont és OTP Pénzügyi Pont teljes körű ügyintézéssel áll az eladók és a vevők rendelkezésére!!! A kínálatunkból választott ingatlan finanszírozásához kedvezményes hitelkonstrukciókat kínálunk! Az adásvételi szerződés megkötéséhez - igény szerint - megbízható ügyvédi közreműködést biztosítunk, és segítséget nyújtunk az adásvételhez kapcsolódó ügyek intézéséhez, hiteligényléshez és CSOK-hoz teljes körűen (igazolások igénylése, nyomtatványok kitöltése, benyújtása, kérelem gondozása stb.). Irányár: 60 000 Euro
Referenciaszám: M302649

Referencia szám: M302649

Hirdetés feltöltve: 2025. 11. 25. Utoljára módosítva: 2026. 01. 13.

Az ingatlan elhelyezkedése

Cím: Tiszaörs

Eladó ingatlanok a környékről

Eladó családi ház
Eladó családi ház

Jászberény, Tőtevény tanya

99.9 M Ft
6 szoba
229 m2
Eladó családi ház
Eladó családi ház

Törökszentmiklós

24.9 M Ft
3 + 1 szoba
112 m2
Eladó családi ház
Eladó családi ház

Szolnok

30 M Ft
2 szoba
70 m2
Eladó családi ház
Eladó családi ház

Tiszaörs

13.5 M Ft
1 + 2 szoba
79 m2
Eladó üzlethelyiség
Eladó üzlethelyiség

Jászszentandrás

8.9 M Ft
10 m²
12 m2
Eladó családi ház
Eladó családi ház

Kunszentmárton

20.99 M Ft
3 + 1 szoba
120 m2
Eladó családi ház
Eladó családi ház

Tiszapüspöki

7.9 M Ft
2 + 1 szoba
80 m2
Eladó családi ház
Eladó családi ház

Újszász

39.7 M Ft
2 + 2 szoba
180 m2
Eladó családi ház
Eladó családi ház

Abádszalók

16 M Ft
4 szoba
110 m2
Eladó családi ház
Eladó családi ház

Jászberény

14.99 M Ft
1 + 2 szoba
75 m2
Eladó családi ház
Eladó családi ház

Jászberény

22.9 M Ft
2 szoba
62 m2
Eladó családi ház
Eladó családi ház

Tiszaörs

8.5 M Ft
2 + 1 szoba
110 m2
Eladó családi ház
Eladó családi ház

Abádszalók

16 M Ft
4 szoba
110 m2
Eladó családi ház
Eladó családi ház

Tiszapüspöki

21 M Ft
2 szoba
76 m2
Eladó családi ház
Eladó családi ház

Szolnok

120 M Ft
3 + 4 szoba
296 m2
Eladó családi ház
Eladó családi ház

Tiszapüspöki

21 M Ft
2 szoba
76 m2
Eladó családi ház
Eladó családi ház

Szászberek

88 M Ft
5 szoba
150 m2
Eladó családi ház
Eladó családi ház

Kunszentmárton

13.9 M Ft
3 szoba
92 m2
Eladó családi ház
Eladó családi ház

Szolnok

69.9 M Ft
1000 m²
220 m2
Eladó családi ház
Eladó családi ház

Szolnok

35.8 M Ft
2 szoba
70 m2
Eladó családi ház
Eladó családi ház

Jászárokszállás

21.5 M Ft
2 szoba
45 m2
Eladó családi ház
Eladó családi ház

Újszász

24.9 M Ft
3 szoba
90 m2
Eladó családi ház
Eladó családi ház

Tiszaörs

11 M Ft
4 + 1 szoba
139 m2
Eladó családi ház
Eladó családi ház

Újszász

37.49 M Ft
3 szoba
89 m2

Falusi CSOK ingatlanok

Eladó családi ház
Eladó családi ház

Gáborján

5.5 M Ft
2 szoba
68 m2
Eladó családi ház
Eladó családi ház

Parád

20 M Ft
3 szoba
90 m2
Eladó családi ház
Eladó családi ház

Szederkény

107.9 M Ft
6 szoba
224 m2
Eladó családi ház
Eladó családi ház

Parád

39 M Ft
3 szoba
86 m2
Eladó családi ház
Eladó családi ház

Vilonya

350 M Ft
3 szoba
850 m2
Eladó családi ház
Eladó családi ház

Segesd

79.9 M Ft
8 szoba
500 m2
Eladó téglalakás
Eladó téglalakás

Nyáregyháza

61.5 M Ft
4 szoba
91 m2
Eladó családi ház
Eladó családi ház

Himesháza

114.9 M Ft
4 szoba
160 m2

Falusi CSOK ingatlanok

Eladó téglalakás
Eladó téglalakás

Balatonszemes

123.3 M Ft
2 szoba
70 m2
Eladó családi ház
Eladó családi ház

Vasboldogasszony

85 M Ft
6 szoba
180 m2
Eladó családi ház
Eladó családi ház

Elek

18 M Ft
4 szoba
180 m2
Eladó családi ház
Eladó családi ház

Darnózseli

79.9 M Ft
4 szoba
104 m2
Eladó családi ház
Eladó családi ház

Tarnaszentmária

22.5 M Ft
3 szoba
100 m2
Eladó családi ház
Eladó családi ház

Balatonszárszó

178 M Ft
6 szoba
260 m2
Eladó családi ház
Eladó családi ház

Lőkösháza

12.5 M Ft
2 szoba
63 m2
Eladó családi ház
Eladó családi ház

Balatonfenyves

430 M Ft
4 szoba
274 m2