Avico Greentop

Eladó családi ház
Tiszafüred

+ 17 kép 1/20
85 000 000 Ft85 M Ft 794 393 Ft/m2
2 + 1 szoba
107 m2
építés éve:1940

Részletes adatok

Állapot: Felújított
Telekméret: 502 m2
Fűtés: Gázkazán
Energetikai besorolás: Nem adta meg a hirdető

Az OTP Bank lakáshitel ajánlataFizetett hirdetés

+36 20 496
Jónás Irén
Tiszafüred OTP IP iroda

Érdekel az OTP Bank kedvezményes lakáshitel ajánlata? *

* A kérdésre „Igen” válasz bejelölése esetén, az „Üzenet küldése” gombra kattintva kijelentem, hogy az OTP Bank Nyrt. Adatkezelési tájékoztatójának tartalmát megismertem és tudomásul vettem.

Eladó családi ház leírása

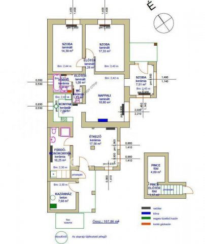
TISZAFÜRED BELVÁROSÁBAN, DE CSENDES KIS UTCÁBAN, KIFEJEZETTEN JÓ KÖRNYÉKEN, ELADÓ EGY KÍVÜL-BELÜL KITŰNŐ ÁLLAPOTÚ, 2023-BAN IGÉNYESEN FELÚJÍTOTT 2+1 SZOBÁS (PLUSZ NAPPALI, ÉTKEZŐ), 2 FÜRDŐSZOBÁS, 107,86 m2 ALAPTERÜLETŰ, DUPLAKOMFORTOS, ÖSSZKÖZMŰVES CSALÁDI HÁZ, A TISZA-TÓI SZABADSTRANDTÓL 2,4 KM-RE!!! A lakóház első része kb. az 1940-es években épült, vegyes (vályog és tégla) falazattal, hátul tégla és Ytong falazattal, homlokzaton nagyrészt hőszigetelés (10 cm)+nemesvakolat, duplaüveges műanyag ablakok (étkezőben duplaüveges fa), műanyag bejárati ajtókkal, födém saralt fagerendás, az Ytong fal fölött fagerendás kb. 20 cm gyapottal, tetőn cserép (Ytong fal fölött fémlemez). A mennyezeten szerelt gipszkarton, mögötte elrejtve a vezetékek. Elvégzett felújítások: vezetékcsere (víz, szennyvíz, villany), nyílászárócsere, burkolatok cseréje (a melegburkolat mindenhol kopásállóságú laminált), falak felújítása kívül-belül, tetőn új léc és új cserépfedés, hátul a fürdőtől új az ácsszerkezet is.
Az ingatlan udvara rendezett, parkosított, körbekerített (elől lemez kerítés, elektromos kapunyitós kapu), jelentős része térkővel burkolt, rajta fúrt kút, bográcsozó, kerti bútor, lemezgarázs, dézsafürdő, finn szauna.
A bútorzat egy része az ár részét képezi (2 háló teljes teljes bútorzata és a konyha is marad, többi egyezség tárgya), illetve mindenképpen a tulajdonos magával viszi a kerti sütögetőt és a lemezgarázst, de a garázs helyett tud adni másikat külön összegért.
Az épület kitűnő adottságú és jó elosztású, kényelmes otthon lehet bármely korosztálynak, lakóépületként, apartmanként, üdülőként egyaránt használható! A ház CSOK PLUSZ-ra is alkalmas, esetleges banki finanszírozás és CSOK Plusz előkészítését díjmentesen vállaljuk!!!
Közelben: belvárosi kereskedelmi-vendéglátó üzletek, szolgáltatások, hivatalok, 33-as sz. főút 820 m, vasútállomás 1,6 km, Tiszta-tó, szabad-strand 2,4 km.
Telekméret: 502 m2.
Fűtés: kombi gázkazán radiátorokkal új lapradiátorokkal, vegyes tüzelésű kazán, hűtő-fűtő klíma.
Melegvíz: kombi gázkazán.
Közművek: víz, villany (3 fázis!), gáz, csatorna, internet és telefon (Telekom).
Tiszafüreden a kerékpár-, horgászturizmus, vadászat, folyamatos beruházások (vannak tervezettek is) amelyek által a szezon már nem csak a nyárra korlátozódik!!! Tiszafüred és Poroszló között 2020-ban készült el a kerékpárút, ezáltal teljesen körbe lehet kerékpározni a Tisza-tavat. A távolsági busz és vonatközlekedés kiváló a településen (pályaudvarok), a város közúti megközelíthetősége szintén, 33-as, 34-es főút, M3-as autópálya 30 km-re (25 perc). Tiszafüred Tisza-tavi kisváros, a Tisza-tó fővárosa, idegenforgalmi és térségi központ a Hortobágy kapujában, igen széleskörű infrastrukturális ellátottsággal: bölcsőde, óvoda, általános iskolák, gimnázium, szakközépiskola, szakmunkásképző, gyógyszertárak, nagy áruházak (TESCO, LIDL, SPAR, Penny), szakorvosi ellátások, fizioterápiás szolgáltatások, benzinkutak (MOL, SHELL, OIL), hivatalok, járási hivatal, okmányiroda, rövidesen megújuló termálstrand, kiváló szabadvizi strand, kerékpáros centrum, kitűnő éttermek, szolgáltatások, közeli nagyobb városok Eger (50 km), Debrecen (67 km), Karcag (40 km), de Budapest is 150 km-re (1,5 óra), szomszédos Poroszlón Ökocentrum.
Amennyiben hirdetésem felkeltette érdeklődését, keressen bizalommal bármikor (hétvégén is!!!), lehetőleg a +36 20 496 68 10 telefonszámon, ha nem tudom azonnal felvenni, visszahívom, ha a számát kijelzi. További kérdéseire is készséggel válaszolok. A tiszafüredi OTP Ingatlanpont és OTP Pénzügyi Pont teljes körű ügyintézéssel áll az eladók és a vevők rendelkezésére!!! A kínálatunkból választott ingatlan finanszírozásához kedvezményes hitelkonstrukciókat kínálunk! Az adásvételi szerződés megkötéséhez - igény szerint - megbízható ügyvédi közreműködést biztosítunk, és segítséget nyújtunk az adásvételhez kapcsolódó ügyek intézéséhez, hiteligényléshez és CSOK Pluszhoz teljes körűen (igazolások igénylése, nyomtatványok kitöltése, benyújtása, kérelem gondozása stb.). A közművek átírását is elvégezzük az eladó és a vevő helyett.
Irányár: 85 millió Ft
Referenciaszám: M306927

Referencia szám: M306927

Hirdetés feltöltve: 2025. 11. 25. Utoljára módosítva: 2026. 01. 25.

3 szobás családi házak ára Tiszafüreden

Ebből az összehasonlításból megtudhatod, hogyan viszonyul a lakás ára a környékbeli családi házak átlagos árához. Ez nem azt jelenti, hogy ennyivel olcsóbb vagy drágább, mint amennyit a lakás ér, hanem hogy ennyivel tér el a környékbeli átlagtól.

Ennek a m² ára
Tiszafüred m² ár
794 e Ft
485 e Ft -64%
Ennek az ára
Tiszafüred átlagár
85 M Ft m Ft
46.6 m Ft -83%

Az ingatlan elhelyezkedése

Cím: Tiszafüred

Eladó családi házak a környékről

Eladó családi ház
Eladó családi ház

Újszász

24.9 M Ft
3 szoba
90 m2
Eladó családi ház
Eladó családi ház

Tiszafüred

29.5 M Ft
3 + 1 szoba
156 m2
Eladó családi ház
Eladó családi ház

Tiszafüred

17.9 M Ft
2 szoba
53 m2
Eladó családi ház
Eladó családi ház

Tiszafüred

95 M Ft
9 szoba
426 m2
Eladó családi ház
Eladó családi ház

Abádszalók

16 M Ft
4 szoba
110 m2
Eladó családi ház
Eladó családi ház

Szolnok

30 M Ft
2 szoba
70 m2
Eladó családi ház
Eladó családi ház

Tiszafüred

165 M Ft
8 szoba
370 m2
Eladó családi ház
Eladó családi ház

Abádszalók

16 M Ft
4 szoba
110 m2
Eladó családi ház
Eladó családi ház

Tiszafüred, Baross utca

34 M Ft
918 m²
305 m2
Eladó családi ház
Eladó családi ház

Cibakháza

2.5 M Ft
2 szoba
75 m2
Eladó családi ház
Eladó családi ház

Tiszafüred

68.9 M Ft
6 szoba
160 m2
Eladó családi ház
Eladó családi ház

Tiszafüred

32 M Ft
3 + 1 szoba
103 m2
Eladó családi ház
Eladó családi ház

Szolnok

20.5 M Ft
2 szoba
78 m2
Eladó családi ház
Eladó családi ház

Jászárokszállás

21.5 M Ft
2 szoba
45 m2
Eladó családi ház
Eladó családi ház

Tiszafüred

75 M Ft
5 szoba
160 m2
Eladó családi ház
Eladó családi ház

Tiszafüred

54 M Ft
4 szoba
121 m2
Eladó családi ház
Eladó családi ház

Tiszafüred

19.5 M Ft
2 szoba
63 m2
Eladó családi ház
Eladó családi ház

Tiszafüred

44 M Ft
5 szoba
163 m2
Eladó családi ház
Eladó családi ház

Szászberek

88 M Ft
5 szoba
150 m2
Eladó családi ház
Eladó családi ház

Tiszafüred

25 M Ft
3 szoba
83 m2
Eladó családi ház
Eladó családi ház

Mezőtúr, Tündér

25 M Ft
1 szoba
85 m2
Eladó családi ház
Eladó családi ház

Tiszafüred

69.9 M Ft
5 szoba
160 m2
Eladó családi ház
Eladó családi ház

Szolnok

35.8 M Ft
2 szoba
70 m2
Eladó családi ház
Eladó családi ház

Tiszafüred

43 M Ft
5 szoba
98 m2

Falusi CSOK ingatlanok

Eladó családi ház
Eladó családi ház

Törtel

59.9 M Ft
3 szoba
66 m2
Eladó téglalakás
Eladó téglalakás

Balatonszemes

110.9 M Ft
2 szoba
60 m2
Eladó családi ház
Eladó családi ház

Sárok, Kossuth Lajos utca

21.9 M Ft
3 szoba
97 m2
Eladó családi ház
Eladó családi ház

Nagytevel

41.9 M Ft
2 + 1 szoba
75 m2
Eladó családi ház
Eladó családi ház

Borszörcsök

13.99 M Ft
3 szoba
178 m2
Eladó családi ház
Eladó családi ház

Szentbékkálla, Szentbékkálla

63.9 M Ft
2 szoba
143 m2
Eladó családi ház
Eladó családi ház

Kaposgyarmat

695 M Ft
6 szoba
610 m2
Eladó családi ház
Eladó családi ház

Porva

74.6 M Ft
3 szoba
115 m2