City Pearl

Eladó családi ház
Tiszafüred

+ 17 kép 1/20
97 000 000 Ft97 M Ft 370 229 Ft/m2
3 + 1 szoba
262 m2
építés éve:1990

Részletes adatok

Telekméret: 467 m2
Fűtés: Gázkazán
Energetikai besorolás: Nem adta meg a hirdető

Az OTP Bank lakáshitel ajánlataFizetett hirdetés

+36 20 496
Jónás Irén
Tiszafüred OTP IP iroda

Érdekel az OTP Bank kedvezményes lakáshitel ajánlata? *

* A kérdésre „Igen” válasz bejelölése esetén, az „Üzenet küldése” gombra kattintva kijelentem, hogy az OTP Bank Nyrt. Adatkezelési tájékoztatójának tartalmát megismertem és tudomásul vettem.

Eladó családi ház leírása

BEFEKTETŐK FIGYELEM!!! A TISZA-TÓ FŐVÁROSÁBAN TISZAFÜREDEN ELADÓ EGY HÁROMSZINTES, DUPLAKOMFORTOS, NAPPALI+ÜZLETTÉR+3+1 SZOBÁS, 3 FÜRDŐSZOBÁS, ~262,5 M2-ES LAKÓ ÉS KERESKEDELMI ÉPÜLET, 4 TERASSZAL, A TISZA-TÓTÓL 800 M-RE!!! Az épület 1990-ben épült, falazata B30-as tégla, födém vasbetongerendás, tetőn cserépfedés. Az ingatlanban hosszú évekig bejáratott élelmiszerüzlet működött, de a földszint és az alagsor úgy lett kialakítva, hogy az vendéglátásra is alkalmas (üzlettér, férfi, női vizesblokk, előkészítő, raktárhelyiség stb.). A ház tetőtere is beépítésre elő van készítve, egylégterű, nagy alapterületű, ablakokkal és tetősíkban hőszigeteléssel, illetve a lépcső odáig fel van vezetve! A ház lakóházként van nyilvántartva.
Az épületben a 3 fürdőszobában összesen 5 WC van kialakítva.
A teljes bútorzat az ár részét képezi, a személyes tárgyak kivételével!!!
Az ingatlan előtt a parkolás ingyenes, de a ház mellett van egy áthajtós (fedett) kocsibeálló is.
Udvara rendezett körbekerített, rajta kerti csap, néhány gyümölcsfa.
Az ingatlan jó környéken és jó környezetben helyezkedik el, frekventált helyen, családi házként, szálláshelyként, apartmanként, üdülőként is használható, de elhelyezkedése miatt leginkább üzleti célra is ajánljuk (kereskedelem, szolgáltatás, vendéglátás, iroda stb.)!
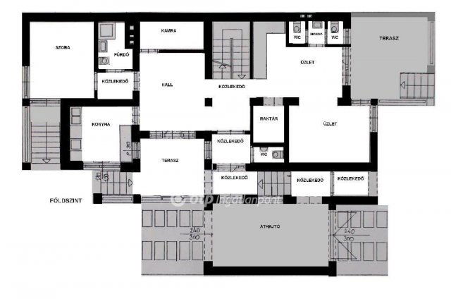
Helyiségek: alaprajz szerint.
Fűtés: álló gázkazán radiátorokkal.
Melegvíz: villanybojler.
Telekterület: 467 m2.
Közművek: víz, villany, gáz, csatorna.
Közelben: 33-as főút 200 m, Tisza-tói szabadstrand 800 m, városközpont 950 m, vasútállomás 1,5 km.
Tiszafüreden a kerékpár-, horgászturizmus, vadászat, folyamatos beruházások (vannak tervezettek is) amelyek által a szezon már nem csak a nyárra korlátozódik!!! Tiszafüred és Poroszló között 2020-ban készült el a kerékpárút, ezáltal teljesen körbe lehet kerékpározni a Tisza-tavat. Tiszafüreden a távolsági busz és vonatközlekedés kiváló (pályaudvarok), a város közúti megközelíthetősége szintén, 33-as, 34-es főút, M3-as autópálya 30 km-re (25 perc). Tiszafüred Tisza-tavi kisváros, a Tisza-tó fővárosa, idegenforgalmi és térségi központ a Hortobágy kapujában, igen széleskörű infrastrukturális ellátottsággal: bölcsőde, óvoda, általános iskolák, gimnázium, szakközépiskola, szakmunkásképző, gyógyszertárak, nagy áruházak (TESCO, LIDL, SPAR, Penny), szakorvosi ellátások, fizioterápiás szolgáltatások, benzinkutak (MOL, SHELL, OIL), hivatalok, járási hivatal, okmányiroda, rövidesen megújuló termálstrand, kiváló szabadvizi strand, kerékpáros centrum, kitűnő éttermek, szolgáltatások, közeli nagyobb városok Eger (50 km), Debrecen (67 km), Karcag (40 km), de Budapest is 150 km-re (1,5 óra), szomszédos Poroszlón Ökocentrum.
Amennyiben hirdetésem felkeltette érdeklődését, keressen bizalommal bármikor (HÉTVÉGÉN IS!), lehetőleg a +36 20 496 68 10 telefonszámon, ha nem tudom azonnal felvenni, visszahívom, ha a számát kijelzi. További kérdéseire készséggel válaszolok! A tiszafüredi OTP Ingatlanpont és OTP Pénzügyi Pont teljes körű ügyintézéssel áll az eladók és a vevők rendelkezésére! A kínálatunkból választott ingatlan finanszírozásához kedvezményes hitel- és lízingkonstrukciókat kínálunk. Az adásvételi szerződés megkötéséhez igény szerint megbízható ügyvédi közreműködést biztosítunk, és segítséget nyújtunk az adásvételhez kapcsolódó ügyek intézéséhez, hiteligényléshez CSOK Pluszhoz (igazolások igénylése, nyomtatványok kitöltése, benyújtása stb.). A közművek átírását is elvégezzük az eladó és a vevő helyett.
Irányár: 97 millió Ft
Referenciaszám: M310199

Referencia szám: M310199

Hirdetés feltöltve: 2025. 11. 25. Utoljára módosítva: 2025. 11. 25.

4 szobás családi házak ára Tiszafüreden

Ebből az összehasonlításból megtudhatod, hogyan viszonyul a lakás ára a környékbeli családi házak átlagos árához. Ez nem azt jelenti, hogy ennyivel olcsóbb vagy drágább, mint amennyit a lakás ér, hanem hogy ennyivel tér el a környékbeli átlagtól.

Ennek a m² ára
Tiszafüred m² ár
370 e Ft
382 e Ft 3%
Ennek az ára
Tiszafüred átlagár
97 M Ft m Ft
50.9 m Ft -91%

Az ingatlan elhelyezkedése

Cím: Tiszafüred

Eladó családi házak a környékről

Eladó családi ház
Eladó családi ház

Tiszafüred

165 M Ft
8 szoba
370 m2
Eladó családi ház
Eladó családi ház

Szászberek

88 M Ft
5 szoba
150 m2
Eladó családi ház
Eladó családi ház

Tiszafüred

8.9 M Ft
2 szoba
35 m2
Eladó családi ház
Eladó családi ház

Tiszafüred

43 M Ft
5 szoba
98 m2
Eladó családi ház
Eladó családi ház

Tiszafüred, Eper utca

95 M Ft
9 szoba
304 m2
Eladó családi ház
Eladó családi ház

Tiszafüred

11.9 M Ft
3 szoba
73 m2
Eladó családi ház
Eladó családi ház

Cibakháza

12.9 M Ft
4 szoba
111 m2
Eladó családi ház
Eladó családi ház

Jászladány, Liszt Ferenc utca

35 M Ft
2 + 2 szoba
120 m2
Eladó családi ház
Eladó családi ház

Újszász

39.7 M Ft
2 + 2 szoba
180 m2
Eladó családi ház
Eladó családi ház

Zagyvarékas

19.5 M Ft
2 + 1 szoba
73 m2
Eladó családi ház
Eladó családi ház

Tiszafüred

17.9 M Ft
2 szoba
53 m2
Eladó családi ház
Eladó családi ház

Tiszafüred

68.9 M Ft
6 szoba
160 m2
Eladó családi ház
Eladó családi ház

Szolnok

120 M Ft
3 + 4 szoba
296 m2
Eladó családi ház
Eladó családi ház

Tiszafüred

37 M Ft
3 szoba
72 m2
Eladó családi ház
Eladó családi ház

Tiszafüred

166 M Ft
3 szoba
87 m2
Eladó családi ház
Eladó családi ház

Tiszafüred

95 M Ft
3 szoba
117 m2
Eladó családi ház
Eladó családi ház

Szászberek

88 M Ft
5 szoba
150 m2
Eladó családi ház
Eladó családi ház

Tiszafüred

29.9 M Ft
3 szoba
200 m2
Eladó családi ház
Eladó családi ház

Cserkeszőlő, Napsugár utca

350 M Ft
4 szoba
440 m2
Eladó családi ház
Eladó családi ház

Tiszafüred

32 M Ft
3 + 1 szoba
103 m2
Eladó családi ház
Eladó családi ház

Szolnok

35.8 M Ft
2 szoba
70 m2
Eladó családi ház
Eladó családi ház

Tiszafüred

69.9 M Ft
4 szoba
130 m2
Eladó családi ház
Eladó családi ház

Tiszakürt

2.6 M Ft
929 m²
80 m2
Eladó családi ház
Eladó családi ház

Tiszafüred, Baross utca

34 M Ft
918 m²
305 m2

Falusi CSOK ingatlanok

Eladó családi ház
Eladó családi ház

Ozora

24.5 M Ft
2 szoba
115 m2
Eladó családi ház
Eladó családi ház

Balatonfenyves

430 M Ft
4 szoba
274 m2
Eladó családi ház
Eladó családi ház

Törtel, Kőrösi út 101

22.21 M Ft
2 szoba
117 m2
Eladó családi ház
Eladó családi ház

Marcaltő

20.9 M Ft
3 + 1 szoba
90 m2
Eladó családi ház
Eladó családi ház

Tápiógyörgye

33 M Ft
3 + 2 szoba
140 m2
Eladó családi ház
Eladó családi ház

Tápiógyörgye

44.9 M Ft
3 szoba
105 m2
Eladó családi ház
Eladó családi ház

Mocsa

24.9 M Ft
2 + 1 szoba
53 m2
Eladó családi ház
Eladó családi ház

Ceglédbercel

49.9 M Ft
4 szoba
120 m2