Aerogate Homes

Eladó családi ház
Táborfalva

Figyelem!

Ez az ingatlan a 2019.07.01-től induló falusi CSOK által támogatott településen található

+ 16 kép 1/19
65 000 000 Ft65 M Ft 541 667 Ft/m2
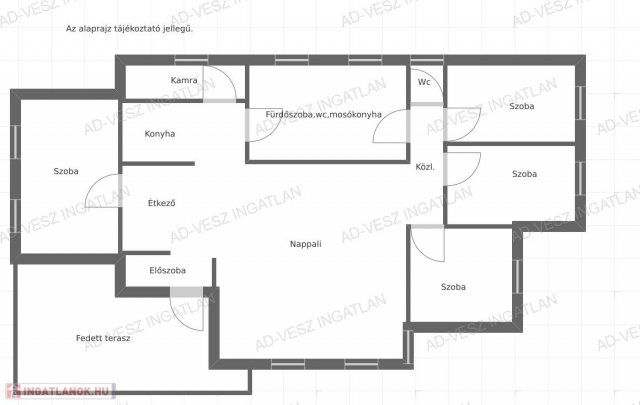
2 + 3 szoba
120 m2
építés éve:2007

Részletes adatok

Állapot: Újszerű
Telekméret: 1041 m2
Fűtés: Gázkazán
Parkolás: Kocsibeálló
Közmű: Víz, Gáz, Villany, Csatorna
Energetikai besorolás: Nem adta meg a hirdető

Az OTP Bank lakáshitel ajánlataFizetett hirdetés

+36 30 221
Bocskainé Gudmon Krisztina
AD-VESZ INGATLAN

Érdekel az OTP Bank kedvezményes lakáshitel ajánlata? *

* A kérdésre „Igen” válasz bejelölése esetén, az „Üzenet küldése” gombra kattintva kijelentem, hogy az OTP Bank Nyrt. Adatkezelési tájékoztatójának tartalmát megismertem és tudomásul vettem.

Eladó családi ház leírása

Táborfalván kínálunk eladásra egy nagyon jó állapotú, önálló, 5 szobás családi házat.

A 120m2-es ingatlan, 1041m2-es összközműves telken helyezkedik el, csendes környéken.

A ház nagysága, és szobaszáma lehetővé teszi akár nagy család részére is a kényelmes együttélést.

Kialakításra került az ingatlanban 4 hálószoba, amerikai konyhás nappali, kamra, előszoba, wc, fürdőszoba, közlekedő, fedett terasz.

A ház részben alápincézett, beton alapra, tégla falazattal ,cserép fedéssel, fa födémmel épült 2007-ben.

Szigetelt, a központi fűtés gáz cirkóról, és vegyes tüzelésű kazánról egyaránt üzemeltethető, de klíma, és kandalló is rendelkezésre áll.

Az összkomfortos, tehermentes ingatlan hitelezhető.

Ha Ön egy kényelmes, tágas, világos, jó állapotú otthont keres csendes környéken, akkor hívjon, megmutatom ezt a remek házat!

Kizárólag irodánk kínálatában megtalálható!

Bocskainé Krisztina

+36-30/221-3336

Hirdetés feltöltve: 2025. 10. 17. Utoljára módosítva: 2025. 11. 02.

Az ingatlan elhelyezkedése

Cím: Táborfalva

Eladó családi házak a környékről

Eladó családi ház
Eladó családi ház

Budakeszi

130 M Ft
5 szoba
30 m2
Eladó családi ház
Eladó családi ház

Tápiószele

32.9 M Ft
4 szoba
200 m2
Eladó családi ház
Eladó családi ház

Kerepes

81.99 M Ft
5 szoba
102 m2
Eladó családi ház
Eladó családi ház

Táborfalva

29.5 M Ft
3 szoba
99 m2
Eladó családi ház
Eladó családi ház

Budakeszi, Budakeszi kertváros

140 M Ft
2 szoba
55 m2
Eladó családi ház
Eladó családi ház

Táborfalva

27.9 M Ft
3 szoba
76 m2
Eladó családi ház
Eladó családi ház

Táborfalva

117 M Ft
5 szoba
145 m2
Eladó családi ház
Eladó családi ház

Budaörs, Bányász utca

385 M Ft
6 szoba
300 m2
Eladó családi ház
Eladó családi ház

Gyál, Gyál út

169.9 M Ft
2 szoba
90 m2
Eladó családi ház
Eladó családi ház

Budakeszi, Makkosmária

100 M Ft
1 szoba
10 m2
Eladó családi ház
Eladó családi ház

Táborfalva

29.5 M Ft
3 szoba
99 m2
Eladó családi ház
Eladó családi ház

Kerepes

199 M Ft
6 szoba
360 m2
Eladó családi ház
Eladó családi ház

Tahitótfalu

188 M Ft
7 szoba
280 m2
Eladó családi ház
Eladó családi ház

Táborfalva

69 M Ft
1 + 3 szoba
85 m2
Eladó családi ház
Eladó családi ház

Táborfalva

36.5 M Ft
2 + 1 szoba
74 m2
Eladó családi ház
Eladó családi ház

Tápiószele

37.9 M Ft
4 szoba
141 m2
Eladó családi ház
Eladó családi ház

Táborfalva

29.5 M Ft
3 szoba
99 m2
Eladó családi ház
Eladó családi ház

Táborfalva

24.9 M Ft
2 + 1 szoba
81 m2
Eladó családi ház
Eladó családi ház

Táborfalva

15 M Ft
0 + 2 szoba
29 m2
Eladó családi ház
Eladó családi ház

Tápiógyörgye

19.9 M Ft
3 szoba
65 m2
Eladó családi ház
Eladó családi ház

Táborfalva

35.99 M Ft
2 szoba
80 m2
Eladó családi ház
Eladó családi ház

Budaörs, Odvshegy utca

268.9 M Ft
5 szoba
235 m2
Eladó családi ház
Eladó családi ház

Táborfalva

117 M Ft
5 szoba
145 m2
Eladó családi ház
Eladó családi ház

Dunavarsány

69.9 M Ft
3 + 1 szoba
140 m2

Falusi CSOK ingatlanok

Eladó családi ház
Eladó családi ház

Mezőfalva

39 M Ft
3 szoba
77 m2
Eladó családi ház
Eladó családi ház

Geresdlak

24.8 M Ft
1 szoba
50 m2
Eladó családi ház
Eladó családi ház

Somogyszil

27.9 M Ft
3 szoba
140 m2
Eladó családi ház
Eladó családi ház

Varbóc

7.9 M Ft
2 szoba
86 m2
Eladó családi ház
Eladó családi ház

Bócsa

68 M Ft
3 szoba
100 m2
Eladó családi ház
Eladó családi ház

Balatonkenese

98 M Ft
5 szoba
138 m2
Eladó ikerház
Eladó ikerház

Bodajk

69.9 M Ft
5 szoba
108 m2
Eladó téglalakás
Eladó téglalakás

Csorvás

10.6 M Ft
2 szoba
67 m2

Falusi CSOK ingatlanok

Eladó családi ház
Eladó családi ház

Egyházaskozár

59 M Ft
4 szoba
162 m2
Eladó ikerház
Eladó ikerház

Bodajk

69.9 M Ft
5 szoba
108 m2
Eladó családi ház
Eladó családi ház

Felsőlajos

100 M Ft
4 szoba
140 m2
Eladó családi ház
Eladó családi ház

Szabadbattyán

30 M Ft
4 szoba
75 m2
Eladó családi ház
Eladó családi ház

Tass

55 M Ft
2 + 1 szoba
65 m2
Eladó családi ház
Eladó családi ház

Hajdúbagos

69.9 M Ft
5 szoba
230 m2
Eladó családi ház
Eladó családi ház

Rábaszentmihály

65 M Ft
3 szoba
156 m2
Eladó családi ház
Eladó családi ház

Orgovány, Mátyás király utca

16 M Ft
2 szoba
60 m2