Eladó családi ház
Szuhakálló

Figyelem!

Ez az ingatlan a 2019.07.01-től induló falusi CSOK által támogatott településen található

+ 17 kép 1/20
65 000 000 Ft65 M Ft 464 286 Ft/m2
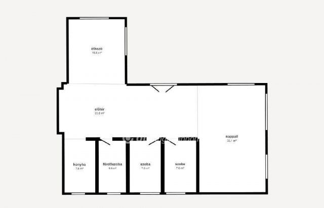
1 + 2 szoba
140 m2
építés éve:2010

Részletes adatok

Telekméret: 2746 m2
Fűtés: Egyéb
Energetikai besorolás: Nem adta meg a hirdető

Az OTP Bank lakáshitel ajánlataFizetett hirdetés

+36 70 201
Kégl Zsolt
OTP Ingatlanpont Miskolc Szemere

Érdekel az OTP Bank kedvezményes lakáshitel ajánlata? *

* A kérdésre „Igen” válasz bejelölése esetén, az „Üzenet küldése” gombra kattintva kijelentem, hogy az OTP Bank Nyrt. Adatkezelési tájékoztatójának tartalmát megismertem és tudomásul vettem.

Eladó családi ház leírása

IGAZI ÉLETFORMA, CSALÁDI BIRTOK, LOVAS UDVAR ÉS TELEPHELY EGYBEN SZUHAKÁLLÓN!
Főbb Jellemzők és Kényelem:
Eladó Szuhakálló csendes, de jól megközelíthető részén egy kivételes adottságokkal rendelkező, 140 nm-es családi ház, mely ideális otthont, hobbit és befektetést is kínál.

Lakótér: A házban 3 tágas szoba mellett egy hatalmas, egybenyitott nappali és étkező kapott helyet, amely méretének köszönhetően tökéletes helyszíne lehet nagyobb családi rendezvényeknek, baráti összejöveteleknek.

Esztétika és Szigetelés: A ház belső falaiban 6 cm belső szigetelés biztosítja a kellemes hőérzetet, míg a helyiségeket írott dísztéglák teszik különlegessé és hangulatossá.

Extrák, amikkel más nem rendelkezik: A ház teljes berendezéssel együtt eladó, így a beköltözés azonnal megoldható!

Lovasudvar és Vállalkozási Lehetőség:
Ez a birtok többet kínál, mint egy átlagos családi ház:

Lovas Istálló: A profin kialakított, 12 férőhelyes boxos lovas istálló miatt ez a hely egy álom a lovak szerelmeseinek vagy akár lovas vállalkozás indítására.

Telephely és Parkolás: A hatalmas udvar nem csupán kert, hanem telephelynek is alkalmas, így ideális választás vállalkozók számára.

Melléképületek: Több funkcionális garázs és melléképület biztosítja a tárolást, szerelést és a kényelmes munkavégzést.

Kikapcsolódás és Természeti Harmónia:
Vízi Élet: A birtokon található egy halastó és egy fúrt kút, amely a gazdaságos öntözést biztosítja.

Vendégvárás: A kerti élményt egy nagy méretű filagória teszi teljessé, ahol nyáron is kényelmesen élvezhető a vendéglátás.

Ne maradjon le erről a páratlan lehetőségről! Ideális választás, ha Ön: lovas, vállalkozó, vagy egyszerűen csak egy nyugodt, de aktív életet kínáló, nagy családi otthont keres.
OTP Banki hátterünknek köszönhetően finanszírozási igényekben (pl. Otthon Start Hitelprogram , Babaváró, Falusi CSOK, CSOK Plusz, Lakáshitel, Személyi kölcsön stb.), illetve biztosítások tekintetében is díjmentesen, soron kívüli ügyintézéssel segítem ügyfeleim!
Hívjon bizalommal, és hivatkozzon az M312228 referenciaszámra.

Hirdetés feltöltve: 2025. 10. 15. Utoljára módosítva: 2025. 10. 15.

Az ingatlan elhelyezkedése

Cím: Szuhakálló

Eladó ingatlanok a környékről

Eladó családi ház
Eladó családi ház

Taktaharkány, Magtár utca

9.9 M Ft
3 szoba
100 m2
Eladó családi ház
Eladó családi ház

Miskolc

69.5 M Ft
4 + 1 szoba
142 m2
Eladó panellakás
Eladó panellakás

Miskolc

57.9 M Ft
2 + 1 szoba
63 m2
Eladó családi ház
Eladó családi ház

Miskolc

18.9 M Ft
3 szoba
61 m2
Eladó családi ház
Eladó családi ház

Tiszalúc, Alkotmány utca

16.9 M Ft
4 szoba
137 m2
Eladó panellakás
Eladó panellakás

Miskolc

33.9 M Ft
2 szoba
55 m2
Eladó családi ház
Eladó családi ház

Putnok

11 M Ft
3 szoba
79 m2
Eladó családi ház
Eladó családi ház

Kisgyőr, Rákóczi

59.9 M Ft
3 szoba
100 m2
Eladó családi ház
Eladó családi ház

Ózd, Ózd falu, 48-as út

39.9 M Ft
3 + 1 szoba
300 m2
Eladó téglalakás
Eladó téglalakás

Miskolc

30.9 M Ft
2 + 1 szoba
55 m2
Eladó családi ház
Eladó családi ház

Szendrő, Váralja utca

15.9 M Ft
2 szoba
65 m2
Eladó családi ház
Eladó családi ház

Szendrő

22 M Ft
4 szoba
110 m2
Eladó ikerház
Eladó ikerház

Miskolc

19.8 M Ft
4 szoba
100 m2
Eladó családi ház
Eladó családi ház

Szikszó

42.5 M Ft
5 + 1 szoba
240 m2
Eladó családi ház
Eladó családi ház

Szuhogy

26.99 M Ft
3 szoba
250 m2
Eladó családi ház
Eladó családi ház

Felsőzsolca

85 M Ft
4 szoba
210 m2
Eladó panellakás
Eladó panellakás

Miskolc

27.49 M Ft
2 szoba
55 m2
Eladó családi ház
Eladó családi ház

Szikszó

36.9 M Ft
3 szoba
88 m2
Eladó családi ház
Eladó családi ház

Ózd

14.7 M Ft
3 szoba
95 m2
Eladó családi ház
Eladó családi ház

Gönc

20.5 M Ft
2 szoba
80 m2
Eladó családi ház
Eladó családi ház

Miskolc

61.9 M Ft
4 szoba
96 m2
Eladó családi ház
Eladó családi ház

Gesztely

24.9 M Ft
3 szoba
104 m2
Eladó panellakás
Eladó panellakás

Miskolc

28.9 M Ft
2 szoba
51 m2
Eladó családi ház
Eladó családi ház

Szuhakálló

11 M Ft
3 szoba
80 m2

Falusi CSOK ingatlanok

Eladó családi ház
Eladó családi ház

Méra, Bercsényi út 4

12.5 M Ft
2 + 2 szoba
76 m2
Eladó családi ház
Eladó családi ház

Mikepércs

59.99 M Ft
4 szoba
81 m2
Eladó családi ház
Eladó családi ház

Szőlősgyörök, Táncsics Mihály utca

47.999 M Ft
5 szoba
105 m2
Eladó családi ház
Eladó családi ház

Szalánta, Hunyadi

41.9 M Ft
3 + 1 szoba
120 m2
Eladó családi ház
Eladó családi ház

Németkér

149.9 M Ft
2 szoba
540 m2
Eladó családi ház
Eladó családi ház

Tüskevár

19.9 M Ft
4 szoba
95 m2
Eladó családi ház
Eladó családi ház

Balatonkeresztúr

117 M Ft
3 + 2 szoba
154 m2
Eladó családi ház
Eladó családi ház

Kaszaper

14.5 M Ft
3 szoba
63 m2

Falusi CSOK ingatlanok

Eladó családi ház
Eladó családi ház

Szentkirályszabadja

119.9 M Ft
6 szoba
185 m2
Eladó családi ház
Eladó családi ház

Csót

12.9 M Ft
3 szoba
104 m2
Eladó családi ház
Eladó családi ház

Újszilvás

34.9 M Ft
3 szoba
66 m2
Eladó családi ház
Eladó családi ház

Tés

34.9 M Ft
2 szoba
60 m2
Eladó családi ház
Eladó családi ház

Madaras

16 M Ft
3 szoba
105 m2
Eladó családi ház
Eladó családi ház

Balatonfenyves

430 M Ft
4 szoba
274 m2
Eladó családi ház
Eladó családi ház

Őr, Dózsa György utca 17

1.6 M Ft
1 + 1 szoba
87 m2
Eladó családi ház
Eladó családi ház

Gáborjánháza

23 M Ft
2 szoba
117 m2