River Life

Eladó családi ház
Szőlősardó

Figyelem!

Ez az ingatlan a 2019.07.01-től induló falusi CSOK által támogatott településen található

+ 17 kép 1/20
13 500 000 Ft13.5 M Ft 119 469 Ft/m2
3 szoba
113 m2
építés éve:1960

Részletes adatok

Állapot: Felújítandó
Telekméret: 1585 m2
Fűtés: Egyéb
Energetikai besorolás: Nem adta meg a hirdető

Az OTP Bank lakáshitel ajánlataFizetett hirdetés

+36 30 590
Drótos Bence
OTP Ingatlanpont Miskolc Szemere

Érdekel az OTP Bank kedvezményes lakáshitel ajánlata? *

* A kérdésre „Igen” válasz bejelölése esetén, az „Üzenet küldése” gombra kattintva kijelentem, hogy az OTP Bank Nyrt. Adatkezelési tájékoztatójának tartalmát megismertem és tudomásul vettem.

Eladó családi ház leírása

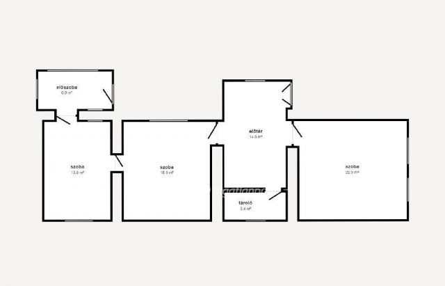
Eladó SZŐLŐSARDÓ frekventált helyén egy nettó 91 nm-es 2+1 félszobás, kő és tégla építésű, jó állapotú földszintes, közműves családiház.

Az 1960-as években kő alapra és téglából épült ingatlan egy 1585 nm-es telken helyezkedik el. Az ingatlanban 2 teljes értékű szoba egy, félszoba, konyha + étkező + előtér, valamint egy fürdőszoba és spájz került kialakításra. A terek tágasak és napfényesek, a nyílászárók dupla ablakos eredeti fa nyílászárók.

Az ingatlanban a vezetékes víz és szennyvíz bekötésre került, a gáz telken belül található. A ház melegét kályhák biztosítják.
A több, mint 1500 nm-es telek mérete miatt lehetséges családi gazdálkodást is működtetni. A telken melléképület, garázs, fatáróló, műhely, valamint állattartásra alkalmas kennelek is találhatók. A természet szerelmeseinek kiváló választás, hogy megismerjék a térség természeti és kulturális értékeit. Kifejezetten alkalmas lehet az ingatlan akár vendégház üzemeltetésére is. A kert locsolása kútból biztosított.

Elhelyezkedéséből adódóan iskola, óvoda, posta, bolt, templom, és egyéb szolgáltatók 5-10 percen belül elérhetők. Az ingatlan per és tehermentes. Banki hátterünknek köszönhetően kedvezményes hitel, CSOK, Falusi CSOK, babaváró ügyintézésben is tudunk segíteni ügyfeleinknek. Érdeklődés esetén kérem hivatkozzon az M295225-ös referenciaszámra.

Hirdetés feltöltve: 2025. 12. 26. Utoljára módosítva: 2026. 01. 13.

Az ingatlan elhelyezkedése

Cím: Szőlősardó

Eladó ingatlanok a környékről

Eladó garázs
Eladó garázs

Edelény

5 M Ft
16 m2
Eladó családi ház
Eladó családi ház

Edelény

45 M Ft
2 szoba
120 m2
Eladó családi ház
Eladó családi ház

Miskolc

149 M Ft
4 szoba
463 m2
Eladó panellakás
Eladó panellakás

Miskolc, Győri kapu, Győri kapu

22.99 M Ft
1 + 1 szoba
35 m2
Eladó családi ház
Eladó családi ház

Szin

14.9 M Ft
2 szoba
75 m2
Eladó családi ház
Eladó családi ház

Miskolc

25.9 M Ft
4 szoba
148 m2
Eladó családi ház
Eladó családi ház

Sajószöged

34.9 M Ft
2 szoba
65 m2
Eladó családi ház
Eladó családi ház

Tiszalúc, Alkotmány utca

16.9 M Ft
4 szoba
137 m2
Eladó családi ház
Eladó családi ház

Ózd

13 M Ft
5 szoba
150 m2
Eladó családi ház
Eladó családi ház

Miskolc, Vargahegy, Margaréta utca

14.5 M Ft
1 szoba
42 m2
Eladó családi ház
Eladó családi ház

Szendrő

19.9 M Ft
4 szoba
150 m2
Eladó családi ház
Eladó családi ház

Miskolc

109.9 M Ft
4 szoba
119 m2
Eladó családi ház
Eladó családi ház

Ózd

15 M Ft
7 szoba
225 m2
Eladó hotel
Eladó hotel

Sajószöged

129 M Ft
7 + 1 szoba
420 m2
Eladó telek
Eladó telek

Miskolc

89.9 M Ft
3 + 1 szoba
150 m2
Eladó családi ház
Eladó családi ház

Edelény

31.5 M Ft
2 szoba
75 m2
Eladó téglalakás
Eladó téglalakás

Miskolc

63 M Ft
2 szoba
63 m2
Eladó téglalakás
Eladó téglalakás

Miskolc

31.5 M Ft
2 szoba
51 m2
Eladó panellakás
Eladó panellakás

Miskolc, Belváros, Mátyás Király utca

41.2 M Ft
3 szoba
64 m2
Eladó családi ház
Eladó családi ház

Onga

63 M Ft
4 szoba
90 m2
Eladó családi ház
Eladó családi ház

Putnok

11 M Ft
3 szoba
79 m2
Eladó telek
Eladó telek

Bükkszentkereszt

4.6 M Ft
1001 m²
Eladó családi ház
Eladó családi ház

Szikszó

89.9 M Ft
3 szoba
100 m2
Eladó családi ház
Eladó családi ház

Miskolc

89.9 M Ft
8 + 1 szoba
300 m2

Falusi CSOK ingatlanok

Eladó családi ház
Eladó családi ház

Parád

25 M Ft
2 szoba
80 m2
Eladó családi ház
Eladó családi ház

Villány

45 M Ft
4 szoba
124 m2
Eladó téglalakás
Eladó téglalakás

Nagyharsány

22.5 M Ft
3 szoba
71 m2
Eladó családi ház
Eladó családi ház

Recsk

35 M Ft
5 szoba
140 m2
Eladó családi ház
Eladó családi ház

Parád

20 M Ft
3 szoba
90 m2
Eladó családi ház
Eladó családi ház

Törtel

34.9 M Ft
3 szoba
66 m2
Eladó családi ház
Eladó családi ház

Nemesbőd

87 M Ft
5 szoba
120 m2
Eladó családi ház
Eladó családi ház

Újhartyán, Gödör utca

81.99 M Ft
3 szoba
110 m2

Falusi CSOK ingatlanok

Eladó családi ház
Eladó családi ház

Recsk

35 M Ft
5 szoba
140 m2
Eladó családi ház
Eladó családi ház

Kaposgyarmat

695 M Ft
6 szoba
610 m2
Eladó családi ház
Eladó családi ház

Hajós

49.5 M Ft
6 szoba
394 m2
Eladó családi ház
Eladó családi ház

Recsk

22 M Ft
2 szoba
80 m2
Eladó családi ház
Eladó családi ház

Szigetcsép, Szabadság utca

62 M Ft
4 szoba
120 m2
Eladó családi ház
Eladó családi ház

Pécsvárad

79.9 M Ft
4 szoba
100 m2
Eladó családi ház
Eladó családi ház

Darnózseli

79.9 M Ft
4 szoba
104 m2
Eladó családi ház
Eladó családi ház

Nemesbőd

87 M Ft
5 szoba
120 m2