Oasis Residence

Eladó családi ház
Szolnok

+ 6 kép 1/9
60 500 000 Ft60.5 M Ft 636 842 Ft/m2
95 m2

Részletes adatok

Állapot: Felújított
Telekméret: 350 m2
Fűtés: Elektromos
Parkolás: Kocsibeálló
Közmű: Víz, Gáz, Villany, Csatorna
Energetikai besorolás: Nem adta meg a hirdető

Az OTP Bank lakáshitel ajánlataFizetett hirdetés

+36 70 384
Barta Attila
Árkádia Ingatlaniroda

Érdekel az OTP Bank kedvezményes lakáshitel ajánlata? *

* A kérdésre „Igen” válasz bejelölése esetén, az „Üzenet küldése” gombra kattintva kijelentem, hogy az OTP Bank Nyrt. Adatkezelési tájékoztatójának tartalmát megismertem és tudomásul vettem.

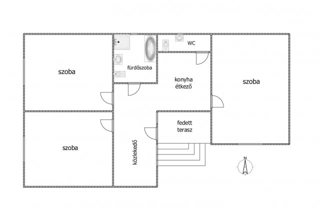
Eladó családi ház leírása

Eladó Jászladányban egy 110 m2-es, 3 szobás családi ház.
Az ingatlan teljes körűen felújított, tágas terek, jó elosztás jellemzi.
Helyiségei:
-Tágas konyha
-L alakú tágas nappali
-3 külön bejáratú szobák
-2 fürdőszoba
Tároló helyiség.
Az udvarba kilépve terasz van kialakítva valamint melléképület és garázs.

A felújítás alatt:
-Villany,-víz,-gáz vezetékek teljes cserélve lettek
-Két modern fürdőszoba van, egy tusolós és egy tágasabb sarokádas
-A burkolatok nagy méretű járólap a konyhában, nappaliban, fürdőszobákban,
-szobákban laminált padló
-nyílászárók fehér műanyag, redőnnyel és szúnyoghálóval.
Fűtése gázkazán és hűtő fűtő klíma.

Az ingatlan tökéletes aki nyugodtabb környezetet szereti és nagy család számára kiváló!
A központ 10 perc sétára van ahol minden szolgáltatás és különböző vásárlási lehetőségek vannak.
Irodánk díjmentes hitel ügyintézést tud biztosítani az ügyfelek számára!
Amennyiben felkeltette érdeklődését, kérem hívjon bizalommal!

Hirdetés feltöltve: 2025. 12. 16. Utoljára módosítva: 2025. 12. 28.

0 szobás családi házak ára Szolnokon

Ebből az összehasonlításból megtudhatod, hogyan viszonyul a lakás ára a környékbeli családi házak átlagos árához. Ez nem azt jelenti, hogy ennyivel olcsóbb vagy drágább, mint amennyit a lakás ér, hanem hogy ennyivel tér el a környékbeli átlagtól.

Ennek a m² ára
Szolnok m² ár
637 e Ft
558 e Ft -14%
Ennek az ára
Szolnok átlagár
60.5 M Ft m Ft
66.4 m Ft 9%

Az ingatlan elhelyezkedése

Cím: Szolnok

Eladó családi házak a környékről

Eladó családi ház
Eladó családi ház

Abádszalók

16 M Ft
4 szoba
110 m2
Eladó családi ház
Eladó családi ház

Jászberény, Tőtevény tanya

99.9 M Ft
6 szoba
229 m2
Eladó családi ház
Eladó családi ház

Jászjákóhalma

17.5 M Ft
3 szoba
78 m2
Eladó családi ház
Eladó családi ház

Szolnok

20.5 M Ft
2 szoba
78 m2
Eladó családi ház
Eladó családi ház

Újszász

39.7 M Ft
2 + 2 szoba
180 m2
Eladó családi ház
Eladó családi ház

Szolnok

130 M Ft
5 szoba
169 m2
Eladó családi ház
Eladó családi ház

Szolnok

35.8 M Ft
2 szoba
70 m2
Eladó családi ház
Eladó családi ház

Jászberény

39.9 M Ft
5 szoba
160 m2
Eladó családi ház
Eladó családi ház

Szolnok

50 M Ft
2 + 2 szoba
96 m2
Eladó családi ház
Eladó családi ház

Kunszentmárton

15.7 M Ft
3 szoba
84 m2
Eladó családi ház
Eladó családi ház

Szolnok

88 M Ft
3 szoba
178 m2
Eladó családi ház
Eladó családi ház

Szolnok

20 M Ft
1 + 2 szoba
62 m2
Eladó családi ház
Eladó családi ház

Szolnok

49.9 M Ft
450 m²
100 m2
Eladó családi ház
Eladó családi ház

Kunszentmárton

13.9 M Ft
3 szoba
92 m2
Eladó családi ház
Eladó családi ház

Szolnok

20 M Ft
1 + 2 szoba
62 m2
Eladó családi ház
Eladó családi ház

Szolnok

28.9 M Ft
2 szoba
57 m2
Eladó családi ház
Eladó családi ház

Szolnok

88 M Ft
3 szoba
178 m2
Eladó családi ház
Eladó családi ház

Szolnok

44 M Ft
2 + 1 szoba
97 m2
Eladó családi ház
Eladó családi ház

Jászladány, Liszt Ferenc utca

35 M Ft
2 + 2 szoba
120 m2
Eladó családi ház
Eladó családi ház

Mezőtúr, Tündér

25 M Ft
1 szoba
85 m2
Eladó családi ház
Eladó családi ház

Szolnok

120 M Ft
3 + 4 szoba
296 m2
Eladó családi ház
Eladó családi ház

Szolnok

69.9 M Ft
1000 m²
220 m2
Eladó családi ház
Eladó családi ház

Szolnok

30.9 M Ft
2 szoba
79 m2
Eladó családi ház
Eladó családi ház

Szolnok

35.8 M Ft
2 szoba
70 m2

Falusi CSOK ingatlanok

Eladó családi ház
Eladó családi ház

Palkonya

137 M Ft
6 szoba
160 m2
Eladó családi ház
Eladó családi ház

Kenyeri

21.8 M Ft
2 szoba
75 m2
Eladó családi ház
Eladó családi ház

Hosszúpereszteg

27.9 M Ft
4 szoba
121 m2
Eladó családi ház
Eladó családi ház

Somogymeggyes

14 M Ft
3 szoba
86 m2
Eladó családi ház
Eladó családi ház

Mezőlak, Arany János utca

35.7 M Ft
3 szoba
104 m2
Eladó családi ház
Eladó családi ház

Iváncsa

34.5 M Ft
2 + 1 szoba
72 m2
Eladó családi ház
Eladó családi ház

Letenye

49.9 M Ft
7 szoba
220 m2
Eladó panellakás
Eladó panellakás

Pétfürdő

49.9 M Ft
3 szoba
71 m2