NapForrás 20 - Buda

Eladó családi ház
Szolnok

95 500 000 Ft95.5 M Ft 776 423 Ft/m2
3 szoba
123 m2

Részletes adatok

Telekméret: 714 m2
Fűtés: Egyéb
Közmű: Víz, Gáz, Villany
Energetikai besorolás: Nem adta meg a hirdető

Az OTP Bank lakáshitel ajánlataFizetett hirdetés

+36 30 587
Sokvári Vivien
Árkádia Ingatlaniroda

Érdekel az OTP Bank kedvezményes lakáshitel ajánlata? *

* A kérdésre „Igen” válasz bejelölése esetén, az „Üzenet küldése” gombra kattintva kijelentem, hogy az OTP Bank Nyrt. Adatkezelési tájékoztatójának tartalmát megismertem és tudomásul vettem.

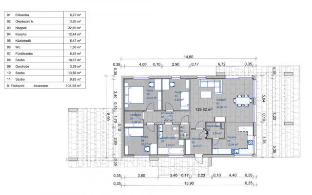
Eladó családi ház leírása

Új építésű, önálló kerámia családi ház Szandaszőlősön

MIÉRT KERÁMIAHÁZAK? ….. MERT ESZTÉTIKUSAK?

IGEN AZOK IS, DE NEM EZ A LEGFŐBB SZEMPONT!

TELJESÍTJÜK A 25%.-BAN MEGÚJULÓ ENERGIA IGÉNYT!
H-TARIFÁS FŰTÉSI-HŰTÉSI ÉS MELEGVÍZ ELÖÁLLITÁSI RENDSZERREL HASZNÁLHATÓ!

ELSŐOSZTÁLYÚ – EGÉSZSÉGES – ENERGIATAKARÉKOS

AZ ÉPÍTKEZÉSRE FORDÍTOTT IDŐ RÖVIDEBB.

Új építésű önálló családi ház ( 80,1 millió Ft + 15 millió Ft telek ),tervezési szinten, különböző méretben, garázzsal, vagy anélkül eladó.

A 714 m2-es önálló telken. Közművek az aszfaltos úton a telek előtt.

A típusházaink ára a tervezés költségét tartalmazzák, amennyiben változtatás nélkül kérik a megrendelőink. Műszaki tartalmat érintő, illetve egyéb módosítást igénylő kérdésekkel kérjük, hogy lépjenek velünk kapcsolatba.

A környék csendes, jól frekventált, pár percre a központ (buszmegálló, bolt, posta, általános iskola, óvoda, bölcsöde...).

https://www.perfektotthonok.hu/muszaki-tartalom-keramiahaz/

Igyekszünk minden igényt kielégíteni, az energiatakarékos üzemeltetés és a
megújuló energia felhasználása központi fontosságú számunkra.

Ez egy ÖKO ház.
Anyaga könnyű beton kerámia kompozit. Kész ház. DE NEM KÖNNYŰSZERKEZETES!

Csak HIPOALLERGÉN, természetes anyagokat használnak.

Semmilyen káros anyag kibocsátása nincs, megújuló energiát használ,
gyakorlatilag a megrendeléstől számított 6-7 hónapon belül költözhető.

Hirdetés feltöltve: 2025. 11. 07. Utoljára módosítva: 2026. 01. 13.

3 szobás családi házak ára Szolnokon

Ebből az összehasonlításból megtudhatod, hogyan viszonyul a lakás ára a környékbeli családi házak átlagos árához. Ez nem azt jelenti, hogy ennyivel olcsóbb vagy drágább, mint amennyit a lakás ér, hanem hogy ennyivel tér el a környékbeli átlagtól.

Ennek a m² ára
Szolnok m² ár
776 e Ft
574 e Ft -35%
Ennek az ára
Szolnok átlagár
95.5 M Ft m Ft
53.1 m Ft -80%

Az ingatlan elhelyezkedése

Cím: Szolnok

Eladó családi házak a környékről

Eladó családi ház
Eladó családi ház

Cibakháza

12.9 M Ft
4 szoba
111 m2
Eladó családi ház
Eladó családi ház

Jászjákóhalma

17.5 M Ft
3 szoba
78 m2
Eladó családi ház
Eladó családi ház

Szolnok

35.8 M Ft
2 szoba
70 m2
Eladó családi ház
Eladó családi ház

Abádszalók

16 M Ft
4 szoba
110 m2
Eladó családi ház
Eladó családi ház

Jászárokszállás

21.5 M Ft
2 szoba
45 m2
Eladó családi ház
Eladó családi ház

Cibakháza

2.5 M Ft
2 szoba
75 m2
Eladó családi ház
Eladó családi ház

Szolnok

20 M Ft
1 + 2 szoba
62 m2
Eladó családi ház
Eladó családi ház

Abádszalók

16 M Ft
4 szoba
110 m2
Eladó családi ház
Eladó családi ház

Szolnok

20.5 M Ft
2 szoba
78 m2
Eladó családi ház
Eladó családi ház

Szolnok

20 M Ft
1 + 2 szoba
62 m2
Eladó családi ház
Eladó családi ház

Szolnok

120 M Ft
3 + 4 szoba
296 m2
Eladó családi ház
Eladó családi ház

Újszász

39.7 M Ft
2 + 2 szoba
180 m2
Eladó családi ház
Eladó családi ház

Szolnok

25 M Ft
2 szoba
73 m2
Eladó családi ház
Eladó családi ház

Szolnok

88 M Ft
3 szoba
178 m2
Eladó családi ház
Eladó családi ház

Szolnok

35.8 M Ft
2 szoba
70 m2
Eladó családi ház
Eladó családi ház

Szolnok

169 M Ft
2 + 2 szoba
194 m2
Eladó családi ház
Eladó családi ház

Szolnok

34 M Ft
6462 m²
69 m2
Eladó családi ház
Eladó családi ház

Újszász

24.9 M Ft
3 szoba
90 m2
Eladó családi ház
Eladó családi ház

Szolnok

44 M Ft
2 + 1 szoba
97 m2
Eladó családi ház
Eladó családi ház

Jászberény

75 M Ft
3 szoba
168 m2
Eladó családi ház
Eladó családi ház

Szolnok, Ferencváros, Batthyány utca

165 M Ft
5 szoba
250 m2
Eladó családi ház
Eladó családi ház

Jászladány, Liszt Ferenc utca

35 M Ft
2 + 2 szoba
120 m2
Eladó családi ház
Eladó családi ház

Jászberény, Tőtevény tanya

99.9 M Ft
6 szoba
229 m2
Eladó családi ház
Eladó családi ház

Szolnok

99.9 M Ft
2 + 1 szoba
121 m2

Falusi CSOK ingatlanok

Eladó családi ház
Eladó családi ház

Iváncsa

34.5 M Ft
2 + 1 szoba
72 m2
Eladó családi ház
Eladó családi ház

Somogyhárságy

111.65 M Ft
4 szoba
330 m2
Eladó családi ház
Eladó családi ház

Ádánd

53.5 M Ft
6 szoba
180 m2
Eladó családi ház
Eladó családi ház

Tabajd

79 M Ft
4 szoba
82 m2
Eladó családi ház
Eladó családi ház

Somogygeszti

10.9 M Ft
2 szoba
115 m2
Eladó családi ház
Eladó családi ház

Szabadbattyán

136 M Ft
5 szoba
226 m2
Eladó téglalakás
Eladó téglalakás

Fertőszentmiklós

52.2 M Ft
3 szoba
89 m2
Eladó családi ház
Eladó családi ház

Pánd

31.5 M Ft
4 szoba
74 m2