Avico Greentop

Eladó családi ház
Szokolya, TÖRÖK PATAK utca

+ 17 kép 1/20
225 000 000 Ft225 M Ft 925 926 Ft/m2
4 szoba
243 m2
építés éve:2000

Részletes adatok

Állapot: Újszerű
Telekméret: 792 m2
Fűtés: Egyéb
Parkolás: Kocsibeálló
Közmű: Víz, Gáz, Villany
Energetikai besorolás: Nem adta meg a hirdető

Az OTP Bank lakáshitel ajánlataFizetett hirdetés

+36 30 820
Vajda Lívia
Balla Ingatlan - Vác és környéke

Érdekel az OTP Bank kedvezményes lakáshitel ajánlata? *

* A kérdésre „Igen” válasz bejelölése esetén, az „Üzenet küldése” gombra kattintva kijelentem, hogy az OTP Bank Nyrt. Adatkezelési tájékoztatójának tartalmát megismertem és tudomásul vettem.

Eladó családi ház leírása

Eladó különleges családi ház a Börzsöny kapujában – Szokolya és Kismaros határán
A Börzsöny egyik legszebb részén, Szokolya és Kismaros találkozásánál kínáljuk megvételre ezt a kivételes adottságokkal rendelkező, 243 m²-es lakóterű ingatlant. A ház közvetlen természeti ölelésben található: előtte patak csordogál, mögötte az erdő kezdődik, így a nyugalom, a jó levegő és a természet közelsége mindennapos élménnyé válik.
A környék rendkívül biztonságos, állandó lakókkal és összetartó, jó lakóközösséggel. Ideális választás mind családi állandó otthonnak, mind pihenőháznak vagy akár prémium szintű vendégháznak.
Főbb jellemzők:
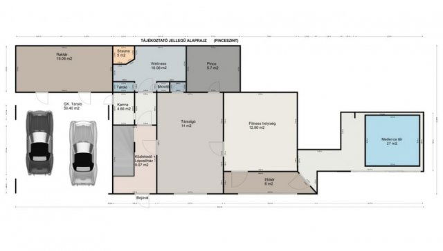
Lakótér (243 m²):
– Tágas, amerikai konyhás nappali
– 3 különálló hálószoba
– 3 fürdőszoba
– Wellnessrészleg belső medencével és szaunával
– Külön társalgó
– Raktárhelyiség
-Borospince
A ház komfortja és műszaki felszereltsége:
– 2 cserépkályha
– 2 körös cirkófűtés (padlófűtés + radiátoros rendszer)
– Légkondicionálók
– Napelemrendszer a kedvező üzemeltetésért
Telek és külső adottságok:
– 792 m²-es teraszos kialakítású, ősfás telek
– Tágas teraszok több ponton
– Kialakított sütögető rész
– Közvetlen erdőkapcsolat, patakparti elhelyezkedés
A ház különleges atmoszférája, elhelyezkedése és mérete ritka kombinációt kínál: egyszerre biztosít teljes privát szférát és kényelmet, mégis elérhető közelségben marad a városi infrastruktúra és a tömegközlekedés is

Hirdetés feltöltve: 2025. 12. 11. Utoljára módosítva: 2025. 12. 11.

Az ingatlan elhelyezkedése

Cím: Szokolya, TÖRÖK PATAK utca

Eladó ingatlanok a környékről

Eladó családi ház
Eladó családi ház

Szokolya

63 M Ft
3 szoba
100 m2
Eladó családi ház
Eladó családi ház

Kerepes

199 M Ft
6 szoba
360 m2
Eladó családi ház
Eladó családi ház

Érd

164.9 M Ft
5 szoba
192 m2
Eladó családi ház
Eladó családi ház

Budaörs, Városközpont utca

119.5 M Ft
5 + 1 szoba
140 m2
Eladó téglalakás
Eladó téglalakás

Szentendre, Nyár utca

128.9 M Ft
6 szoba
135 m2
Eladó családi ház
Eladó családi ház

Sződ, Rátóti utca

149.99 M Ft
11 szoba
270 m2
Eladó családi ház
Eladó családi ház

Tápiószele

37.9 M Ft
4 szoba
141 m2
Eladó családi ház
Eladó családi ház

Csörög

97.5 M Ft
1 + 3 szoba
110 m2
Eladó családi ház
Eladó családi ház

Dunavarsány

69.9 M Ft
3 + 1 szoba
140 m2
Eladó családi ház
Eladó családi ház

Szokolya, Ady Endre utca

169 M Ft
1 szoba
360 m2
Eladó családi ház
Eladó családi ház

Szigetszentmiklós, Műúthoz közeli utca

177 M Ft
1 + 4 szoba
219 m2
Eladó családi ház
Eladó családi ház

Érd, Martinovics utca

89 M Ft
7 szoba
210 m2
Eladó családi ház
Eladó családi ház

Budakeszi, Budakeszi kertváros

229 M Ft
10 szoba
450 m2
Eladó családi ház
Eladó családi ház

Gyál, Gyál út

169.9 M Ft
2 szoba
90 m2
Eladó családi ház
Eladó családi ház

Szokolya

99 M Ft
4 szoba
400 m2
Eladó családi ház
Eladó családi ház

Tápiószentmárton

7.9 M Ft
2 + 1 szoba
86 m2
Eladó családi ház
Eladó családi ház

Budaörs, Bányász utca

385 M Ft
6 szoba
300 m2
Eladó családi ház
Eladó családi ház

Szokolya

169 M Ft
5 szoba
360 m2
Eladó családi ház
Eladó családi ház

Kerepes

81.99 M Ft
5 szoba
102 m2
Eladó családi ház
Eladó családi ház

Budaörs, Odvshegy utca

268.9 M Ft
5 szoba
235 m2
Eladó téglalakás
Eladó téglalakás

Budaörs

329.9 M Ft
4 + 1 szoba
154 m2
Eladó családi ház
Eladó családi ház

Leányfalu

237 M Ft
9 szoba
800 m2
Eladó családi ház
Eladó családi ház

Vecsés, Vecsés - Andrássy telep

94.5 M Ft
3 szoba
68 m2
Eladó családi ház
Eladó családi ház

Budakeszi

130 M Ft
5 szoba
30 m2

Falusi CSOK ingatlanok

Eladó családi ház
Eladó családi ház

Görcsöny

98 M Ft
4 szoba
134 m2
Eladó családi ház
Eladó családi ház

Újszilvás

39.5 M Ft
3 szoba
62 m2
Eladó családi ház
Eladó családi ház

Törtel

13.5 M Ft
5 szoba
74 m2
Eladó családi ház
Eladó családi ház

Zalalövő

34.99 M Ft
3 szoba
110 m2
Eladó családi ház
Eladó családi ház

Pétfürdő

74.9 M Ft
3 szoba
89 m2
Eladó téglalakás
Eladó téglalakás

Balatonszemes

119.9 M Ft
2 szoba
81 m2
Eladó családi ház
Eladó családi ház

Hobol

55 M Ft
4 szoba
125 m2
Eladó családi ház
Eladó családi ház

Orci

59.9 M Ft
3 szoba
101 m2