City Pearl

Eladó családi ház
Szikszó

+ 17 kép 1/20
22 000 000 Ft22 M Ft 366 667 Ft/m2
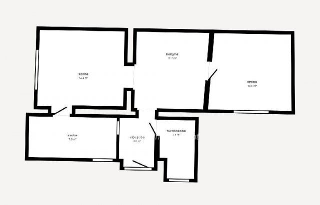
2 + 1 szoba
60 m2
építés éve:1970

Részletes adatok

Állapot: Átlagos
Telekméret: 200 m2
Fűtés: Gázkonvektor
Energetikai besorolás: Nem adta meg a hirdető

Az OTP Bank lakáshitel ajánlataFizetett hirdetés

+36 70 322
Piskóti Tibor Lajos
OTP Ingatlanpont Miskolc Szemere

Érdekel az OTP Bank kedvezményes lakáshitel ajánlata? *

* A kérdésre „Igen” válasz bejelölése esetén, az „Üzenet küldése” gombra kattintva kijelentem, hogy az OTP Bank Nyrt. Adatkezelési tájékoztatójának tartalmát megismertem és tudomásul vettem.

Eladó családi ház leírása

Eladó: Kiemelkedően Alacsony Rezsijű, Gondozott Családi Ház Szikszón Garázzsal!

Ne keressen tovább, ha egy azonnal költözhető, pénztárcabarát és műszakilag rendben tartott otthont keres! Ez a 60 nm-es családi ház Szikszó csendes részén fekszik, egy könnyen kezelhető, 200 nm-es telken, ami minimális kerti munkát igényel, így több idő marad a pihenésre. Az otthonban az amerikai konyhás nappali mellett három különálló szoba található, így ideális választás lehet kisebb családoknak, vagy azoknak, akik dolgozószobát, esetleg vendégszobát alakítanának ki.
Az ingatlan legfőbb értéke a rezsiköltség: a tulajdonos gondoskodott a teljes korszerűsítésről, amelynek köszönhetően a fenntartás valóban alacsony. A ház mindenhol hőszigetelt falakkal és szigetelt tetővel rendelkezik, a teljes épületen modern műanyag nyílászárókat építettek be, melyek tökéletesen zárnak. A fűtésről gázkonvektorok gondoskodnak, a meleg vizet pedig egy teljesen új, energiatakarékos villanybojler biztosítja.
Szerkezetileg tökéletes állapotú, folyamatosan karbantartott otthonról van szó, ami azt jelenti, hogy Önnek csak be kell költöznie a nagy, költséges felújításoktól megkímélheti magát.
A kényelmet tovább növeli a házhoz tartozó garázs, amely biztonságos tárolást vagy parkolást tesz lehetővé. Egy édes, praktikus otthon, ahol az első naptól élvezheti a takarékos és gondtalan életet.
OTP Banki hátterünknek köszönhetően finanszírozási igényekben (pl. Otthon Start Hitelprogram, Babaváró, Falusi CSOK, CSOK Plusz, Lakáshitel, Személyi kölcsön stb.), illetve biztosítások tekintetében is díjmentesen, soron kívüli ügyintézéssel segítem ügyfeleim! Referenciaszám: M312846

Referencia szám: M312846

Hirdetés feltöltve: 2025. 10. 21. Utoljára módosítva: 2025. 12. 01.

3 szobás családi házak ára Szikszón

Ebből az összehasonlításból megtudhatod, hogyan viszonyul a lakás ára a környékbeli családi házak átlagos árához. Ez nem azt jelenti, hogy ennyivel olcsóbb vagy drágább, mint amennyit a lakás ér, hanem hogy ennyivel tér el a környékbeli átlagtól.

Ennek a m² ára
Szikszó m² ár
367 e Ft
338 e Ft -8%
Ennek az ára
Szikszó átlagár
22 M Ft m Ft
34.2 m Ft 36%

Az ingatlan elhelyezkedése

Cím: Szikszó

Eladó családi házak a környékről

Eladó családi ház
Eladó családi ház

Taktaszada, Thököly utca

37 M Ft
4 + 1 szoba
190 m2
Eladó családi ház
Eladó családi ház

Szikszó

46 M Ft
4 szoba
140 m2
Eladó családi ház
Eladó családi ház

Gönc, Kossuth Lajos utca

26 M Ft
2 + 1 szoba
130 m2
Eladó családi ház
Eladó családi ház

Ónod, Nyéki utca

20.7 M Ft
2 + 1 szoba
90 m2
Eladó családi ház
Eladó családi ház

Ózd

14.7 M Ft
3 szoba
95 m2
Eladó családi ház
Eladó családi ház

Tiszalúc

19.9 M Ft
4 szoba
180 m2
Eladó családi ház
Eladó családi ház

Tiszalúc, Alkotmány utca

16.9 M Ft
4 szoba
137 m2
Eladó családi ház
Eladó családi ház

Szikszó

47 M Ft
6 szoba
180 m2
Eladó családi ház
Eladó családi ház

Szikszó

49.9 M Ft
4 + 1 szoba
235 m2
Eladó családi ház
Eladó családi ház

Szikszó

70 M Ft
4 szoba
500 m2
Eladó családi ház
Eladó családi ház

Szikszó, Dolhai utca 2

1.2 M Ft
1 szoba
58 m2
Eladó családi ház
Eladó családi ház

Ózd

25.99 M Ft
4 szoba
198 m2
Eladó családi ház
Eladó családi ház

Miskolc

25.9 M Ft
4 szoba
148 m2
Eladó családi ház
Eladó családi ház

Szikszó

34.9 M Ft
2 + 1 szoba
105 m2
Eladó családi ház
Eladó családi ház

Szikszó

25.5 M Ft
5 szoba
180 m2
Eladó családi ház
Eladó családi ház

Szikszó

47 M Ft
6 szoba
200 m2
Eladó családi ház
Eladó családi ház

Gönc

26 M Ft
3 szoba
130 m2
Eladó családi ház
Eladó családi ház

Ózd, Ózd falu, 48-as út

39.9 M Ft
3 + 1 szoba
300 m2
Eladó családi ház
Eladó családi ház

Putnok

11 M Ft
3 szoba
79 m2
Eladó családi ház
Eladó családi ház

Szikszó

22 M Ft
3 szoba
60 m2
Eladó családi ház
Eladó családi ház

Szikszó

58.6 M Ft
5 szoba
137 m2
Eladó családi ház
Eladó családi ház

Szikszó

51 M Ft
6 szoba
170 m2
Eladó családi ház
Eladó családi ház

Nemesbikk, Kossuth utca 3

4.5 M Ft
2 szoba
80 m2
Eladó családi ház
Eladó családi ház

Szikszó

42.5 M Ft
5 + 1 szoba
240 m2

Falusi CSOK ingatlanok

Eladó családi ház
Eladó családi ház

Hegyeshalom

85 M Ft
4 + 1 szoba
123 m2
Eladó családi ház
Eladó családi ház

Csengőd

34 M Ft
2 szoba
81 m2
Eladó családi ház
Eladó családi ház

Tésenfa, Kossuth utca 23/a

5.55 M Ft
1 + 1 szoba
109 m2
Eladó családi ház
Eladó családi ház

Olaszfa

39.9 M Ft
4 szoba
96 m2
Eladó családi ház
Eladó családi ház

Pannonhalma

76.4 M Ft
4 szoba
97 m2
Eladó családi ház
Eladó családi ház

Tápiógyörgye

32 M Ft
3 szoba
86 m2
Eladó családi ház
Eladó családi ház

Fertőszentmiklós

98.5 M Ft
4 szoba
82 m2
Eladó családi ház
Eladó családi ház

Jákfa

14.4 M Ft
3 szoba
70 m2