City Pearl

Eladó családi ház
Szigetvár

+ 4 kép 1/7
48 600 000 Ft48.6 M Ft 385 714 Ft/m2
4 szoba
126 m2
építés éve:1980

Részletes adatok

Telekméret: 314 m2
Fűtés: Gázkazán
Energetikai besorolás: Nem adta meg a hirdető

Az OTP Bank lakáshitel ajánlataFizetett hirdetés

+36 20 938
Vincze László György
OTPIP - Pécs, Rákóczi út 19.

Érdekel az OTP Bank kedvezményes lakáshitel ajánlata? *

* A kérdésre „Igen” válasz bejelölése esetén, az „Üzenet küldése” gombra kattintva kijelentem, hogy az OTP Bank Nyrt. Adatkezelési tájékoztatójának tartalmát megismertem és tudomásul vettem.

Eladó családi ház leírása

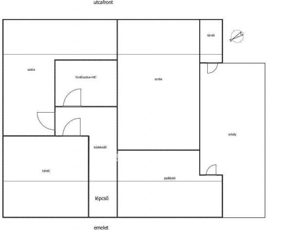
Szigetvár központjában, a Zrínyi-vártól és a Gyógyfürdőtől is sétatávolságban, egy csendes mellékutcában áll ez a gyönyörűen felújított, kétszintes családi ház. A földszinten egy nagy szoba, nappali konyha, fürdőszoba+wc és mosókonyha, a részben beépített tetőtérben két további szoba és egy újabb fürdőszoba+wc mellett egy nagyméretű fedett erkély található. A lakótér teljes alapterülete 120 négyzetméter, ebből a hasznos alapterület 108 négyzetméter. A jelenleg beépítetlen padlástéri tárolóból akár további két kisebb szoba is kialakítható.
Az összes nyílászárót műanyagra cserélték, redőnnyel, és szúnyoghálóval.
A tető egy éve lett felújítva, és szigetelve. A ház 10 centméteres külső szigetelést kapott.
A két családi házat magába foglaló, összesen 994 négyzetméteres, osztatlan közös tulajdonú ingatlan rendelkezik ügyvéd által ellenjegyzett használati megállapodással és megosztási vázrajzzal, így az eladásra kínált lakóház megfelel a kedvezményes hitel feltételeinek. Többek között az otthon start 3%-os hitelnek is.
A kizárólagos használatban álló, mintegy 200 négyzetméteres területen a lakóház mellett egy kis előkert, valamint fedett gépkocsibeálló és szerszámtároló melléképület áll, és ide tartozik még a lakóházak mögötti 114 négyzetméteres elkerített gyümölcsöskert is. A kert öntözésére fúrt kút is rendelkezésre áll.
Az épület fűtése egy kombi gázkazánnal és radiátorokkal történik, alternatív lehetőségként vegyestüzelésű kazánnal és hűtő-fűtő légkondival kiegészítve.
A lakás jelenlegi bútorzatának túlnyomó többsége megegyezés részét képezheti, ennek igény szerinti pontosítása későbbi megállapodás tárgya.

Referenciaszám: M315069

48600000 Ft

Referencia szám: M315069

Hirdetés feltöltve: 2025. 10. 18. Utoljára módosítva: 2025. 12. 25.

4 szobás családi házak ára Szigetváron

Ebből az összehasonlításból megtudhatod, hogyan viszonyul a lakás ára a környékbeli családi házak átlagos árához. Ez nem azt jelenti, hogy ennyivel olcsóbb vagy drágább, mint amennyit a lakás ér, hanem hogy ennyivel tér el a környékbeli átlagtól.

Ennek a m² ára
Szigetvár m² ár
386 e Ft
551 e Ft 30%
Ennek az ára
Szigetvár átlagár
48.6 M Ft m Ft
70.2 m Ft 31%

Az ingatlan elhelyezkedése

Cím: Szigetvár

Eladó családi házak a környékről

Eladó családi ház
Eladó családi ház

Szigetvár, Tinódi Sebestyén utca

55 M Ft
6 szoba
280 m2
Eladó családi ház
Eladó családi ház

Szigetvár

34.5 M Ft
3 szoba
90 m2
Eladó családi ház
Eladó családi ház

Mohács

25 M Ft
2 szoba
72 m2
Eladó családi ház
Eladó családi ház

Szigetvár

48.6 M Ft
4 szoba
126 m2
Eladó családi ház
Eladó családi ház

Lippó, Kossuth

97.798 M Ft
2 szoba
160 m2
Eladó családi ház
Eladó családi ház

Pécs, Deindol, Nagydeindoli

5.9 M Ft
902 m2
Eladó családi ház
Eladó családi ház

Szigetvár

59.8 M Ft
5 szoba
160 m2
Eladó családi ház
Eladó családi ház

Pécs, Kertváros, Táncsics Mihály utca

74.9 M Ft
6 szoba
185 m2
Eladó családi ház
Eladó családi ház

Szigetvár

65 M Ft
3 szoba
180 m2
Eladó családi ház
Eladó családi ház

Szigetvár

59.8 M Ft
5 szoba
160 m2
Eladó családi ház
Eladó családi ház

Szigetvár

61.4 M Ft
5 szoba
156 m2
Eladó családi ház
Eladó családi ház

Mohács

25 M Ft
4 szoba
120 m2
Eladó családi ház
Eladó családi ház

Szigetvár

65 M Ft
3 szoba
180 m2
Eladó családi ház
Eladó családi ház

Versend

75 M Ft
3 szoba
123 m2
Eladó családi ház
Eladó családi ház

Szigetvár

59.8 M Ft
5 szoba
160 m2
Eladó családi ház
Eladó családi ház

Pécs

133 M Ft
4 + 2 szoba
250 m2
Eladó családi ház
Eladó családi ház

Szigetvár

48.6 M Ft
4 szoba
120 m2
Eladó családi ház
Eladó családi ház

Szigetvár

59.8 M Ft
5 szoba
160 m2
Eladó családi ház
Eladó családi ház

Pécs

299 M Ft
5 szoba
350 m2
Eladó családi ház
Eladó családi ház

Szigetvár

34.5 M Ft
3 szoba
90 m2
Eladó családi ház
Eladó családi ház

Pécs, Deindol, Nagydeindoli

5.9 M Ft
902 m2
Eladó családi ház
Eladó családi ház

Szigetvár

65 M Ft
3 szoba
180 m2
Eladó családi ház
Eladó családi ház

Szigetvár, Kaposvári utca

9.9 M Ft
3 + 1 szoba
80 m2
Eladó családi ház
Eladó családi ház

Szigetvár

65 M Ft
3 szoba
180 m2

Falusi CSOK ingatlanok

Eladó családi ház
Eladó családi ház

Somogyegres

3.9 M Ft
2 szoba
59 m2
Eladó családi ház
Eladó családi ház

Tiszatenyő

13.99 M Ft
2 szoba
63 m2
Eladó családi ház
Eladó családi ház

Zákány, Május 1. utca

39.9 M Ft
2 szoba
112 m2
Eladó családi ház
Eladó családi ház

Darnózseli

79.9 M Ft
4 szoba
104 m2
Eladó családi ház
Eladó családi ház

Újlengyel

110 M Ft
4 szoba
121 m2
Eladó családi ház
Eladó családi ház

Gégény, Kossuth

15 M Ft
4 szoba
135 m2
Eladó családi ház
Eladó családi ház

Úrkút

94.9 M Ft
4 szoba
186 m2
Eladó családi ház
Eladó családi ház

Sarud

17 M Ft
3 szoba
94 m2