River Life

Eladó családi ház
Szigetszentmárton

+ 17 kép 1/20
159 000 000 Ft159 M Ft 1 325 000 Ft/m2
5 szoba
120 m2
építés éve:1986

Részletes adatok

Állapot: Felújított
Telekméret: 868 m2
Fűtés: Elektromos
Energetikai besorolás: Nem adta meg a hirdető

Az OTP Bank lakáshitel ajánlataFizetett hirdetés

+36 70 744
Grünwald Norbert
Szigetszentmiklós OTP Ip

Érdekel az OTP Bank kedvezményes lakáshitel ajánlata? *

* A kérdésre „Igen” válasz bejelölése esetén, az „Üzenet küldése” gombra kattintva kijelentem, hogy az OTP Bank Nyrt. Adatkezelési tájékoztatójának tartalmát megismertem és tudomásul vettem.

Eladó családi ház leírása

Eladó közvetlen Duna-parti ház Szigetszentmártonban. Ritka lehetőség vízparti otthonra!
Álmodott már arról, hogy reggelente a Dunára néző teraszon kávézik, miközben a napfelkeltében gyönyörködik? Most valóra válthatja!
Szigetszentmárton csendes, idilli részén, eladó egy kiváló állapotú, kétszintes, 5 szobás családi ház / nyaraló, közvetlen vízparti elhelyezkedéssel és saját stéggel!
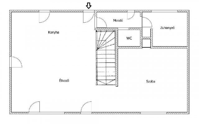
A ház jellemzői: 120 m2 hasznos alapterület, két szinten. Földszint (60 m2): tágas nappali, étkező, amerikai konyha, fürdőszoba épített zuhanyzóval, külön WC, egyedi tölgyfa lépcső. Emelet (60 m2): 4 hálószoba, WC, előtér. 60 m2-es panorámás terasz a Dunára. Saját stég, horgászat, csónakázás, pihenés közvetlenül a kert végéből. Kényelmi extrák: Fedett kocsibeálló 2 autónak, plusz 2 térkövezett parkoló a ház mellett, 20 m2-es tároló / fészer. Gondozott kert automata locsolórendszerrel. Elektromos kapu, kiépített riasztórendszer. Internet, kábel TV, heti hulladékszállítás. Műszaki állapot: A ház 9 éve teljes körű felújításon esett át (új elektromos rendszer, vízvezetékek, fűtés). Minőségi cseréptető, kelet-nyugati tájolás. 3 rétegű, fa nyílászárók szúnyoghálóval. Klíma a nappaliban és a déli fekvésű hálókban (összesen 3 db hűtő-fűtő klíma). Szabványos kémény kiépítve. IKEA konyhabútor, beépített mosogatógép, mosógép, elektromos főzőlap és sütő. Azonnal költözhető állapotban, nincs szükség felújításra vagy várakozásra! Ideális választás mindazoknak, akik egy nyugodt, természetközeli, vízparti életformára vágynak, legyen szó állandó otthonról vagy hétvégi nyaralóról. Ne hagyja ki ezt az egyedülálló lehetőséget, hívjon most és tekintse meg ezt a páratlan ingatlant személyesen!

Hirdetés feltöltve: 2025. 12. 05. Utoljára módosítva: 2025. 12. 05.

5 szobás családi házak ára Szigetszentmártonban

Ebből az összehasonlításból megtudhatod, hogyan viszonyul a lakás ára a környékbeli családi házak átlagos árához. Ez nem azt jelenti, hogy ennyivel olcsóbb vagy drágább, mint amennyit a lakás ér, hanem hogy ennyivel tér el a környékbeli átlagtól.

Ennek a m² ára
Szigetszentmárton m² ár
1325 e Ft
661 e Ft -101%
Ennek az ára
Szigetszentmárton átlagár
159 M Ft m Ft
107 m Ft -49%

Az ingatlan elhelyezkedése

Cím: Szigetszentmárton

Eladó családi házak a környékről

Eladó családi ház
Eladó családi ház

Dunavarsány

69.9 M Ft
3 + 1 szoba
140 m2
Eladó családi ház
Eladó családi ház

Tápiógyörgye

19.9 M Ft
3 szoba
65 m2
Eladó családi ház
Eladó családi ház

Dunavarsány

49.9 M Ft
3 + 2 szoba
130 m2
Eladó családi ház
Eladó családi ház

Budaörs, Városközpont utca

119.5 M Ft
5 + 1 szoba
140 m2
Eladó családi ház
Eladó családi ház

Budaörs, Bányász utca

385 M Ft
6 szoba
300 m2
Eladó családi ház
Eladó családi ház

Budakeszi, Makkosmária

100 M Ft
1 szoba
10 m2
Eladó családi ház
Eladó családi ház

Szigetszentmárton

69.9 M Ft
4 szoba
84 m2
Eladó családi ház
Eladó családi ház

Tápiószele

37.9 M Ft
4 szoba
141 m2
Eladó családi ház
Eladó családi ház

Dunakeszi

250 M Ft
4 szoba
180 m2
Eladó családi ház
Eladó családi ház

Szigetszentmárton

94.9 M Ft
14 szoba
700 m2
Eladó családi ház
Eladó családi ház

Tahitótfalu

188 M Ft
7 szoba
280 m2
Eladó családi ház
Eladó családi ház

Szigetszentmárton

39 M Ft
2 szoba
60 m2
Eladó családi ház
Eladó családi ház

Szigetszentmárton

98.2 M Ft
4 + 2 szoba
170 m2
Eladó családi ház
Eladó családi ház

Budakeszi

130 M Ft
5 szoba
30 m2
Eladó családi ház
Eladó családi ház

Budakeszi, Budakeszi kertváros

229 M Ft
10 szoba
450 m2
Eladó családi ház
Eladó családi ház

Szigetszentmárton

88 M Ft
3 szoba
140 m2
Eladó családi ház
Eladó családi ház

Szigetszentmárton

98.2 M Ft
4 + 2 szoba
170 m2
Eladó családi ház
Eladó családi ház

Kerepes

81.99 M Ft
5 szoba
102 m2
Eladó családi ház
Eladó családi ház

Szigetszentmárton

98.2 M Ft
4 + 2 szoba
170 m2
Eladó családi ház
Eladó családi ház

Tápiószentmárton

7.9 M Ft
2 + 1 szoba
86 m2
Eladó családi ház
Eladó családi ház

Pécel, Reményik Sándor utca

296 M Ft
6 szoba
396 m2
Eladó családi ház
Eladó családi ház

Szigetszentmárton

64.9 M Ft
5 szoba
106 m2
Eladó családi ház
Eladó családi ház

Szigetszentmárton

98.2 M Ft
4 + 2 szoba
170 m2
Eladó családi ház
Eladó családi ház

Tápiószele

32.9 M Ft
4 szoba
200 m2

Falusi CSOK ingatlanok

Eladó családi ház
Eladó családi ház

Mórichida

44.9 M Ft
3 szoba
89 m2
Eladó családi ház
Eladó családi ház

Ádánd

53.5 M Ft
6 szoba
180 m2
Eladó családi ház
Eladó családi ház

Jákfa

14.4 M Ft
3 szoba
70 m2
Eladó családi ház
Eladó családi ház

Tápszentmiklós

64.9 M Ft
5 szoba
110 m2
Eladó családi ház
Eladó családi ház

Elek

89.9 M Ft
5 szoba
274 m2
Eladó családi ház
Eladó családi ház

Kunadacs

34 M Ft
240 m2
Eladó családi ház
Eladó családi ház

Helesfa

17.999 M Ft
2 szoba
74 m2
Eladó családi ház
Eladó családi ház

Szabadbattyán

136 M Ft
5 szoba
226 m2