Metrodom

Eladó családi ház
Szentes

+ 17 kép 1/20
66 900 000 Ft66.9 M Ft 395 858 Ft/m2
3 szoba
169 m2
építés éve:1976

Részletes adatok

Telekméret: 569 m2
Fűtés: Gázkazán
Energetikai besorolás: Nem adta meg a hirdető

Az OTP Bank lakáshitel ajánlataFizetett hirdetés

+36 20 985
Petkov Gyöngyi Katalin
referens

Érdekel az OTP Bank kedvezményes lakáshitel ajánlata? *

* A kérdésre „Igen” válasz bejelölése esetén, az „Üzenet küldése” gombra kattintva kijelentem, hogy az OTP Bank Nyrt. Adatkezelési tájékoztatójának tartalmát megismertem és tudomásul vettem.

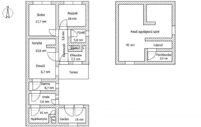
Eladó családi ház leírása

Kizárólag az OTP Ingatlanpont kínálatában! Otthon, ahol a családi emlékek születnek! Szentes csendes, barátságos részén még is a központhoz közel, eladó egy 169-nm-es, kétszintes családi ház, 569 nm-es telekkel, tökéletes választás mindazoknak, akik szeretnének tágas, szeretetteljes otthonba költözni. A földszinten található: nappali és egy szoba, sarokkádas és zuhanyzós fürdőszoba, külön WC, előszoba, nagy konyha étkezővel, kamra és irodahelyiség, mely közvetlen összeköttetésben van a melléképülettel. Az udvar felől és a házból is megközelíthető a nyárikonyha, külön WC-vel rendelkezik. Az emeleten egy nagylégterű szoba és fürdőszoba található WC-vel. Az udvaron fűtött garázs, kisebb tárolók és egy szín biztosítanak rengeteg helyet a kerti eszközöknek és a kertben végezhető hobbiknak. Amit még szeretni fogsz ebben a házban: napelemek a takarékos energiafelhasználásért, gázfűtés, fa tüzelésű kazán és 2 klíma. Télen-nyáron komfortos hőmérséklet, 5 cm hőszigetelés, energiahatékony megoldások. Ez a ház nem csak falakat és tetőt ad, hanem egy meleg, barátságos otthont, ahol a család minden tagja megtalálhatja a saját kis zugát. Legújabb szolgáltatásként ajánlom minden kedves ügyfelem részére az OTP Bank által közvetített Babaváró, CSOK PLUSZ, Otthon Start Hitelprogram vagy egyéb kölcsönök intézését. Az OTP Ingatlanpont kedvezményes pénzügyi konstrukciókkal áll ügyfelei rendelkezésére! VIP-szolgáltatást nyújtunk az OTP-hiteltermékek ügyintézésében. Jogi és pénzügyi segítséget nyújtanak szakértőink, hogy az adásvétel folyamata gördülékeny legyen. Amennyiben a vételár a kérdés, és úgy gondolja még nincs meg az összeg a leendő új otthonra? Lehet, hogy még is rendelkezésére áll a vételár csak még Ön nem is tudja? Tisztában van valóban az anyagi lehetőségeivel? Az áthidaló megoldásokkal? Esetleg csak az az akadály, hogy nem adta el még a saját ingatlanját? Nem gond, a tulajdonosaink, eladóink szívesen megvárják Önt, segítünk a gyors értékesítésben is. Ne maradjon le a vételről, ha már megtalálta a megfelelő új otthont! Szolgáltatásunk ingyenes, kizárólag sikeres értékesítés esetén van megbízási díj fizetési kötelezettség. A vevők is nálunk vannak és lehet az Ön ingatlanjára várnak?! Tudjon meg többet, hívjon bizalommal! Eladó ingatlanja van? Nincs vevője? Hívjon segítek az értékesítésben! Kedvező hitelajánlatokkal (BABAVÁRÓ hitel, piaci hitel, és szabadfelhasználású hitel) várjuk jelentkezését. Számos konstrukció közül választhatnak. Irodáink Szentes, Petőfi utca 12. (a buszmegálló felől) és Csongrád, Fő utca 54. szám alatt várja a személyes érdeklődőket. ***VÁLASSZUK KI EGYÜTT AZ ÖNNEK LEGMEGFELELŐBB AJÁNLATOT! BANKI SORBAN ÁLLÁS NÉLKÜL! ***

Referencia szám: M312227-ZE

Hirdetés feltöltve: 2025. 11. 06. Utoljára módosítva: 2025. 11. 06.

3 szobás családi házak ára Szentesen

Ebből az összehasonlításból megtudhatod, hogyan viszonyul a lakás ára a környékbeli családi házak átlagos árához. Ez nem azt jelenti, hogy ennyivel olcsóbb vagy drágább, mint amennyit a lakás ér, hanem hogy ennyivel tér el a környékbeli átlagtól.

Ennek a m² ára
Szentes m² ár
396 e Ft
310 e Ft -27%
Ennek az ára
Szentes átlagár
66.9 M Ft m Ft
40.3 m Ft -66%

Az ingatlan elhelyezkedése

Cím: Szentes

Eladó családi házak a környékről

Eladó családi ház
Eladó családi ház

Szentes

20.5 M Ft
3 szoba
80 m2
Eladó családi ház
Eladó családi ház

Szentes

67 M Ft
6 szoba
173 m2
Eladó családi ház
Eladó családi ház

Szentes

58 M Ft
4 szoba
147 m2
Eladó családi ház
Eladó családi ház

Baks

27.9 M Ft
2 szoba
82 m2
Eladó családi ház
Eladó családi ház

Szeged

149.9 M Ft
10 szoba
310 m2
Eladó családi ház
Eladó családi ház

Szeged

79.9 M Ft
5 szoba
135 m2
Eladó családi ház
Eladó családi ház

Szentes

28.5 M Ft
2 szoba
76 m2
Eladó családi ház
Eladó családi ház

Szentes

43.9 M Ft
3 szoba
102 m2
Eladó családi ház
Eladó családi ház

Szentes

64 M Ft
5 + 2 szoba
218 m2
Eladó családi ház
Eladó családi ház

Szentes

50 M Ft
4 szoba
156 m2
Eladó családi ház
Eladó családi ház

Szeged

259 M Ft
6 szoba
314 m2
Eladó családi ház
Eladó családi ház

Hódmezővásárhely, Kishomok, Új-Kishomok

60 M Ft
3 szoba
100 m2
Eladó családi ház
Eladó családi ház

Tiszasziget

49.9 M Ft
4 szoba
160 m2
Eladó családi ház
Eladó családi ház

Szentes

23.5 M Ft
3 szoba
130 m2
Eladó családi ház
Eladó családi ház

Szentes

108 M Ft
5 + 2 szoba
214 m2
Eladó családi ház
Eladó családi ház

Domaszék

199 M Ft
6 szoba
280 m2
Eladó családi ház
Eladó családi ház

Makó, Királyhegyesi utca

25 M Ft
3 szoba
90 m2
Eladó családi ház
Eladó családi ház

Szeged

220 M Ft
12 + 2 szoba
760 m2
Eladó családi ház
Eladó családi ház

Szentes

19 M Ft
4 szoba
131 m2
Eladó családi ház
Eladó családi ház

Szentes

67 M Ft
6 szoba
173 m2
Eladó családi ház
Eladó családi ház

Szentes

43 M Ft
6 szoba
225 m2
Eladó családi ház
Eladó családi ház

Szeged

109 M Ft
2 szoba
980 m2
Eladó családi ház
Eladó családi ház

Makó

87.5 M Ft
6 + 1 szoba
300 m2
Eladó családi ház
Eladó családi ház

Hódmezővásárhely

120 M Ft
7 szoba
236 m2

Falusi CSOK ingatlanok

Eladó családi ház
Eladó családi ház

Nagybörzsöny

36 M Ft
2 + 1 szoba
74 m2
Eladó családi ház
Eladó családi ház

Ceglédbercel, Iskola utca

99.99 M Ft
5 szoba
128 m2
Eladó családi ház
Eladó családi ház

Tanakajd

17.9 M Ft
3 szoba
61 m2
Eladó családi ház
Eladó családi ház

Szederkény

107.9 M Ft
6 szoba
224 m2
Eladó családi ház
Eladó családi ház

Gyömöre

45.99 M Ft
2 szoba
118 m2
Eladó családi ház
Eladó családi ház

Újlengyel

110 M Ft
4 szoba
121 m2
Eladó családi ház
Eladó családi ház

Mikepércs

59.99 M Ft
4 szoba
81 m2
Eladó családi ház
Eladó családi ház

Somogygeszti

10.9 M Ft
2 szoba
115 m2