Eladó családi ház
Szentes

+ 17 kép 1/20
16 000 000 Ft16 M Ft 238 806 Ft/m2
2 szoba
67 m2
építés éve:1960

Részletes adatok

Állapot: Felújítandó
Telekméret: 1000 m2
Fűtés: Egyéb
Energetikai besorolás: Nem adta meg a hirdető

Az OTP Bank lakáshitel ajánlataFizetett hirdetés

+36 20 985
Petkov Gyöngyi Katalin
Csongrád OTP Ingatlanpont Iroda

Érdekel az OTP Bank kedvezményes lakáshitel ajánlata? *

* A kérdésre „Igen” válasz bejelölése esetén, az „Üzenet küldése” gombra kattintva kijelentem, hogy az OTP Bank Nyrt. Adatkezelési tájékoztatójának tartalmát megismertem és tudomásul vettem.

Eladó családi ház leírása

Csak az OTP Ingatlanpontnál!
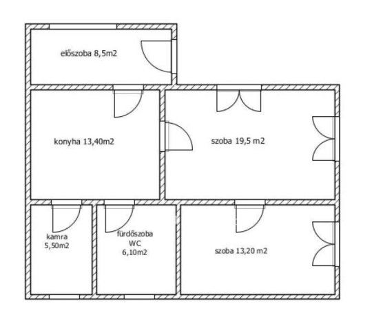
Szentes város szélén, csend és nyugalom ölelésében várja új tulajdonosát ez a 67 m2-es, felújítandó, de hatalmas lehetőségeket rejtő ingatlan, amely 1000 m?-es telken fekszik. A téglaépítésű ház két szobával, konyhával, fürdőszobával, kamrával és előszobával rendelkezik, klasszikus cseréptetővel, igazi vidéki hangulatot árasztva.
Az udvaron tágas melléképületek és egy nagy méretű garázs is található, amelyek remek lehetőséget kínálnak tárolásra, jószágtartásra vagy akár műhely kialakítására. Az ingatlan két bejárattal rendelkezik: az egyik főútvonalról könnyen megközelíthető, a másik pedig csendes utcáról nyílik, így a mindennapi élet és a nyugalom egyaránt biztosított.
Ideális választás lehet hétvégi háznak, kisebb gazdaság vagy kert kialakítására, sőt a telek mérete a bővítés lehetőségét is megadja az új tulajdonos számára. A gáz, víz és villany bevezetve, a csatorna csatlakozási pont pedig telken belül található.
Engedd, hogy a fantáziád formálja saját vidéki álmodat ezen a nagyszerű adottságokkal rendelkező szentesi ingatlanon!
Az OTP Bankcsoport teljes körű ügyintézéssel áll az eladók és a vevők rendelkezésére! A kínálatunkból választott ingatlan finanszírozásához kedvezményes hitel konstrukciókat kínálunk. Az adásvételi szerződés megkötéséhez igény szerint megbízható ügyvédi közreműködést biztosítunk, és segítséget nyújtunk az adásvételhez kapcsolódó ügyek intézéséhez. Akár hétvégén is hívható vagyok! Amennyiben igényli, kérem küldjön SMS-t és szívesen visszahívom!

Referencia szám: M314801-ZE

Hirdetés feltöltve: 2025. 10. 29. Utoljára módosítva: 2025. 10. 29.

Az ingatlan elhelyezkedése

Cím: Szentes

Eladó családi házak a környékről

Eladó családi ház
Eladó családi ház

Hódmezővásárhely, Kishomok, Új-Kishomok

60 M Ft
3 szoba
100 m2
Eladó családi ház
Eladó családi ház

Tiszasziget

58.9 M Ft
5 szoba
111 m2
Eladó családi ház
Eladó családi ház

Domaszék

199 M Ft
6 szoba
280 m2
Eladó családi ház
Eladó családi ház

Szeged, Alsóváros, Szabadság tér

89.9 M Ft
3 + 1 szoba
100 m2
Eladó családi ház
Eladó családi ház

Szentes

23.5 M Ft
3 szoba
130 m2
Eladó családi ház
Eladó családi ház

Szeged

109 M Ft
2 szoba
980 m2
Eladó családi ház
Eladó családi ház

Szentes

45 M Ft
3 szoba
180 m2
Eladó családi ház
Eladó családi ház

Szentes

28 M Ft
2 szoba
65 m2
Eladó családi ház
Eladó családi ház

Szeged

149.9 M Ft
10 szoba
310 m2
Eladó családi ház
Eladó családi ház

Szentes

44.9 M Ft
3 szoba
102 m2
Eladó családi ház
Eladó családi ház

Makó, Béke utca

115 M Ft
4 szoba
146 m2
Eladó családi ház
Eladó családi ház

Szeged

195 M Ft
4 szoba
210 m2
Eladó családi ház
Eladó családi ház

Mindszent

49.9 M Ft
8 szoba
280 m2
Eladó családi ház
Eladó családi ház

Szeged

79.9 M Ft
5 szoba
135 m2
Eladó családi ház
Eladó családi ház

Makó

87.5 M Ft
6 + 1 szoba
300 m2
Eladó családi ház
Eladó családi ház

Szentes, Soós utca 16

19.91 M Ft
1 + 1 szoba
51 m2
Eladó családi ház
Eladó családi ház

Szeged

220 M Ft
12 + 2 szoba
760 m2
Eladó családi ház
Eladó családi ház

Szentes

14.9 M Ft
2 szoba
66 m2
Eladó családi ház
Eladó családi ház

Szentes

20.5 M Ft
3 szoba
80 m2
Eladó családi ház
Eladó családi ház

Szentes

50 M Ft
4 szoba
156 m2
Eladó családi ház
Eladó családi ház

Szentes

67 M Ft
6 szoba
173 m2
Eladó családi ház
Eladó családi ház

Szentes

58 M Ft
4 szoba
147 m2
Eladó családi ház
Eladó családi ház

Baks, Kossuth Lajos utca

40 M Ft
3 szoba
300 m2
Eladó családi ház
Eladó családi ház

Hódmezővásárhely

120 M Ft
7 szoba
236 m2

Falusi CSOK ingatlanok

Eladó családi ház
Eladó családi ház

Németkér

33 M Ft
3 szoba
130 m2
Eladó családi ház
Eladó családi ház

Kesztölc

129.9 M Ft
8 szoba
210 m2
Eladó családi ház
Eladó családi ház

Hernádnémeti

19.9 M Ft
2 szoba
62 m2
Eladó családi ház
Eladó családi ház

Kisnána

27.9 M Ft
4 szoba
180 m2
Eladó téglalakás
Eladó téglalakás

Tokaj

116.5 M Ft
2 szoba
49 m2
Eladó családi ház
Eladó családi ház

Újszilvás

9.5 M Ft
3 szoba
57 m2
Eladó családi ház
Eladó családi ház

Kurityán, Kossuth Lajos út

17.5 M Ft
2 szoba
61 m2
Eladó családi ház
Eladó családi ház

Emőd

31.99 M Ft
2 szoba
75 m2