Eladó családi ház
Szentes

+ 17 kép 1/20
16 000 000 Ft16 M Ft 238 806 Ft/m2
2 szoba
67 m2
építés éve:1960

Részletes adatok

Állapot: Felújítandó
Telekméret: 1000 m2
Fűtés: Egyéb
Közmű: Víz, Gáz, Villany, Csatorna
Energetikai besorolás: Nem adta meg a hirdető
Zenga Premier

Friss hirdetések, amiket nem találsz meg más ingatlankereső portálon.

Fedezd fel elsőként a Zenga Premier címkés eladó ingatlanokat!

További részletek a zenga.hu-n

Az OTP Bank lakáshitel ajánlataFizetett hirdetés

+36 30 535
Orovecz Józsefné
referens

Érdekel az OTP Bank kedvezményes lakáshitel ajánlata? *

* A kérdésre „Igen” válasz bejelölése esetén, az „Üzenet küldése” gombra kattintva kijelentem, hogy az OTP Bank Nyrt. Adatkezelési tájékoztatójának tartalmát megismertem és tudomásul vettem.

Eladó családi ház leírása

Csak az OTP Ingatlanpontnál!
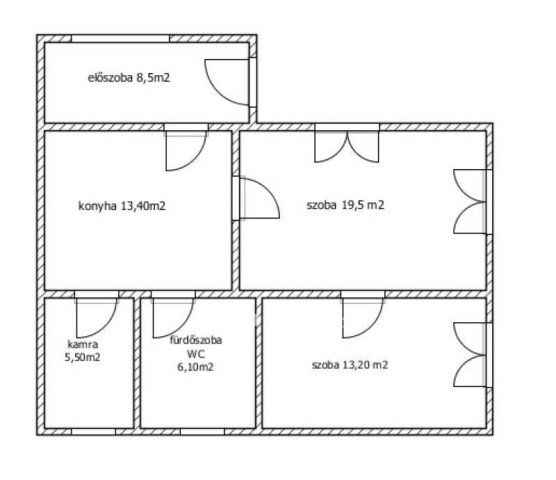
Szentes város szélén, csend és nyugalom ölelésében várja új tulajdonosát ez a 67 m2-es, felújítandó, de hatalmas lehetőségeket rejtő ingatlan, amely 1000 m?-es telken fekszik. A téglaépítésű ház két szobával, konyhával, fürdőszobával, kamrával és előszobával rendelkezik, klasszikus cseréptetővel, igazi vidéki hangulatot árasztva.
Az udvaron tágas melléképületek és egy nagy méretű garázs is található, amelyek remek lehetőséget kínálnak tárolásra, jószágtartásra vagy akár műhely kialakítására. Az ingatlan két bejárattal rendelkezik: az egyik főútvonalról könnyen megközelíthető, a másik pedig csendes utcáról nyílik, így a mindennapi élet és a nyugalom egyaránt biztosított.
Ideális választás lehet hétvégi háznak, kisebb gazdaság vagy kert kialakítására, sőt a telek mérete a bővítés lehetőségét is megadja az új tulajdonos számára. A gáz, víz és villany bevezetve, a csatorna csatlakozási pont pedig telken belül található.
Engedd, hogy a fantáziád formálja saját vidéki álmodat ezen a nagyszerű adottságokkal rendelkező szentesi ingatlanon!
Az OTP Bankcsoport teljes körű ügyintézéssel áll az eladók és a vevők rendelkezésére! A kínálatunkból választott ingatlan finanszírozásához kedvezményes hitel konstrukciókat kínálunk. Az adásvételi szerződés megkötéséhez igény szerint megbízható ügyvédi közreműködést biztosítunk, és segítséget nyújtunk az adásvételhez kapcsolódó ügyek intézéséhez. Akár hétvégén is hívható vagyok! Amennyiben igényli, kérem küldjön SMS-t és szívesen visszahívom!

Hirdetés feltöltve: 2025. 10. 15. Utoljára módosítva: 2025. 10. 15.

2 szobás családi házak ára Szentesen

Ebből az összehasonlításból megtudhatod, hogyan viszonyul a lakás ára a környékbeli családi házak átlagos árához. Ez nem azt jelenti, hogy ennyivel olcsóbb vagy drágább, mint amennyit a lakás ér, hanem hogy ennyivel tér el a környékbeli átlagtól.

Ennek a m² ára
Szentes m² ár
239 e Ft
289 e Ft 17%
Ennek az ára
Szentes átlagár
16 M Ft m Ft
18.9 m Ft 15%

Az ingatlan elhelyezkedése

Cím: Szentes

Eladó családi házak a környékről

Eladó családi ház
Eladó családi ház

Mindszent

49.9 M Ft
8 szoba
280 m2
Eladó családi ház
Eladó családi ház

Szentes

45 M Ft
3 szoba
180 m2
Eladó családi ház
Eladó családi ház

Szentes

13.9 M Ft
2 + 1 szoba
72 m2
Eladó családi ház
Eladó családi ház

Szentes

67 M Ft
6 szoba
173 m2
Eladó családi ház
Eladó családi ház

Szentes

58 M Ft
4 szoba
147 m2
Eladó családi ház
Eladó családi ház

Szeged, Alsóváros, Szabadság tér

89.9 M Ft
3 + 1 szoba
100 m2
Eladó családi ház
Eladó családi ház

Szentes

28 M Ft
2 szoba
65 m2
Eladó családi ház
Eladó családi ház

Szentes

29.8 M Ft
2 szoba
115 m2
Eladó családi ház
Eladó családi ház

Szentes

28.5 M Ft
2 szoba
76 m2
Eladó családi ház
Eladó családi ház

Makó

87.5 M Ft
6 + 1 szoba
300 m2
Eladó családi ház
Eladó családi ház

Szentes

25 M Ft
4 szoba
123 m2
Eladó családi ház
Eladó családi ház

Makó, Béke utca

115 M Ft
4 szoba
146 m2
Eladó családi ház
Eladó családi ház

Szentes

19 M Ft
4 szoba
131 m2
Eladó családi ház
Eladó családi ház

Szentes

50 M Ft
4 szoba
156 m2
Eladó családi ház
Eladó családi ház

Szeged

220 M Ft
5 + 2 szoba
207 m2
Eladó családi ház
Eladó családi ház

Szentes

64 M Ft
5 + 2 szoba
218 m2
Eladó családi ház
Eladó családi ház

Tiszasziget

58.9 M Ft
5 szoba
111 m2
Eladó családi ház
Eladó családi ház

Szentes

27 M Ft
3 szoba
140 m2
Eladó családi ház
Eladó családi ház

Szentes

55 M Ft
4 szoba
200 m2
Eladó családi ház
Eladó családi ház

Szeged

160 M Ft
5 szoba
187 m2
Eladó családi ház
Eladó családi ház

Szeged

195 M Ft
4 szoba
210 m2
Eladó családi ház
Eladó családi ház

Szeged

79.9 M Ft
5 szoba
135 m2
Eladó családi ház
Eladó családi ház

Szentes

44.9 M Ft
3 szoba
102 m2
Eladó családi ház
Eladó családi ház

Baks, Kossuth Lajos utca

40 M Ft
3 szoba
300 m2

Falusi CSOK ingatlanok

Eladó téglalakás
Eladó téglalakás

Balatonakali

110 M Ft
4 szoba
145 m2
Eladó családi ház
Eladó családi ház

Markaz

120 M Ft
4 szoba
136 m2
Eladó családi ház
Eladó családi ház

Tiszasziget

89.9 M Ft
4 szoba
100 m2
Eladó családi ház
Eladó családi ház

Tápióság

29.9 M Ft
2 szoba
65 m2
Eladó családi ház
Eladó családi ház

Ceglédbercel

23 M Ft
2 + 1 szoba
80 m2
Eladó családi ház
Eladó családi ház

Pálfa

34.99 M Ft
3 szoba
90 m2
Eladó családi ház
Eladó családi ház

Galgagyörk

46.9 M Ft
4 szoba
105 m2
Eladó családi ház
Eladó családi ház

Balatonfenyves

430 M Ft
4 szoba
274 m2