Eladó családi ház
Szentes

+ 17 kép 1/20
55 000 000 Ft55 M Ft 470 085 Ft/m2
3 + 1 szoba
117 m2
építés éve:1997

Részletes adatok

Telekméret: 539 m2
Fűtés: Gázkazán
Energetikai besorolás: Nem adta meg a hirdető

Az OTP Bank lakáshitel ajánlataFizetett hirdetés

+36 30 223
Lázár Krisztina
Szentes OTP Ingatlanpont Iroda Petőfi utca 12.

Érdekel az OTP Bank kedvezményes lakáshitel ajánlata? *

* A kérdésre „Igen” válasz bejelölése esetén, az „Üzenet küldése” gombra kattintva kijelentem, hogy az OTP Bank Nyrt. Adatkezelési tájékoztatójának tartalmát megismertem és tudomásul vettem.

Eladó családi ház leírása

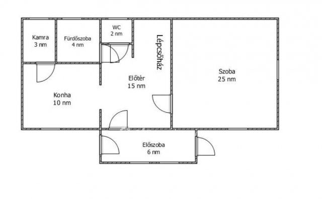
Kétszintes családi ház eladó Szentesen. A 117 nm-es, nappali + 3 szobával és 2 fürdőszobával rendelkező tégla építésű ház kertvárosi környezetben helyezkedik el egy 539 nm-es telken. Az előszobán keresztül a nagy előtéren áthaladva jutunk a hatalmas, világos nappaliba. A földszinten van a konyha, a kamra és egy fürdőszoba, valamint egy WC helyiség. A hűtő-fűtő klímát az előtérben helyezték el. Az emeleten további 3 külön bejáratú szoba és egy fürdőszoba kapott helyet. A jó állapotú ház fűtését gázkazán, a meleg vizet gázbojler biztosítja, ablakai 3 rétegű műanyag nyílászárók. A ház szigetelése 5 cm-es nikecell, rajta nemesvakolat. A szobák padlóburkolata laminált padló, a többi helyiség hidegburkolattal fedett. A melléképületben van egy fűtött konyha meleg víz ellátással, egy félkész fürdőszoba és a garázs. A nagy garázsban a parkoló autó mellett még nagy mennyiségű holmi tárolására is van lehetőség. A melléképület felett beépíthető tetőtér van. Az udvaron még további 2 autó számára van fedett kocsibeálló. Az ingatlan tehermentes, hitelezhető! Amennyiben az OTP Ingatlanpont kínálatából választ, számíthat szakmai támogatásunkra a teljes vételi folyamat során az adásvételi szerződés megkötésétől a hitel-ügyintézésen át az ingatlan átadásáig. Az OTP Ingatlanpont kedvezményes pénzügyi konstrukciókkal áll ügyfelei rendelkezésére, és VIP-szolgáltatást nyújt az OTP-hiteltermékek , valamint CSOK+-ügyintézésben.
Érdeklődni: Lázár Krisztina 06302233606

Referencia szám: M311515-ZE

Hirdetés feltöltve: 2025. 09. 18. Utoljára módosítva: 2025. 09. 23.

4 szobás családi házak ára Szentesen

Ebből az összehasonlításból megtudhatod, hogyan viszonyul a lakás ára a környékbeli családi házak átlagos árához. Ez nem azt jelenti, hogy ennyivel olcsóbb vagy drágább, mint amennyit a lakás ér, hanem hogy ennyivel tér el a környékbeli átlagtól.

Ennek a m² ára
Szentes m² ár
470 e Ft
439 e Ft -7%
Ennek az ára
Szentes átlagár
55 M Ft m Ft
55 m Ft 0%

Az ingatlan elhelyezkedése

Cím: Szentes

Eladó családi házak a környékről

Eladó családi ház
Eladó családi ház

Szeged

225 M Ft
5 szoba
203 m2
Eladó családi ház
Eladó családi ház

Szentes

20.5 M Ft
3 szoba
80 m2
Eladó családi ház
Eladó családi ház

Szentes

55 M Ft
4 szoba
200 m2
Eladó családi ház
Eladó családi ház

Szeged

220 M Ft
12 + 2 szoba
760 m2
Eladó családi ház
Eladó családi ház

Makó, Ráday 9/b

42 M Ft
1 szoba
150 m2
Eladó családi ház
Eladó családi ház

Szeged

220 M Ft
5 szoba
175 m2
Eladó családi ház
Eladó családi ház

Makó, Béke utca

115 M Ft
4 szoba
146 m2
Eladó családi ház
Eladó családi ház

Szentes

45 M Ft
3 szoba
180 m2
Eladó családi ház
Eladó családi ház

Hódmezővásárhely

120 M Ft
7 szoba
236 m2
Eladó családi ház
Eladó családi ház

Szeged, Alsóváros, Szabadság tér

89.9 M Ft
3 + 1 szoba
100 m2
Eladó családi ház
Eladó családi ház

Szentes

128 M Ft
3 szoba
372 m2
Eladó családi ház
Eladó családi ház

Szentes

67 M Ft
6 szoba
173 m2
Eladó családi ház
Eladó családi ház

Tiszasziget

49.9 M Ft
4 szoba
160 m2
Eladó családi ház
Eladó családi ház

Szentes

44.9 M Ft
3 szoba
102 m2
Eladó családi ház
Eladó családi ház

Mindszent

49.9 M Ft
8 szoba
280 m2
Eladó családi ház
Eladó családi ház

Szentes

58 M Ft
4 szoba
147 m2
Eladó családi ház
Eladó családi ház

Szeged

125 M Ft
4 szoba
106 m2
Eladó családi ház
Eladó családi ház

Szentes

19 M Ft
4 szoba
131 m2
Eladó családi ház
Eladó családi ház

Szentes, Soós utca 16

19.91 M Ft
1 + 1 szoba
51 m2
Eladó családi ház
Eladó családi ház

Szentes

64 M Ft
5 + 2 szoba
218 m2
Eladó családi ház
Eladó családi ház

Tiszasziget

58.9 M Ft
5 szoba
111 m2
Eladó családi ház
Eladó családi ház

Szeged

220 M Ft
5 + 2 szoba
207 m2
Eladó családi ház
Eladó családi ház

Szentes

23.5 M Ft
3 szoba
130 m2
Eladó családi ház
Eladó családi ház

Makó, Királyhegyesi utca

25 M Ft
3 szoba
90 m2

Falusi CSOK ingatlanok

Eladó családi ház
Eladó családi ház

Törökkoppány

20.9 M Ft
2 szoba
80 m2
Eladó családi ház
Eladó családi ház

Szentmártonkáta

35.4 M Ft
2 + 2 szoba
107 m2
Eladó családi ház
Eladó családi ház

Szécsisziget

12.5 M Ft
1 szoba
57 m2
Eladó családi ház
Eladó családi ház

Szigliget, Balaton utca 9

187 M Ft
3 szoba
136 m2
Eladó családi ház
Eladó családi ház

Kislőd

35.9 M Ft
4 szoba
148 m2
Eladó családi ház
Eladó családi ház

Zalaszentbalázs

32 M Ft
2 szoba
100 m2
Eladó téglalakás
Eladó téglalakás

Hegyeshalom

35 M Ft
43 m2
Eladó családi ház
Eladó családi ház

Örkény

29.9 M Ft
3 szoba
106 m2