Metrodom

Eladó családi ház
Szentes

+ 17 kép 1/20
49 900 000 Ft49.9 M Ft 277 222 Ft/m2
4 szoba
180 m2
építés éve:1920

Részletes adatok

Telekméret: 823 m2
Fűtés: Gázkazán
Parkolás: Garázs
Energetikai besorolás: Nem adta meg a hirdető

Az OTP Bank lakáshitel ajánlataFizetett hirdetés

+36 70 677
Jószai Olívia
Szentes OTP Ingatlanpont Iroda Petőfi utca 12.

Érdekel az OTP Bank kedvezményes lakáshitel ajánlata? *

* A kérdésre „Igen” válasz bejelölése esetén, az „Üzenet küldése” gombra kattintva kijelentem, hogy az OTP Bank Nyrt. Adatkezelési tájékoztatójának tartalmát megismertem és tudomásul vettem.

Eladó családi ház leírása

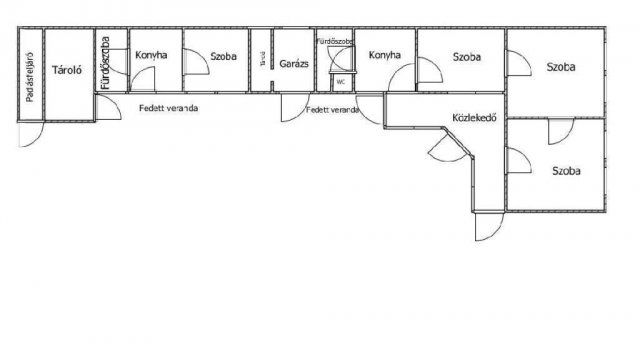
*** Nagy polgári ház eladó Csongrád-Csanád vármegyében, Szentesen. A jó állapotú, vegyes falazatú kertes családi ház, a városközpontban, egy 823 nm-es telken helyezkedik el. A 220 nm-es lakóház 2 család részére is kényelmes otthont biztosíthat, mivel 2 külön bejáratú lakórészre van osztva, melyek külön közüzemi mérőórákkal rendelkeznek. A 122 nm-es lakórészben 3 nagy szoba, konyha, fürdőszoba, WC és közlekedő, valamint egy tároló és egy garázs tartozik. Itt a fűtésről gázkazán, a meleg vízről villanybojler gondoskodik. A másik, az egy szoba + konyha + fürdőszoba helyiségekből álló 37 nm-es lakrész, melyhez egy 21 nm-es tároló is tartozik, ami alkalmas lenne egy újabb szoba kialakítására a még nagyobb kényelemért. Ebben a kisebb lakrészben a fűtést konvektorok, a meleg vizet szintén villanybojler biztosítja. Az udvar végében, a kisebb lakrész előtt egy lemez garázs kapott helyet. Az ingatlant nagycsaládosoknak ajánlom, de akár több generáció együttélésére is kiválóan alkalmas lehet, csakúgy, mint vállalkozás működtetésére, lakhat és dolgozhat egy helyen, ráadásul mindez a város kellős közepén egy csendes, nyugodt helyen. Amennyiben az OTP Ingatlanpont kínálatából választ, számíthat szakmai támogatásunkra a teljes vételi folyamat során az adásvételi szerződés megkötésétől a hitel-ügyintézésen át az ingatlan átadásáig. Az OTP Ingatlanpont kedvezményes pénzügyi konstrukciókkal áll ügyfelei rendelkezésére, és VIP-szolgáltatást nyújt az OTP-hiteltermékek, valamint CSOK-ügyintézésben. Kedvező hitelajánlatokkal (BABAVÁRÓ hitel, piaci hitel, és szabadfelhasználású hitel) várjuk jelentkezését. Számos konstrukció közül választhatnak. ***VÁLASSZUK KI EGYÜTT AZ ÖNNEK LEGMEGFELELŐBB AJÁNLATOT! BANKI SORBAN ÁLLÁS NÉLKÜL! ***Amennyiben az OTP Ingatlanpont kínálatából választ, számíthat szakmai támogatásunkra a teljes vételi folyamat során az adásvételi szerződés megkötésétől a hitel-ügyintézésen át az ingatlan átadásáig. Az OTP Ingatlanpont kedvezményes pénzügyi konstrukciókkal áll ügyfelei rendelkezésére, és VIP-szolgáltatást nyújt az OTP-hiteltermékek, valamint CSOK-ügyintézésben. Kedvező hitelajánlatokkal (BABAVÁRÓ hitel, piaci hitel, és szabadfelhasználású hitel) várjuk jelentkezését. Számos konstrukció közül választhatnak. ***VÁLASSZUK KI EGYÜTT AZ ÖNNEK LEGMEGFELELŐBB AJÁNLATOT! BANKI SORBAN ÁLLÁS NÉLKÜL!***

Referencia szám: M309792-ZE

Hirdetés feltöltve: 2025. 08. 28. Utoljára módosítva: 2025. 12. 04.

4 szobás családi házak ára Szentesen

Ebből az összehasonlításból megtudhatod, hogyan viszonyul a lakás ára a környékbeli családi házak átlagos árához. Ez nem azt jelenti, hogy ennyivel olcsóbb vagy drágább, mint amennyit a lakás ér, hanem hogy ennyivel tér el a környékbeli átlagtól.

Ennek a m² ára
Szentes m² ár
277 e Ft
395 e Ft 30%
Ennek az ára
Szentes átlagár
49.9 M Ft m Ft
50.6 m Ft 1%

Az ingatlan elhelyezkedése

Cím: Szentes

Eladó családi házak a környékről

Eladó családi ház
Eladó családi ház

Makó, Királyhegyesi utca

25 M Ft
3 szoba
90 m2
Eladó családi ház
Eladó családi ház

Szentes, Soós utca 16

19.91 M Ft
1 + 1 szoba
51 m2
Eladó családi ház
Eladó családi ház

Szentes

14.9 M Ft
2 + 1 szoba
72 m2
Eladó családi ház
Eladó családi ház

Szentes

50 M Ft
4 szoba
156 m2
Eladó családi ház
Eladó családi ház

Szeged

259 M Ft
6 szoba
314 m2
Eladó családi ház
Eladó családi ház

Szeged

220 M Ft
12 + 2 szoba
760 m2
Eladó családi ház
Eladó családi ház

Makó

87.5 M Ft
6 + 1 szoba
300 m2
Eladó családi ház
Eladó családi ház

Tiszasziget

58.9 M Ft
5 szoba
111 m2
Eladó családi ház
Eladó családi ház

Domaszék

199 M Ft
6 szoba
280 m2
Eladó családi ház
Eladó családi ház

Szentes

45 M Ft
3 szoba
180 m2
Eladó családi ház
Eladó családi ház

Szentes

128 M Ft
3 szoba
372 m2
Eladó családi ház
Eladó családi ház

Szentes

43.9 M Ft
3 szoba
102 m2
Eladó családi ház
Eladó családi ház

Szentes

25 M Ft
4 szoba
123 m2
Eladó családi ház
Eladó családi ház

Szentes

67 M Ft
6 szoba
173 m2
Eladó családi ház
Eladó családi ház

Szentes

58 M Ft
4 szoba
147 m2
Eladó családi ház
Eladó családi ház

Baks

27.9 M Ft
2 szoba
82 m2
Eladó családi ház
Eladó családi ház

Szentes

21 M Ft
3 szoba
65 m2
Eladó családi ház
Eladó családi ház

Szeged, Alsóváros, Szabadság tér

89.9 M Ft
3 + 1 szoba
100 m2
Eladó családi ház
Eladó családi ház

Mindszent

49.9 M Ft
8 szoba
280 m2
Eladó családi ház
Eladó családi ház

Szeged

125 M Ft
4 szoba
106 m2
Eladó családi ház
Eladó családi ház

Makó, Béke utca

115 M Ft
4 szoba
146 m2
Eladó családi ház
Eladó családi ház

Szeged

79.9 M Ft
5 szoba
135 m2
Eladó családi ház
Eladó családi ház

Szentes

64 M Ft
5 + 2 szoba
218 m2
Eladó családi ház
Eladó családi ház

Szentes

25.5 M Ft
2 szoba
65 m2

Falusi CSOK ingatlanok

Eladó családi ház
Eladó családi ház

Kenyeri

39.9 M Ft
3 szoba
94 m2
Eladó családi ház
Eladó családi ház

Hövej

119.9 M Ft
3 szoba
75 m2
Eladó családi ház
Eladó családi ház

Pannonhalma

83.9 M Ft
4 szoba
97 m2
Eladó családi ház
Eladó családi ház

Söpte

94.9 M Ft
4 szoba
94 m2
Eladó családi ház
Eladó családi ház

Tiszaroff

13.9 M Ft
2 szoba
81 m2
Eladó családi ház
Eladó családi ház

Tápszentmiklós

64.9 M Ft
5 szoba
110 m2
Eladó családi ház
Eladó családi ház

Dunaszentbenedek

24.9 M Ft
2 szoba
85 m2
Eladó családi ház
Eladó családi ház

Balatonfőkajár

40 M Ft
2 szoba
64 m2