Astora Art House

Eladó családi ház
Szentendre, Üstökös utca

+ 11 kép 1/14
110 000 000 Ft110 M Ft 852 713 Ft/m2
4 szoba
129 m2
építés éve:1988

Részletes adatok

Állapot: Átlagos
Telekméret: 359 m2
Fűtés: Gázkazán
Parkolás: Garázs, Kocsibeálló
Közmű: Víz, Gáz, Villany, Csatorna
Energetikai besorolás: Nem adta meg a hirdető

Az OTP Bank lakáshitel ajánlataFizetett hirdetés

+36 70 681
Gaál-Kindel Petra
referens

Érdekel az OTP Bank kedvezményes lakáshitel ajánlata? *

* A kérdésre „Igen” válasz bejelölése esetén, az „Üzenet küldése” gombra kattintva kijelentem, hogy az OTP Bank Nyrt. Adatkezelési tájékoztatójának tartalmát megismertem és tudomásul vettem.

Eladó családi ház leírása

***Egyedi hangulatú, kivételes családi ház Szentendrén – csendes zsákutcában, Pismány alján, belterületi övezetben***

Otthon Start programra alkalmas!

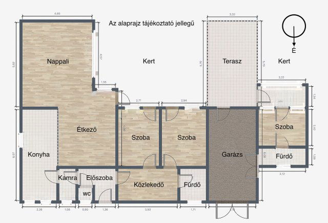
Eladó Szentendre kedvelt részén, a Pismány aljában, az Üstökös utcában egy szintes, 115 m²-es lakóterületű lakóház, 359 m²-es belterületi telken.
A ház lakóterülete 115 m² + 12 m² a garázs és a terasz 15 m², utóbbi 2 helyiség területe 50%-ban számítva.

A garázsból feljuthatunk a tetőre, ahol további élettér alakítható ki, illetve egy nagy méretű pince is van a ház alatt. Az utca keskeny, a hirdetett ház előtt viszont szélesebb, és utcai parkolás esetén a garázs is lakótérré alakítható.
A ház csendes, nyugodt zsákutcában található, mégis gyorsan megközelíthető a 11-es útról, így ideális választás azok számára, akiknek fontos a jó közlekedés.

A ház könnyűszerkezetes, betonyp építésű, pala tetős épület az 1987-ben épült. A tető üveggyapottal szigetelt.
Eredeti fa nyílászárói vannak, a fűtést új cirkó kazán biztosítja. A fürdőszoba és a konyha újult meg az elmúlt években, a nappaliban klíma lett beszerelve.

Az átgondolt, egyfajta U alakú alaprajz és a kert köré szervezett elrendezés különleges intimitást és kellemes életteret ad.
A közös terek jól elkülönülnek a hálószobáktól, tágas nappali kandallóval, nagy étkező és konyha kamrával, valamint a 3 hálószoba (ebből az egyik teljesen szeparált, saját fürdővel) jól kiszolgál akár két generációs együttélést is.
A közlekedőben nagyméretű beépített szekrény akár az egész család ruhatárának helyet ad.

Minden szoba kertkapcsolatos. A nappali nyugati fekvésének és nagy ablakfelületeinek köszönhetően világos, napfényes, és kellemes kilátás nyílik a kertre, a hálószobák déli tájolásúak..

A kert kialakítása is különleges, külön megemlítést érdemel. A tető vonalában egy vízgyűjtő rendszer lett kialakítva, így ritkán kell locsolni. Korábban japánkertként lett kialakítva a növényzet, amelyet az új tulajdonos akár újjá is éleszthet.
A teraszon kialakítható nyári konyha, grillező vagy pihenőterasz, míg a vendégrész felőli kiskertben helyet kaphat egy veteményes vagy kisebb medence is.

Felújítást igényel, de egyedisége, elhelyezkedése és hangulata miatt kivételes lehetőség azok számára, akik egy jól átgondolt, praktikus elosztású, karakteres otthont keresnek.
Kiváló választás 1-2 gyerekes családoknak, otthonról dolgozóknak, illetve két generáció együttélésére is alkalmas.

Tehermentes, 1/1 tulajdon.

Rugalmasan megtekinthető, valamint ingyenes, bankfüggetlen hitelügyintézésben is segítséget nyújtok.

Hirdetés feltöltve: 2025. 10. 27. Utoljára módosítva: 2025. 11. 18.

4 szobás családi házak ára Szentendrén

Ebből az összehasonlításból megtudhatod, hogyan viszonyul a lakás ára a környékbeli családi házak átlagos árához. Ez nem azt jelenti, hogy ennyivel olcsóbb vagy drágább, mint amennyit a lakás ér, hanem hogy ennyivel tér el a környékbeli átlagtól.

Ennek a m² ára
Szentendre m² ár
853 e Ft
1139 e Ft 25%
Ennek az ára
Szentendre átlagár
110 M Ft m Ft
164.9 m Ft 33%

Az ingatlan elhelyezkedése

Cím: Szentendre, Üstökös utca

Eladó családi házak a környékről

Eladó családi ház
Eladó családi ház

Tahitótfalu

188 M Ft
7 szoba
280 m2
Eladó családi ház
Eladó családi ház

Budaörs, Odvshegy utca

268.9 M Ft
5 szoba
235 m2
Eladó családi ház
Eladó családi ház

Szentendre

399 M Ft
7 szoba
500 m2
Eladó családi ház
Eladó családi ház

Tápiószentmárton

7.9 M Ft
2 + 1 szoba
86 m2
Eladó családi ház
Eladó családi ház

Szentendre

290 M Ft
1 szoba
500 m2
Eladó családi ház
Eladó családi ház

Szentendre, Árboc utca

79 M Ft
4 szoba
102 m2
Eladó családi ház
Eladó családi ház

Tápiószele

32.9 M Ft
4 szoba
200 m2
Eladó családi ház
Eladó családi ház

Szentendre, Barackvirág utca

132 M Ft
5 szoba
115 m2
Eladó családi ház
Eladó családi ház

Szentendre

130 M Ft
3 szoba
178 m2
Eladó családi ház
Eladó családi ház

Szentendre

169.9 M Ft
4 szoba
250 m2
Eladó családi ház
Eladó családi ház

Érd

164.9 M Ft
5 szoba
192 m2
Eladó családi ház
Eladó családi ház

Kerepes

199 M Ft
6 szoba
360 m2
Eladó családi ház
Eladó családi ház

Szentendre

159.9 M Ft
5 szoba
150 m2
Eladó családi ház
Eladó családi ház

Tápiószele

37.9 M Ft
4 szoba
141 m2
Eladó családi ház
Eladó családi ház

Szentendre

310 M Ft
4 szoba
243 m2
Eladó családi ház
Eladó családi ház

Pécel, Reményik Sándor utca

296 M Ft
6 szoba
396 m2
Eladó családi ház
Eladó családi ház

Szentendre

620.8 M Ft
3 szoba
450 m2
Eladó családi ház
Eladó családi ház

Budaörs, Városközpont utca

119.5 M Ft
5 + 1 szoba
140 m2
Eladó családi ház
Eladó családi ház

Dunakeszi

250 M Ft
4 szoba
180 m2
Eladó családi ház
Eladó családi ház

Remeteszőlős

399.9 M Ft
5 + 2 szoba
260 m2
Eladó családi ház
Eladó családi ház

Tápiógyörgye

19.9 M Ft
3 szoba
65 m2
Eladó családi ház
Eladó családi ház

Szentendre

185 M Ft
6 szoba
198 m2
Eladó családi ház
Eladó családi ház

Szentendre, Dunakanyar sétány

185 M Ft
6 szoba
162 m2
Eladó családi ház
Eladó családi ház

Tápiószentmárton

48 M Ft
5 szoba
180 m2

Falusi CSOK ingatlanok

Eladó családi ház
Eladó családi ház

Balatonfenyves

430 M Ft
4 szoba
274 m2
Eladó ikerház
Eladó ikerház

Besnyő

79.6 M Ft
5 szoba
117 m2
Eladó családi ház
Eladó családi ház

Bár

24.5 M Ft
4 szoba
125 m2
Eladó családi ház
Eladó családi ház

Szil

25 M Ft
2 szoba
90 m2
Eladó ikerház
Eladó ikerház

Seregélyes

39.9 M Ft
4 szoba
150 m2
Eladó családi ház
Eladó családi ház

Ceglédbercel

64.9 M Ft
3 szoba
87 m2
Eladó családi ház
Eladó családi ház

Zalacsány

75 M Ft
3 szoba
90 m2
Eladó családi ház
Eladó családi ház

Törtel

10 M Ft
2 szoba
32 m2