NapForrás 20 - Buda

Eladó családi ház
Szekszárd

+ 17 kép 1/20
69 900 000 Ft69.9 M Ft 776 667 Ft/m2
3 szoba
90 m2
építés éve:1975

Részletes adatok

Állapot: Átlagos
Telekméret: 640 m2
Fűtés: Gázkonvektor
Energetikai besorolás: Nem adta meg a hirdető

Az OTP Bank lakáshitel ajánlataFizetett hirdetés

+36 70 345
Hován Sándor
referens

Érdekel az OTP Bank kedvezményes lakáshitel ajánlata? *

* A kérdésre „Igen” válasz bejelölése esetén, az „Üzenet küldése” gombra kattintva kijelentem, hogy az OTP Bank Nyrt. Adatkezelési tájékoztatójának tartalmát megismertem és tudomásul vettem.

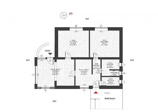
Eladó családi ház leírása

*****Eladó Szekszárdon, egy modernizált családi ház! *****
Tolna vármegye székhelyén, Szekszárdon eladásra kínálok egy 90 m2-es részben felújított, 1/1 tulajdonú, tehermentes, napkollektorral ellátott, részben bútorozott, 3 szobás családi házat!

A tágas, igényesen kialakított telek 640 m2, amely kiszolgál minden igényt. Az ingatlan a fekvésének köszönhetően, és az évszaktól függetlenül is folymatos természetes fényt kap.

Az ingatlan körbejárható, a szomszédok segítőkészek, csendesek, sosem volt rájuk panasz. Az udvaron gyümölcsfák, kerti csap és ásott kút található. A ház hátsó részén egy új, fedett, és igényes kialakított 14 m2-es terasz található amely bármely családi rendezvények a helyszíne lehet!

2022-ben a majd 6kW-os teljesítményű napkollektorral egyidejűleg a tető is fel lett újítva, ami magában foglalja az új:
- cserépléceket,
- tetőfliát,
- a Bramac cserepet,
- a 22 cm-es tető szigetelést,
- és a csatornát is.

Emellett a ház 5 cm-es szigetelést kapott és egyidejűleg a nyílászárók is cserélve lettek.
Az ingatlan fűtése egy központi termosztátról vezérelhető gázkonvektoros hőleadású rendszer, ami kiegészül egy, a nappaliban elhelyezett vegyestüzelésű kályhával.

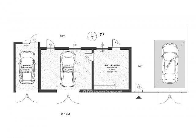
A melléképületben akár 3 autó is parkolhat, alatta pedig egy betonfödémmel ellátott száraz pince található, ami rengeteg lehetőséget rejt magában!

Az ingatlan lokációja kiváló: Tesco Hipermarket, Lidl, Obi, éttermek csak pár percre.

Amennyiben a hirdetésem felkeltette az érdeklődésést, hívjon a hét bármely napján!

69900000 Ft

Referencia szám: M317538

Hirdetés feltöltve: 2025. 11. 27. Utoljára módosítva: 2025. 12. 29.

3 szobás családi házak ára Szekszárdon

Ebből az összehasonlításból megtudhatod, hogyan viszonyul a lakás ára a környékbeli családi házak átlagos árához. Ez nem azt jelenti, hogy ennyivel olcsóbb vagy drágább, mint amennyit a lakás ér, hanem hogy ennyivel tér el a környékbeli átlagtól.

Ennek a m² ára
Szekszárd m² ár
777 e Ft
574 e Ft -35%
Ennek az ára
Szekszárd átlagár
69.9 M Ft m Ft
60.6 m Ft -15%

Az ingatlan elhelyezkedése

Cím: Szekszárd

Eladó családi házak a környékről

Eladó családi ház
Eladó családi ház

Szekszárd

28.5 M Ft
1 + 2 szoba
60 m2
Eladó családi ház
Eladó családi ház

Szekszárd

28 M Ft
2 szoba
187 m2
Eladó családi ház
Eladó családi ház

Szekszárd

31 M Ft
435 m²
30 m2
Eladó családi ház
Eladó családi ház

Bikács, Kossuth Lajos utca

128.915 M Ft
6 szoba
450 m2
Eladó családi ház
Eladó családi ház

Szekszárd, Szent László utca

35 M Ft
8 szoba
275 m2
Eladó családi ház
Eladó családi ház

Paks

21.9 M Ft
2 szoba
70 m2
Eladó családi ház
Eladó családi ház

Szekszárd

126 M Ft
6 szoba
155 m2
Eladó családi ház
Eladó családi ház

Szekszárd

34.8 M Ft
3 szoba
99 m2
Eladó családi ház
Eladó családi ház

Szekszárd

36 M Ft
3 szoba
132 m2
Eladó családi ház
Eladó családi ház

Szekszárd

25.99 M Ft
3 szoba
67 m2
Eladó családi ház
Eladó családi ház

Szekszárd

29.999 M Ft
1 szoba
30 m2
Eladó családi ház
Eladó családi ház

Paks

60 M Ft
4 szoba
120 m2
Eladó családi ház
Eladó családi ház

Tamási

41 M Ft
4 + 2 szoba
150 m2
Eladó családi ház
Eladó családi ház

Paks, Ezredvég utca

399 M Ft
5 + 1 szoba
400 m2
Eladó családi ház
Eladó családi ház

Szekszárd

129.9 M Ft
8 szoba
309 m2
Eladó családi ház
Eladó családi ház

Paks

20 M Ft
3 szoba
88 m2
Eladó családi ház
Eladó családi ház

Paks

65 M Ft
4 szoba
159 m2
Eladó családi ház
Eladó családi ház

Szekszárd

28.5 M Ft
1 + 2 szoba
60 m2
Eladó családi ház
Eladó családi ház

Szekszárd

29.9 M Ft
4 szoba
130 m2
Eladó családi ház
Eladó családi ház

Paks

11.9 M Ft
1 szoba
45 m2
Eladó családi ház
Eladó családi ház

Bátaszék, Deák Ferenc utca

40 M Ft
8 szoba
271 m2
Eladó családi ház
Eladó családi ház

Dunaszentgyörgy

10.8 M Ft
3 szoba
65 m2
Eladó családi ház
Eladó családi ház

Szekszárd, Árnyék dűlő

24.5 M Ft
1 szoba
29 m2
Eladó családi ház
Eladó családi ház

Szekszárd, Bottyánhegy, Csonka utca

40 M Ft
6 szoba
164 m2

Falusi CSOK ingatlanok

Eladó családi ház
Eladó családi ház

Sellye

14.9 M Ft
4 szoba
135 m2
Eladó családi ház
Eladó családi ház

Magyarszék

48.5 M Ft
3 + 1 szoba
86 m2
Eladó családi ház
Eladó családi ház

Badacsonytomaj, Kodály Zoltán utca

185 M Ft
6 + 1 szoba
210 m2
Eladó családi ház
Eladó családi ház

Fajsz

25 M Ft
3 szoba
95 m2
Eladó családi ház
Eladó családi ház

Üllés

35.5 M Ft
3 szoba
99 m2
Eladó családi ház
Eladó családi ház

Somogygeszti

38.6 M Ft
3 + 1 szoba
98 m2
Eladó családi ház
Eladó családi ház

Zengővárkony

30.999 M Ft
3 szoba
87 m2
Eladó családi ház
Eladó családi ház

Tarján

31.5 M Ft
3 szoba
120 m2