Stay Family Park

Eladó családi ház
Székesfehérvár

+ 17 kép 1/20
129 900 000 Ft129.9 M Ft 948 175 Ft/m2
5 szoba
137 m2
építés éve:2025

Részletes adatok

Telekméret: 377 m2
Fűtés: Egyéb
Parkolás: Garázs
Energetikai besorolás: Nem adta meg a hirdető

Az OTP Bank lakáshitel ajánlataFizetett hirdetés

+36 30 503
Posztlné Leiti Gabriella
referens

Érdekel az OTP Bank kedvezményes lakáshitel ajánlata? *

* A kérdésre „Igen” válasz bejelölése esetén, az „Üzenet küldése” gombra kattintva kijelentem, hogy az OTP Bank Nyrt. Adatkezelési tájékoztatójának tartalmát megismertem és tudomásul vettem.

Eladó családi ház leírása

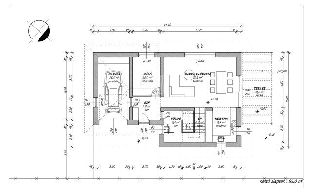
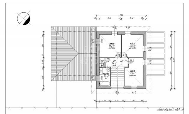
H-004305. Székesfehérvár Vezér utcák városrészben új építésű, csendes és családias övezetében eladó 2db modern kialakítású kétszintes , nappali+4 hálószobás családiház garázzsal.
A környék nyugodt, biztonságos, kedvelt, ideális választás családok számára. Közelben, buszmegálló. bevásárlóközpont. A belváros valamint az autópálya autóval pár perc távolságra található.
Főbb jellemzők:
• Lakótér: 137 m² hasznos alapterület
• Helyiségek: 4 hálószoba, 2 fürdőszoba, amerikai konyhás nappali
• Garázs: önálló, egyállásos (18 m²)
• Terasz: pergolás, 20 m²
A földszinten helyet kap egy különálló WC, fürdővel, 1 hálószoba, valamint egy tágas konyha-étkező-nappali. Az emeleten 3 hálószoba, 1 fürdőszoba kerül kialakításra.
Az ingatlan hőszivattyúval, padló fűtéssel van felszerelve, ami:
• Költséghatékony,
• Kényelmes,
• Modern és esztétikus megoldás.
Az ingatlan mindkét lakása külön kapubejárattal, külön önálló telekterülettel rendelkezik, így biztosítva a teljes magán élettér.
Műszaki paraméterek:
• 3 rétegű műanyag nyílászárók (kívül antracit, belül fehér)
• Hőszivattyús padlófűtés, (Ariston)
• Napelem előkészítés
• falazatok Leier 30 N+F téglafalazat és 10 cm tégla válaszfalak
• 15 cm homlokzati hőszigetelés+20 cm födém hőszigetelés, 20cm lépésálló aljzat szigetelés
• Riasztó, elektromos redőny és kaputelefon előkészítése,
• 3 x 20 Amper áramerősség
• H-tarifás mérőóra
• saját bekerített telekterület (377m2), kerítés
Fontos információk:
Az ár tartalmazza: a két házat elválasztó kerítést, utcafronti kerítést, kaput.
Az ár nem tartalmazza: a konyhabútort, a napelem rendszer telepítését, a kertrendezést, valamint a térburkolat kialakítását.
Eladási irányára: 129,9 Mft / ház
Ha felkeltette érdeklődését, és további részleteket szeretne megtudni, hívja irodánkat bizalommal, éljen ingyenes, személyre szabott hitelügyintézés szolgáltatásunkkal. Segítünk továbbá adásvételhez szükséges ügyvédi közreműködésben, energetikai tanúsítvány, valamint értékbecslés elkészítésében. ...TOVÁBBI, TÖBBEZRES INGATLAN KÍNÁLAT: www.gdn-ingatlan.hu - GDN azonosító: 377997

Hirdetés feltöltve: 2025. 02. 16. Utoljára módosítva: 2025. 11. 02.

5 szobás családi házak ára Székesfehérvárott

Ebből az összehasonlításból megtudhatod, hogyan viszonyul a lakás ára a környékbeli családi házak átlagos árához. Ez nem azt jelenti, hogy ennyivel olcsóbb vagy drágább, mint amennyit a lakás ér, hanem hogy ennyivel tér el a környékbeli átlagtól.

Ennek a m² ára
Székesfehérvár m² ár
948 e Ft
748 e Ft -27%
Ennek az ára
Székesfehérvár átlagár
129.9 M Ft m Ft
155.6 m Ft 17%

Az ingatlan elhelyezkedése

Cím: Székesfehérvár

Eladó családi házak a környékről

Eladó családi ház
Eladó családi ház

Dunaújváros, Petőfi Sándor utca 54

44 M Ft
3 szoba
70 m2
Eladó családi ház
Eladó családi ház

Szabadbattyán

357.518 M Ft
9 + 2 szoba
1053 m2
Eladó családi ház
Eladó családi ház

Mór

110 M Ft
12 szoba
340 m2
Eladó családi ház
Eladó családi ház

Székesfehérvár

64.9 M Ft
5 szoba
144 m2
Eladó családi ház
Eladó családi ház

Lepsény, Róka sétány

64.9 M Ft
5 + 1 szoba
203 m2
Eladó családi ház
Eladó családi ház

Baracska, Határ utca

74.9 M Ft
3 szoba
155 m2
Eladó családi ház
Eladó családi ház

Pusztaszabolcs

143.9 M Ft
4 szoba
149 m2
Eladó családi ház
Eladó családi ház

Mezőfalva

48 M Ft
3 + 2 szoba
133 m2
Eladó családi ház
Eladó családi ház

Székesfehérvár

64.9 M Ft
5 szoba
144 m2
Eladó családi ház
Eladó családi ház

Székesfehérvár

69.9 M Ft
3 szoba
95 m2
Eladó családi ház
Eladó családi ház

Velence

119 M Ft
6 szoba
145 m2
Eladó családi ház
Eladó családi ház

Székesfehérvár

64.9 M Ft
4 szoba
81 m2
Eladó családi ház
Eladó családi ház

Székesfehérvár

119.9 M Ft
5 szoba
135 m2
Eladó családi ház
Eladó családi ház

Székesfehérvár

64.9 M Ft
4 szoba
81 m2
Eladó családi ház
Eladó családi ház

Székesfehérvár

114.9 M Ft
5 szoba
229 m2
Eladó családi ház
Eladó családi ház

Székesfehérvár

69.99 M Ft
4 szoba
113 m2
Eladó családi ház
Eladó családi ház

Székesfehérvár

69.9 M Ft
3 szoba
95 m2
Eladó családi ház
Eladó családi ház

Székesfehérvár

64.9 M Ft
4 szoba
81 m2
Eladó családi ház
Eladó családi ház

Pusztavám

22.9 M Ft
3 szoba
103 m2
Eladó családi ház
Eladó családi ház

Székesfehérvár

68 M Ft
4 szoba
80 m2
Eladó családi ház
Eladó családi ház

Pusztavám

22.9 M Ft
3 szoba
103 m2
Eladó családi ház
Eladó családi ház

Velence

80 M Ft
6 szoba
200 m2
Eladó családi ház
Eladó családi ház

Székesfehérvár

36.5 M Ft
2 szoba
46 m2
Eladó családi ház
Eladó családi ház

Kápolnásnyék, Bem utca

108.675 M Ft
5 szoba
136 m2

Falusi CSOK ingatlanok

Eladó családi ház
Eladó családi ház

Magyarszék

48.5 M Ft
3 + 1 szoba
86 m2
Eladó családi ház
Eladó családi ház

Galgagyörk

69.9 M Ft
3 szoba
110 m2
Eladó családi ház
Eladó családi ház

Szeremle

14.5 M Ft
2 + 1 szoba
75 m2
Eladó sorház
Eladó sorház

Szob

16 M Ft
2 szoba
45 m2
Eladó családi ház
Eladó családi ház

Tiszaalpár

23.9 M Ft
3 szoba
84 m2
Eladó családi ház
Eladó családi ház

Kapoly

27.9 M Ft
3 szoba
65 m2
Eladó családi ház
Eladó családi ház

Vaskút

19 M Ft
3 szoba
225 m2
Eladó családi ház
Eladó családi ház

Tápiószőlős

3.5 M Ft
1 szoba
75 m2