Kedves Felhasználónk! Rendszerfrissítés miatt az oldalunk 2026. február 9-én 12 órától várhatóan 20 óráig nem lesz elérhető. Köszönjük megértésed!
Aerogate Homes

Eladó családi ház
Szeged

+ 8 kép 1/11
112 000 000 Ft112 M Ft 1 131 313 Ft/m2
4 szoba
99 m2
építés éve:2025

Részletes adatok

Telekméret: 450 m2
Fűtés: Egyéb
Energetikai besorolás: Nem adta meg a hirdető

Az OTP Bank lakáshitel ajánlataFizetett hirdetés

+36 70 385
Zaka Péter
Ingatlan Cafe Kft.

Érdekel az OTP Bank kedvezményes lakáshitel ajánlata? *

* A kérdésre „Igen” válasz bejelölése esetén, az „Üzenet küldése” gombra kattintva kijelentem, hogy az OTP Bank Nyrt. Adatkezelési tájékoztatójának tartalmát megismertem és tudomásul vettem.

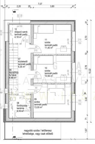
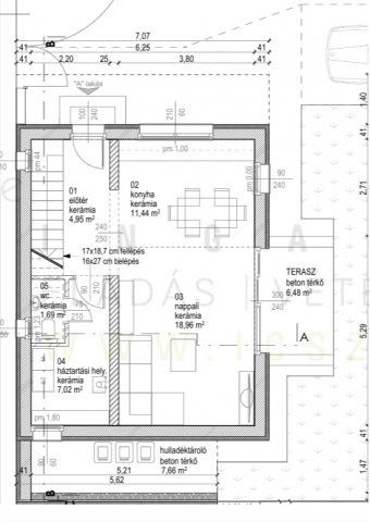
Eladó családi ház leírása

Újépítésű kulcsrakész családiház, leköthető! Alacsony rezsivel kulcsrakész átadással, Szeged-Béketelep frekventált részén!

A ház egy 99 m2-es jó elrendezésű kétszintes ingatlan.
A ház jellemzői:
- Elhelyezkedés: Szege-Béketelep
- Kétszintes nappali + három szoba, élhető tágat terekkel.
- 450 m2-es telken, tégla építésű ház A+ energetikai besorolású
- Tervezett átadás: 2027. dec.
A hirdetett ház 99 m2 (7 m2-es terasszal) Vételár: 112 MFt
Műszaki jellemzők:
- szerkezet Porptherm X-Therm 30 cm téglából+15 cm EPS szigetelés
- fűtés-hűtés hőszivattyúval, padlófűtés, hűtés fan coil-lal
- gázbekötés nincs
- aereco szellőztetés
- energetika: A+
- válaszfalak 10 cm Porotherm X-Therm téglából
- udvari parkolók, garázs megvásárolhatók
- választható szaniterek, ajtók, burkolóanyagok prémium minőségben
- egyedi mérők, hőmennyiségmérők, vizóra, villanyóra
- az ingatlanhoz 7 m2-es terasz tartozik
Az ár kulcsrakész ár, és az ÁFA-t is tartalmazza!
Pontosabb műszaki tartalmat rendelkezésre tudunk bocsátani.

Következő családtámogatások vehetők fel az ingatlanra:
1. CSOK Plusz 2024 - Családi Otthonteremtési Kedvezmény
2. Kamattámogatott CSOK-hitel többgyermekeseknek
3. Babaváró - egy speciális gyermekvállalási támogatás
4. Illetékkedvezmény
5. Otthon Start hitel
A legújabb energetikai követelményeknek megfelelő kivitelezés.
Referenciák és folyamatban lévő építkezés megtekinthető.
További információkért keressen bizalommal!

Hirdetés feltöltve: 2025. 11. 19. Utoljára módosítva: 2026. 01. 13.

4 szobás családi házak ára Szegeden

Ebből az összehasonlításból megtudhatod, hogyan viszonyul a lakás ára a környékbeli családi házak átlagos árához. Ez nem azt jelenti, hogy ennyivel olcsóbb vagy drágább, mint amennyit a lakás ér, hanem hogy ennyivel tér el a környékbeli átlagtól.

Ennek a m² ára
Szeged m² ár
1131 e Ft
860 e Ft -32%
Ennek az ára
Szeged átlagár
112 M Ft m Ft
103.6 m Ft -8%

Az ingatlan elhelyezkedése

Cím: Szeged

Eladó családi házak a környékről

Eladó családi ház
Eladó családi ház

Szeged

149.9 M Ft
10 szoba
310 m2
Eladó családi ház
Eladó családi ház

Szeged

99.99 M Ft
6 szoba
217 m2
Eladó családi ház
Eladó családi ház

Szeged

160 M Ft
5 szoba
187 m2
Eladó családi ház
Eladó családi ház

Röszke

15.9 M Ft
3 szoba
80 m2
Eladó családi ház
Eladó családi ház

Szeged

54.89 M Ft
3 szoba
110 m2
Eladó családi ház
Eladó családi ház

Szeged

198.9 M Ft
4 + 2 szoba
175 m2
Eladó családi ház
Eladó családi ház

Szeged, Alsóváros, Szabadság tér

89.9 M Ft
3 + 1 szoba
100 m2
Eladó családi ház
Eladó családi ház

Szeged

259 M Ft
6 szoba
314 m2
Eladó családi ház
Eladó családi ház

Szeged

54.89 M Ft
3 szoba
110 m2
Eladó családi ház
Eladó családi ház

Szeged

60 M Ft
4 szoba
120 m2
Eladó családi ház
Eladó családi ház

Mórahalom

63 M Ft
3 szoba
94 m2
Eladó családi ház
Eladó családi ház

Szeged

149.9 M Ft
10 szoba
310 m2
Eladó családi ház
Eladó családi ház

Szeged

225 M Ft
5 szoba
203 m2
Eladó családi ház
Eladó családi ház

Makó, Béke utca

115 M Ft
4 szoba
146 m2
Eladó családi ház
Eladó családi ház

Szeged, Újszeged, Radnóti utca

329.9 M Ft
12 + 2 szoba
619 m2
Eladó családi ház
Eladó családi ház

Szeged

195 M Ft
4 szoba
210 m2
Eladó családi ház
Eladó családi ház

Szeged

129.5 M Ft
1 + 3 szoba
122 m2
Eladó családi ház
Eladó családi ház

Röszke

75 M Ft
4 szoba
95 m2
Eladó családi ház
Eladó családi ház

Szeged

249 M Ft
9 szoba
322 m2
Eladó családi ház
Eladó családi ház

Szeged

15.24 M Ft
31 m2
Eladó családi ház
Eladó családi ház

Szeged

225 M Ft
5 szoba
203 m2
Eladó családi ház
Eladó családi ház

Szeged

109 M Ft
2 szoba
980 m2
Eladó családi ház
Eladó családi ház

Hódmezővásárhely, Kishomok, Új-Kishomok

69 M Ft
3 szoba
100 m2
Eladó családi ház
Eladó családi ház

Szeged

125 M Ft
4 szoba
106 m2

Falusi CSOK ingatlanok

Eladó családi ház
Eladó családi ház

Bozsok

290 M Ft
6 szoba
370 m2
Eladó családi ház
Eladó családi ház

Szigliget

299 M Ft
3 szoba
95 m2
Eladó családi ház
Eladó családi ház

Kemeneshőgyész

8 M Ft
2 szoba
60 m2
Eladó családi ház
Eladó családi ház

Jászjákóhalma

23 M Ft
3 szoba
113 m2
Eladó családi ház
Eladó családi ház

Recsk

24.5 M Ft
2 szoba
100 m2
Eladó téglalakás
Eladó téglalakás

Kőröshegy

68 M Ft
2 szoba
65 m2
Eladó téglalakás
Eladó téglalakás

Balatonszemes

119.9 M Ft
2 szoba
81 m2
Eladó családi ház
Eladó családi ház

Újhartyán

89.9 M Ft
4 szoba
99 m2