NapForrás 20 - Buda

Eladó családi ház
Szeged

+ 17 kép 1/20
199 900 000 Ft199.9 M Ft 999 500 Ft/m2
7 + 1 szoba
200 m2
építés éve:1994

Részletes adatok

Telekméret: 1453 m2
Fűtés: Gázkazán
Energetikai besorolás: Nem adta meg a hirdető

Az OTP Bank lakáshitel ajánlataFizetett hirdetés

+36 30 838
Fehér Vivien
referens

Érdekel az OTP Bank kedvezményes lakáshitel ajánlata? *

* A kérdésre „Igen” válasz bejelölése esetén, az „Üzenet küldése” gombra kattintva kijelentem, hogy az OTP Bank Nyrt. Adatkezelési tájékoztatójának tartalmát megismertem és tudomásul vettem.

Eladó családi ház leírása

BÉKÉS, CSENDES KÖRNYEZETBEN MINDEN IGÉNYT KIELÉGÍTŐ CSALÁDI HÁZ + MELLÉKÉPÜLET
NAGYCSALÁDOSOK, ÖSSZEKÖLTÖZŐK, BEFEKTETŐK FIGYELMÉBE!

Szeged-Baktó egyik kedvelt utcájában igényes házak szomszédságában szépen, teljes körűen felújított napfényes, kétszintes, kettő különálló lakrésszel rendelkező családi ház és egy teljes körűen felújított melléképület eladó.

Az épület 1453 m2-es telken helyezkedik el, amely további lehetőséget is rejt magában. A telek hátsó részén tervezett utca megnyitásával 700 m2-es építési telek választható le.

Az épület 1994-ben téglából épült, külső -, belső szigetelést kapott.
Az elmúlt években (2020.) jelentős felújítások történtek, mely során
- korszerűsítették a víz-és elektromos hálózatot ( 3 x 16 A - bővíthető)
- modern hőszigetelt nyílászárók. redőnnyel-, szúnyoghálóval felszereltek
- Baxi kazán, Ariston vízmelegítő
- Gree inverteres klíma
- konyha, fürdő új köntösbe öltözött

A főépület lakótere: 137,71 / 166,32 m2
Az ingatlan elosztása praktikus, világos, jó adottságokkal rendelkezik.
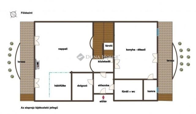
A földszinten található a tágas, napfényes nappali, konyha-étkező, kamra, szoba, hálófülke, zuhanyzós fürdő és tároló.
Fő élettér a földszinti hangulatos, jó fényviszonyokkal rendelkező tágas nappali, hangulatát a kandalló növeli amely téli napokon hozzájárulhat az ünnepi hangulat megteremtéséhez. A konyha-étkezőbe minőségi bútor került beépítésre, gépesített. A nappaliból és a konyha-étkezőből a nyílik 1-1 fedett terasz, mely kiválóan alkalmas társasági életre.

A felső szintre igényes lépcső vezet, ahol amerikai konyha + nappali, 3 külön bejáratú szoba és fürdő került kialakításra. A környezettel való kapcsolatot loggia biztosítja, mely a nappaliból és a szobából is megközelíthető.

A melléképület teljes körű felújítása 2 évvel ezelőtt történt ( szigetelés, vezetékek, nyílászárók)
Lakótere 45 m2, ahol 2 szoba, konyha-étkező, kamra és fürdő került kialakításra.
A fűtésről fatüzelésű kandalló, konvektor valamint inverteres klíma gondoskodik.
A környezettel való kapcsolatot 20 m2-es terasz biztosítja.

Falai festettek, nappali és a szobák parkettával, a többi helyiség járólappal burkolt.
Az ingatlan műszakilag, és esztétikailag kifogástalan állapotban van.
A lakrészek önálló mérőórákkal ( víz, villany, gáz) felszereltek.

Előnyei:
- egyedi gáz cirkó, konvektor, kandalló
- klíma
- nyílászárók hőszigeteltek, szúnyoghálóval, redőnnyel felszereltek
- szigetelt épület
- fúrt kút

A kert szépen rendben tartott, parkosított.
A tökéletességhez a kiépített automata öntözőrendszer is hozzájárul.

A lakók rendelkezésére áll egy utcai bejáratú 16 m2-es könnyűszerkezetes garázs.

Szép, kellemes, zöldövezeti környék, családi házas övezet, jó infrastruktúrával rendelkezik. Az épület előtt kerékpárút húzódik, közelében autóbuszmegálló található.

Ajánlom azoknak, akik csendes, nyugodt környéken keresnek tágas családi otthont.
Ha felkeltette érdeklődését bővebb információért HÍVJON bizalommal!

Hirdetés feltöltve: 2025. 11. 07. Utoljára módosítva: 2025. 12. 24.

Az ingatlan elhelyezkedése

Cím: Szeged

Eladó családi házak a környékről

Eladó családi ház
Eladó családi ház

Tiszasziget

49.9 M Ft
4 szoba
160 m2
Eladó családi ház
Eladó családi ház

Makó, Ráday 9/b

42 M Ft
1 szoba
150 m2
Eladó családi ház
Eladó családi ház

Szeged

220 M Ft
12 + 2 szoba
760 m2
Eladó családi ház
Eladó családi ház

Szeged

225 M Ft
5 szoba
203 m2
Eladó családi ház
Eladó családi ház

Szeged

12.192 M Ft
17 m2
Eladó családi ház
Eladó családi ház

Szeged

37.425 M Ft
3 szoba
75 m2
Eladó családi ház
Eladó családi ház

Mórahalom

63 M Ft
3 szoba
94 m2
Eladó családi ház
Eladó családi ház

Szeged

214 M Ft
5 szoba
203 m2
Eladó családi ház
Eladó családi ház

Szeged, Alsóváros, Szabadság tér

89.9 M Ft
3 + 1 szoba
100 m2
Eladó családi ház
Eladó családi ház

Szeged

125 M Ft
4 szoba
106 m2
Eladó családi ház
Eladó családi ház

Szeged

195 M Ft
4 szoba
210 m2
Eladó családi ház
Eladó családi ház

Szeged

115 M Ft
7 szoba
196 m2
Eladó családi ház
Eladó családi ház

Makó, Béke utca

115 M Ft
4 szoba
146 m2
Eladó családi ház
Eladó családi ház

Szeged

60 M Ft
4 szoba
120 m2
Eladó családi ház
Eladó családi ház

Szeged

149.9 M Ft
10 szoba
310 m2
Eladó családi ház
Eladó családi ház

Szeged

220 M Ft
12 + 2 szoba
760 m2
Eladó családi ház
Eladó családi ház

Szeged

54.89 M Ft
3 szoba
110 m2
Eladó családi ház
Eladó családi ház

Szeged, Alsóváros, Szabadság tér

89.9 M Ft
3 + 1 szoba
100 m2
Eladó családi ház
Eladó családi ház

Szeged

143 M Ft
4 szoba
116 m2
Eladó családi ház
Eladó családi ház

Szeged

225 M Ft
5 szoba
203 m2
Eladó családi ház
Eladó családi ház

Szeged

129.5 M Ft
1 + 3 szoba
122 m2
Eladó családi ház
Eladó családi ház

Hódmezővásárhely, Kishomok, Új-Kishomok

60 M Ft
3 szoba
100 m2
Eladó családi ház
Eladó családi ház

Szeged

259 M Ft
6 szoba
314 m2
Eladó családi ház
Eladó családi ház

Szeged

160 M Ft
5 szoba
187 m2

Falusi CSOK ingatlanok

Eladó családi ház
Eladó családi ház

Zákány, Május 1. utca

39.9 M Ft
2 szoba
112 m2
Eladó családi ház
Eladó családi ház

Hahót

64.9 M Ft
5 szoba
118 m2
Eladó családi ház
Eladó családi ház

Tápióbicske

38 M Ft
3 szoba
50 m2
Eladó családi ház
Eladó családi ház

Jakabszállás

69.99 M Ft
1 + 4 szoba
91 m2
Eladó családi ház
Eladó családi ház

Előszállás

69.9 M Ft
6 szoba
238 m2
Eladó családi ház
Eladó családi ház

Vilonya

71.9 M Ft
5 szoba
105 m2
Eladó családi ház
Eladó családi ház

Egyed

24.9 M Ft
2 + 1 szoba
56 m2
Eladó családi ház
Eladó családi ház

Balatonfenyves

430 M Ft
4 szoba
274 m2