NapForrás 20 - Buda

Eladó családi ház
Szarvaskő

Figyelem!

Ez az ingatlan a 2019.07.01-től induló falusi CSOK által támogatott településen található

+ 17 kép 1/20
160 000 000 Ft160 M Ft 377 358 Ft/m2
6 szoba
424 m2
építés éve:1992

Részletes adatok

Telekméret: 2013 m2
Fűtés: Egyéb
Energetikai besorolás: Nem adta meg a hirdető

Az OTP Bank lakáshitel ajánlataFizetett hirdetés

+36 30 290
Bagi Zsolt
OTP Ingatlanpont Gyöngyös

Érdekel az OTP Bank kedvezményes lakáshitel ajánlata? *

* A kérdésre „Igen” válasz bejelölése esetén, az „Üzenet küldése” gombra kattintva kijelentem, hogy az OTP Bank Nyrt. Adatkezelési tájékoztatójának tartalmát megismertem és tudomásul vettem.

Eladó családi ház leírása

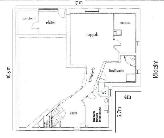
Heves megye, Szarvaskő, rendkívüli adottságokkal rendelkező családi ház eladó. A Makovecz Imre tervei alapján, a 1990-es években épült ingatlan egyedi formavilágával, kialakításával és a környezettel, melyben épült, páratlan lehetőségeket rejt magában. Magáncélra lakóingatlanként, pihenőházként használva vagy szállásadó helyként, illetve rendezvények színhelyeként üzemeltetve is nagyszerű választás. Az épület az elmúlt években felújításon esett át, melynek során törekedtek megtartani jellegzetes építészeti stílusát, tulajdonságait, de modernizálni is. A Bükk lábainál elhelyezkedő település dísze a 2013 nm-en elterülő ingatlan. Az erdősávval szegélyezett területen található egy gondozott kert; dísztó; nyitott, faszerkezetű, jól felszerelt kerti konyha kemencével; nyársaló; egy fémszerkezetes üvegház; továbbá egy medence. A lakóépület 3 szinten helyezkedik el. A legalsó szint külön bejárattal rendelkező, önálló lakrész, melyben nappali, hálószoba, konyha/étkező, fürdőszoba(szaunával, masszázs zuhanykabinnal), WC és előszoba kapott helyet. Ugyanitt kapott helyet a ház gépészeti helyisége is. A középső szinten helyezkedik el a nagyméretű nappali, mely a belső terek közül leginkább hivatott az egyedi stílus közvetítésére üvegkupolájának és faszerkezetes kialakításának köszönhetően. Ezen térhez csatlakozik egy közel 100 nm-es terasz is. A nappaliból nyílóan alakítottak ki egy konyhát, illetve egy WC-t. A legfelső emeleten, a nappalit felülről ölelő folyosón, három lakószoba került kialakításra, melyek közül mindegyik saját fürdőszobát és WC-t kapott. Az épületben külön padló- és fal-fűtés, illetve hűtésrendszer üzemel, továbbá minden szobába klímaberendezéseket telepítettek, valamint szellőztető légrendszert is kiépítettek. A fűtéséről és melegvíz-ellátásról napkollektor és a svájci Alpha InnoTech hőszivattyús levegőkazán gondoskodik. Amennyiben felkeltették figyelmét a képek és a leírtak, szeretne személyesen is meggyőződni azok valóságtartalmáról, kérem, keressen, egyeztessünk időpontot!

Hirdetés feltöltve: 2025. 12. 05. Utoljára módosítva: 2025. 12. 05.

Az ingatlan elhelyezkedése

Cím: Szarvaskő

Eladó ingatlanok a környékről

Eladó családi ház
Eladó családi ház

Szilvásvárad

92 M Ft
4 + 1 szoba
220 m2
Eladó téglalakás
Eladó téglalakás

Hatvan, Horváth Mihály utca

43.8 M Ft
2 szoba
54 m2
Eladó családi ház
Eladó családi ház

Andornaktálya

28.5 M Ft
2 szoba
60 m2
Eladó téglalakás
Eladó téglalakás

Gyöngyös

41.8 M Ft
2 szoba
75 m2
Eladó téglalakás
Eladó téglalakás

Gyöngyös

53 M Ft
3 szoba
77 m2
Eladó családi ház
Eladó családi ház

Szarvaskő

230 M Ft
5 szoba
424 m2
Eladó családi ház
Eladó családi ház

Szarvaskő, Rózsa utca

54.9 M Ft
1 + 3 szoba
140 m2
Eladó téglalakás
Eladó téglalakás

Eger

84.9 M Ft
4 + 1 szoba
127 m2
Eladó téglalakás
Eladó téglalakás

Eger

66 M Ft
3 szoba
99 m2
Eladó téglalakás
Eladó téglalakás

Gyöngyös

34.9 M Ft
2 szoba
58 m2
Eladó családi ház
Eladó családi ház

Eger

159 M Ft
5 + 2 szoba
220 m2
Eladó családi ház
Eladó családi ház

Andornaktálya

42.5 M Ft
3 szoba
115 m2
Eladó családi ház
Eladó családi ház

Andornaktálya

42 M Ft
4 szoba
116 m2
Eladó családi ház
Eladó családi ház

Füzesabony

55 M Ft
5 szoba
180 m2
Eladó családi ház
Eladó családi ház

Bükkszék

44.9 M Ft
3 + 2 szoba
114 m2
Eladó családi ház
Eladó családi ház

Bodony

26.9 M Ft
3 szoba
95 m2
Eladó családi ház
Eladó családi ház

Szarvaskő

160 M Ft
5 szoba
425 m2
Eladó családi ház
Eladó családi ház

Mátraderecske

74 M Ft
4 szoba
200 m2
Eladó családi ház
Eladó családi ház

Gyöngyöstarján

33 M Ft
3 szoba
105 m2
Eladó családi ház
Eladó családi ház

Lőrinci

42.9 M Ft
4 szoba
200 m2
Eladó családi ház
Eladó családi ház

Egercsehi

16 M Ft
2 szoba
63 m2
Eladó családi ház
Eladó családi ház

Fedémes

23 M Ft
2 szoba
74 m2
Eladó családi ház
Eladó családi ház

Ostoros

94.5 M Ft
3 szoba
96 m2
Eladó családi ház
Eladó családi ház

Ostoros

94.5 M Ft
3 szoba
96 m2

Falusi CSOK ingatlanok

Eladó családi ház
Eladó családi ház

Lesencetomaj

67.9 M Ft
3 szoba
90 m2
Eladó családi ház
Eladó családi ház

Mikepércs

59.99 M Ft
4 szoba
81 m2
Eladó téglalakás
Eladó téglalakás

Rétság

44.9 M Ft
2 szoba
55 m2
Eladó családi ház
Eladó családi ház

Zalaapáti, Bocsota

25 M Ft
2 szoba
55 m2
Eladó családi ház
Eladó családi ház

Tápszentmiklós

64.9 M Ft
5 szoba
110 m2
Eladó családi ház
Eladó családi ház

Ceglédbercel

95 M Ft
6 szoba
220 m2
Eladó családi ház
Eladó családi ház

Tokod

89 M Ft
6 szoba
187 m2
Eladó családi ház
Eladó családi ház

Ónod, Kossuth út 10

27.499 M Ft
3 + 2 szoba
120 m2

Falusi CSOK ingatlanok

Eladó családi ház
Eladó családi ház

Vajszló

18 M Ft
2 szoba
91 m2
Eladó családi ház
Eladó családi ház

Emőd

29.9 M Ft
2 szoba
75 m2
Eladó családi ház
Eladó családi ház

Sükösd

18.5 M Ft
3 szoba
89 m2
Eladó családi ház
Eladó családi ház

Porpác

24.9 M Ft
3 szoba
73 m2
Eladó családi ház
Eladó családi ház

Tass

6.999 M Ft
1 szoba
40 m2
Eladó családi ház
Eladó családi ház

Örkény

49.5 M Ft
5 szoba
100 m2
Eladó családi ház
Eladó családi ház

Ádánd

53.5 M Ft
6 szoba
180 m2
Eladó családi ház
Eladó családi ház

Ónod, Kossuth út 10

27.499 M Ft
3 + 2 szoba
120 m2