Avico Greentop

Eladó családi ház
Szár

+ 17 kép 1/20
179 000 000 Ft179 M Ft 957 219 Ft/m2
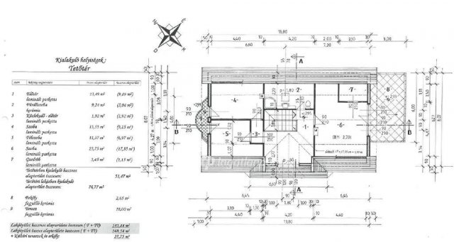
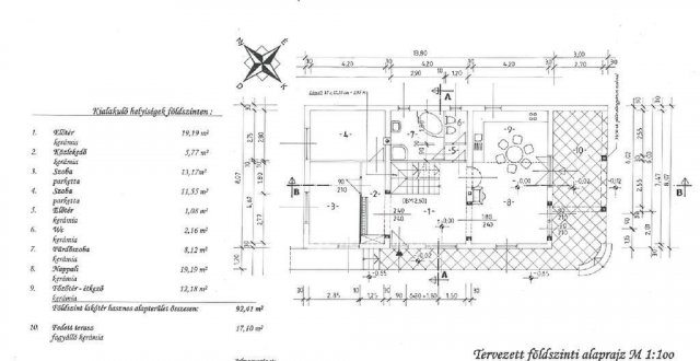
5 + 1 szoba
187 m²
építés éve:2012

Részletes adatok

Telekméret: 1895 m2
Fűtés: Gázkazán
Komfort: Duplakomfortos
Energetikai besorolás: Nem adta meg a hirdető

Az OTP Bank lakáshitel ajánlataFizetett hirdetés

+36 70 681
Pap Éva Zsuzsanna
OTPip - Érd Bajcsy-Zsilinszky út 160 - OTP Ingatlanpont Iroda

Érdekel az OTP Bank kedvezményes lakáshitel ajánlata? *

* A kérdésre „Igen” válasz bejelölése esetén, az „Üzenet küldése” gombra kattintva kijelentem, hogy az OTP Bank Nyrt. Adatkezelési tájékoztatójának tartalmát megismertem és tudomásul vettem.

Eladó családi ház leírása

Eladó Szár településen tágas 187 m2 kétszintes családi ház napelemes rendszerrel + melléképület hatalmas 1895 m2 telken

Szár Fejér megyében található, Budapest központjától mért távolság kb. 35-45 km.
Jó közlekedési kapcsolatok: rendszeres autóbuszjáratok a környező városok felé, a közeli nagyobb települések (pl. Bicske, Zsámbék) rövid autóúttal elérhetők.
Közösségi szolgáltatások: helyi óvoda, általános iskola, alapvető boltok és szolgáltatások a faluban, egészségügyi alapellátás és további üzletek a közeli városokban.
Természeti és szabadidős lehetőségek: nyugodt, zöld környezet, kirándulási és kirándulóhelyek a környéken ideális családoknak és természetkedvelőknek.
Kiváló elhelyezkedésű, rendezett telken fekvő, két szintes családi ház napelemes rendszerrel, alacsony rezsivel, korszerű megoldásokkal rendelkezik.
A szigetelt minőségi nyilászárókkal elátott ház tágas, világos helyiségekkel, kényelmes nappalival, külön étkezővel és több hálószobával.
A fő fürdőszoba modern letisztult teljekörűen fel lett újítva.
A telek része egy praktikus melléképület mely saját fűtéssel, konyhával és mellékhelyiséggel is rendelkezik valamit egy hatalmas gépkocsi tárolóval.
A kínálatunkból választott ingatlan finanszíroz ásához kedvezményes hitel- és lízingkonstrukciókat kínálunk. Az adásvételi szerződés megkötéséhez igény szerint megbízható ügyvédi közreműködést biztosítunk, és segítséget nyújtunk az adásvételhez kapcsolódó ügyek intézéséhez. Amennyiben felkeltettem érdeklődését, keressen bizalommal, akár hétvégén is.
Referenciaszám: M320327

Az energetikai tanúsítvány készítése folyamatban van, amint rendelkezésre áll, úgy azzal a hirdetés frissítésre kerül.

Hirdetés feltöltve: 2026. 04. 08. Utoljára módosítva: 2026. 05. 20.

Az ingatlan elhelyezkedése

Cím: Szár

Eladó ingatlanok a környékről

Csákvár, Kossuth utca
Eladó családi ház

Csákvár

76 M Ft
1 szoba
181 m²
Bicske, Nincs utca
Eladó telek

Bicske

9.6 M Ft
1328 m²
Újbarok
Eladó telek

Újbarok

39.9 M Ft
6600 m²
0 m²
Szár
Eladó családi ház

Szár

99 M Ft
5 szoba
100 m²
Perkáta
Eladó családi ház

Perkáta

50 M Ft
3 szoba
100 m²
Szár
Eladó családi ház

Szár

449 M Ft
6 szoba
350 m²
Óbarok
Eladó családi ház

Óbarok

53 M Ft
2 szoba
80 m²
Aba
Eladó családi ház

Aba

66.999 M Ft
3 szoba
70 m²
Szár
Eladó családi ház

Szár

60 M Ft
2 szoba
110 m²
Etyek
Eladó telek

Etyek

52.9 M Ft
3733 m²
0 m²
Székesfehérvár
Eladó családi ház

Székesfehérvár

69.9 M Ft
3 szoba
95 m²
Felcsút, Rákóczi Ferenc utca
Eladó családi ház

Felcsút

32 M Ft
2 + 1 szoba
55 m²
Ercsi
Eladó családi ház

Ercsi

40 M Ft
2 szoba
71 m²
Martonvásár
Eladó téglalakás

Martonvásár

40 M Ft
3 szoba
74 m²
Isztimér
Eladó telek

Isztimér

2.7 M Ft
2482 m²
0 m²
Szár, József Attila utca
Eladó családi ház

Szár

41 M Ft
2 szoba
68 m²
Iváncsa, Táncsics Mihály utca
Eladó családi ház

Iváncsa

86 M Ft
4 szoba
120 m²
Dunaújváros
Eladó téglalakás

Dunaújváros

89 M Ft
4 szoba
101 m²
Aba
Eladó telek

Aba

8.8 M Ft
900 m²
0 m²
Dunaújváros, Tavasz
Eladó panellakás

Dunaújváros

32.5 M Ft
1 szoba
35 m²
Vértesacsa
Eladó családi ház

Vértesacsa

86 M Ft
3 + 1 szoba
123 m²
Pusztaszabolcs
Eladó családi ház

Pusztaszabolcs

79.9 M Ft
4 szoba
92 m²
Velence
Eladó családi ház

Velence

74.7 M Ft
4 szoba
125 m²
Velence
Eladó családi ház

Velence

80 M Ft
6 szoba
200 m²

Falusi CSOK ingatlanok

Szabadbattyán
Eladó családi ház

Szabadbattyán

79.6 M Ft
4 szoba
101 m²
Tápiószőlős
Eladó családi ház

Tápiószőlős

39.9 M Ft
4 szoba
120 m²
Verseg
Eladó családi ház

Verseg

69.9 M Ft
4 szoba
0 m²
Sződ
Eladó családi ház

Sződ

102.9 M Ft
4 szoba
92 m²
Dunaegyháza
Eladó családi ház

Dunaegyháza

29.49 M Ft
3 szoba
70 m²
Törtel
Eladó családi ház

Törtel

32 M Ft
2 szoba
67 m²
Csurgó
Eladó családi ház

Csurgó

27 M Ft
3 szoba
80 m²
Újhartyán
Eladó családi ház

Újhartyán

59.9 M Ft
4 szoba
75 m²