NapForrás 20 - Buda

Eladó családi ház
Szada

+ 12 kép 1/15
165 000 000 Ft165 M Ft 654 762 Ft/m2
6 + 2 szoba
252 m2
építés éve:2005

Részletes adatok

Telekméret: 2020 m2
Fűtés: Gázkazán
Energetikai besorolás: Nem adta meg a hirdető

Az OTP Bank lakáshitel ajánlataFizetett hirdetés

+36 70 423
Hackenberger Rita
Szigetszentmiklós OTP Ip

Érdekel az OTP Bank kedvezményes lakáshitel ajánlata? *

* A kérdésre „Igen” válasz bejelölése esetén, az „Üzenet küldése” gombra kattintva kijelentem, hogy az OTP Bank Nyrt. Adatkezelési tájékoztatójának tartalmát megismertem és tudomásul vettem.

Eladó családi ház leírása

ÁLOMOTTHON SZADÁN, ÓRIÁSI TELEKKEL ÉS KÉTGENERÁCIÓS LEHETŐSÉGGEL!

Szadán, Budapest közelségében eladó egy igazán különleges, tágas családi ház hatalmas telekkel ? ha nyugalmat és teret keres, ez az ingatlan az Öné lehet!

Kertvárosias, csendes lakóövezetben kínálunk megvételre egy 2020 m2-es telken álló, 252 m2-es, kétszintes, önálló, körbejárható családi házat, amely minden szempontból a kényelmet és a minőséget szolgálja.

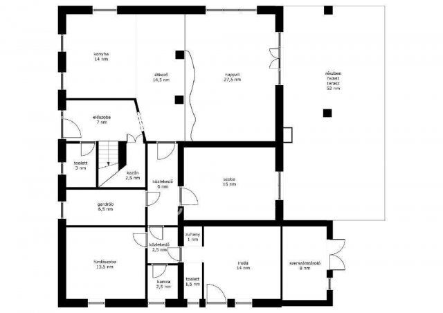
Már az első pillanatban érezhető a tér nagysága és a ház levegős, napfényes hangulata. 6 egész és 2 fél szoba, valamint a 56 m2-es, amerikai konyhás nappali-étkező tökéletes elrendezést biztosít akár nagyobb családnak, akár a tágas tereket kedvelőknek. A praktikumot tovább növeli a külön műhely/tároló helyiség.

Az emeleti egyik szobában külön konyha és saját, külön bejáratú fürdőszoba is ki lett alakítva, így az otthon ideális idősebb vagy fiatalabb családtaggal való együttélésre, akár félig szeparált lakóegységként is használható.
Az alaprajz kiválóan szemlélteti a helyiségek logikus elosztását és nagy méretű kialakítását.

A ház fűtése és meleg víz ellátása kombi cirkó gázkazánnal történik, padlófűtéssel és radiátorokkal, így egész évben kellemes hőérzet biztosított. A klímaberendezés nyáron is ideális hőmérsékletet garantál. A közművek 2 lakásos kontingenssel rendelkeznek, ami jelentősen csökkenti a rezsiköltségeket.

A hatalmas, gondozott kert valódi családi paradicsom: automata öntözőrendszerrel, zöldellő gyepfelülettel és kiépített gyerekjátszótérrel. A telek mérete miatt a ház teljesen körbejárható, így kivételes privát életteret és nyugalmat biztosít.

Ha egy olyan otthont keres, amely egyszerre modern, kényelmes, privát, biztonságos és a fővároshoz mégis közel helyezkedik el, akkor ezt a házat mindenképp látnia kell!

Hívjon bizalommal még ma ? ekkora telekkel és ilyen adottságokkal rendelkező ingatlan ritka kincs Szadán!

Hirdetés feltöltve: 2026. 02. 11.

Az ingatlan elhelyezkedése

Cím: Szada

Eladó családi házak a környékről

Eladó családi ház
Eladó családi ház

Szada

49.49 M Ft
2 szoba
50 m2
Eladó családi ház
Eladó családi ház

Zebegény

69.9 M Ft
6 szoba
245 m2
Eladó családi ház
Eladó családi ház

Tápiószele

18.9 M Ft
4 szoba
68 m2
Eladó családi ház
Eladó családi ház

Budakeszi

130 M Ft
5 szoba
30 m2
Eladó családi ház
Eladó családi ház

Szada

296 M Ft
5 szoba
250 m2
Eladó családi ház
Eladó családi ház

Szada

159 M Ft
4 szoba
194 m2
Eladó családi ház
Eladó családi ház

Szada

149.9 M Ft
5 + 2 szoba
220 m2
Eladó családi ház
Eladó családi ház

Kerepes

81.99 M Ft
5 szoba
102 m2
Eladó családi ház
Eladó családi ház

Nagykáta

130 M Ft
3 szoba
203 m2
Eladó családi ház
Eladó családi ház

Szada, Vasút utca

130 M Ft
3 szoba
200 m2
Eladó családi ház
Eladó családi ház

Budakeszi, Budakeszi kertváros

140 M Ft
2 szoba
55 m2
Eladó családi ház
Eladó családi ház

Tápiószentmárton

16.5 M Ft
3 szoba
50 m2
Eladó családi ház
Eladó családi ház

Érd

164.9 M Ft
5 szoba
192 m2
Eladó családi ház
Eladó családi ház

Szada

195 M Ft
5 szoba
380 m2
Eladó családi ház
Eladó családi ház

Tápiószentmárton

48 M Ft
5 szoba
180 m2
Eladó családi ház
Eladó családi ház

Remeteszőlős

399.9 M Ft
5 + 2 szoba
260 m2
Eladó családi ház
Eladó családi ház

Budakeszi, Makkosmária

100 M Ft
1 szoba
10 m2
Eladó családi ház
Eladó családi ház

Szada

55 M Ft
4 szoba
68 m2
Eladó családi ház
Eladó családi ház

Tápiószele

11.9 M Ft
3 szoba
62 m2
Eladó családi ház
Eladó családi ház

Szada

97.9 M Ft
5 szoba
145 m2
Eladó családi ház
Eladó családi ház

Tápiószele

32.9 M Ft
4 szoba
200 m2
Eladó családi ház
Eladó családi ház

Érd, Érdliget - Kutyavár, Érd-liget

230 M Ft
7 szoba
280 m2
Eladó családi ház
Eladó családi ház

Szada

124.5 M Ft
4 szoba
116 m2
Eladó családi ház
Eladó családi ház

Kerepes

199 M Ft
6 szoba
360 m2

Falusi CSOK ingatlanok

Eladó családi ház
Eladó családi ház

Bár

89.5 M Ft
4 + 1 szoba
172 m2
Eladó családi ház
Eladó családi ház

Tápióság

125 M Ft
4 szoba
130 m2
Eladó családi ház
Eladó családi ház

Újlengyel

59.9 M Ft
3 szoba
73 m2
Eladó családi ház
Eladó családi ház

Jászalsószentgyörgy, Fő út 1

14.09 M Ft
1 + 1 szoba
116 m2
Eladó családi ház
Eladó családi ház

Magyarszék

48.5 M Ft
3 + 1 szoba
86 m2
Eladó családi ház
Eladó családi ház

Háromfa, Kossuth

22.4 M Ft
139 m2
Eladó családi ház
Eladó családi ház

Kenyeri

21.8 M Ft
2 szoba
75 m2
Eladó családi ház
Eladó családi ház

Bugac

170 M Ft
187 m2