NapForrás 20 - Buda

Eladó családi ház
Süttő

+ 8 kép 1/11
63 000 000 Ft63 M Ft 434 483 Ft/m2
4 szoba
145 m2

Részletes adatok

Állapot: Átlagos
Telekméret: 1608 m2
Fűtés: Gázkonvektor
Parkolás: Garázs
Közmű: Víz, Gáz, Villany, Csatorna
Energetikai besorolás: Nem adta meg a hirdető

Az OTP Bank lakáshitel ajánlataFizetett hirdetés

+36 30 398
dr. Meszes-Bábszki Fanni
FANNIngatlan

Érdekel az OTP Bank kedvezményes lakáshitel ajánlata? *

* A kérdésre „Igen” válasz bejelölése esetén, az „Üzenet küldése” gombra kattintva kijelentem, hogy az OTP Bank Nyrt. Adatkezelési tájékoztatójának tartalmát megismertem és tudomásul vettem.

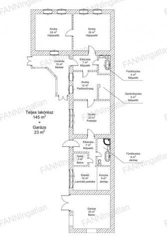
Eladó családi ház leírása

Eladó kétgenerációs családi ház Süttőn!

Süttő egy csendes kis utcájában eladó egy kétgenerációs, de egyben is használható családi
ház.
A ház jelenleg 2 külön bejáratú lakrésszel rendelkezik az alábbiak szerint:
1. lakrész:
- veranda
- előszoba
- 2 egymásból nyíló szoba
- fürdőszoba
- mini konyha
- különálló szoba
2. lakrész:
- előszoba
- fürdőszoba
- spejz
- konyha
- étkező
- szoba
A két lakrész jelenleg egy ajtóval van elválasztva, de könnyedén falazható igény szerint.
A ház fő falai kő falazatúak, a válaszfalak pedig téglából vannak. A kültéri-beltéri nyílászárók
fából készültek, a tetőt pedig cserép fedi.
A fűtésről gázkonvektor, valamint cserépkályha gondoskodik, a melegvizet villanybojler
illetve gázbojler szolgáltatja.
Az épülethez tartozik egy 23 m2 területű garázs, mely igény esetén akár a 2. lakrészhez is
bővíthető, valamint az épület egy része alatt pince is található.
A kapun belépve egy zárt, intim, sík udvar fogad minket. A garázs mögötti kert enyhén
emelkedik, annak a végéből Duna-panoráma tárul elénk. Az udvar középső részén
gazdasági épületek helyezkednek el.
A kertben találhatók gyümölcsfák.
Az ingatlan Falusi CSOK-ra alkalmas!

Hirdetés feltöltve: 2026. 01. 26. Utoljára módosítva: 2026. 01. 26.

Az ingatlan elhelyezkedése

Cím: Süttő

Eladó ingatlanok a környékről

Eladó családi ház
Eladó családi ház

Süttő

55.9 M Ft
3 szoba
110 m2
Eladó családi ház
Eladó családi ház

Komárom

135 M Ft
7 + 2 szoba
254 m2
Eladó családi ház
Eladó családi ház

Dorog

43 M Ft
1 + 1 szoba
43 m2
Eladó családi ház
Eladó családi ház

Esztergom

157 M Ft
3 + 1 szoba
190 m2
Eladó családi ház
Eladó családi ház

Tatabánya

180 M Ft
8 szoba
510 m2
Eladó családi ház
Eladó családi ház

Kesztölc

129.9 M Ft
8 szoba
210 m2
Eladó téglalakás
Eladó téglalakás

Dorog

77.4 M Ft
3 szoba
71 m2
Eladó családi ház
Eladó családi ház

Esztergom

128 M Ft
6 szoba
240 m2
Eladó családi ház
Eladó családi ház

Tatabánya

127.89 M Ft
39074 m²
Eladó családi ház
Eladó családi ház

Tardos

35 M Ft
5 szoba
130 m2
Eladó családi ház
Eladó családi ház

Süttő

52.99 M Ft
3 szoba
94 m2
Eladó családi ház
Eladó családi ház

Komárom

64.95 M Ft
3 szoba
73 m2
Eladó családi ház
Eladó családi ház

Tatabánya, Alsógalla

57 M Ft
4 + 1 szoba
205 m2
Eladó családi ház
Eladó családi ház

Süttő

71.5 M Ft
4 szoba
193 m2
Eladó családi ház
Eladó családi ház

Süttő, Ligettér utca

52.99 M Ft
3 szoba
94 m2
Eladó családi ház
Eladó családi ház

Süttő

63 M Ft
4 szoba
145 m2
Eladó mezogazdasagi ingatlan
Eladó mezogazdasagi ingatlan

Esztergom

4.5 M Ft
1971 m²
1971 m2
Eladó családi ház
Eladó családi ház

Szomód

65 M Ft
6 szoba
240 m2
Eladó családi ház
Eladó családi ház

Süttő

52.99 M Ft
3 szoba
94 m2
Eladó családi ház
Eladó családi ház

Vértesszőlős

15.99 M Ft
2 szoba
80 m2
Eladó családi ház
Eladó családi ház

Dorog

43 M Ft
1 + 1 szoba
43 m2
Eladó családi ház
Eladó családi ház

Süttő

71.5 M Ft
4 szoba
193 m2
Eladó családi ház
Eladó családi ház

Lábatlan

27.9 M Ft
2 szoba
65 m2
Eladó családi ház
Eladó családi ház

Oroszlány

360 M Ft
27 szoba
478 m2

Falusi CSOK ingatlanok

Eladó családi ház
Eladó családi ház

Tésenfa, Kossuth utca 23/a

5.55 M Ft
1 + 1 szoba
109 m2
Eladó családi ház
Eladó családi ház

Balatonszárszó

178 M Ft
6 szoba
260 m2
Eladó családi ház
Eladó családi ház

Somogygeszti

38.6 M Ft
3 + 1 szoba
98 m2
Eladó családi ház
Eladó családi ház

Lesenceistvánd

75 M Ft
2 szoba
90 m2
Eladó családi ház
Eladó családi ház

Verseg

54 M Ft
2 szoba
92 m2
Eladó családi ház
Eladó családi ház

Szigetbecse

69.9 M Ft
4 szoba
70 m2
Eladó családi ház
Eladó családi ház

Fülöpszállás

299 M Ft
14 + 5 szoba
680 m2
Eladó családi ház
Eladó családi ház

Gyömöre

45.99 M Ft
2 szoba
118 m2