Seven Pearl

Eladó családi ház
Sülysáp

+ 6 kép 1/9
74 900 000 Ft74.9 M Ft 624 167 Ft/m2
5 szoba
120 m²
építés éve:2026

Részletes adatok

Telekméret: 1079 m2
Fűtés: Egyéb
Energetikai besorolás: Nem adta meg a hirdető

Az OTP Bank lakáshitel ajánlataFizetett hirdetés

3629998844
Kun-Szabóné Csabai Evelin
referens

Érdekel az OTP Bank kedvezményes lakáshitel ajánlata? *

* A kérdésre „Igen” válasz bejelölése esetén, az „Üzenet küldése” gombra kattintva kijelentem, hogy az OTP Bank Nyrt. Adatkezelési tájékoztatójának tartalmát megismertem és tudomásul vettem.

Eladó családi ház leírása

SÜLYSÁP FREKVENTÁLT RÉSZÉN ÚJ ÉPÍTÉSŰ, 4 SZOBÁS SORHÁZ SAJÁT TELEKKEL!
HÁTSÓ INGATLAN NYUGALOM ÉS INTIMITÁS!

Sülysápon, csendes utcában, egy 1079 m²-es telken kínálok megvételre új építésű, nettó 100 m²-es, kiváló elosztású családi házat.

A hátsó lakáshoz 550m² kizárólagos használatú kert tartozik, amely tökéletes választás pihenéshez, kerti sütögetéshez, medencéhez vagy akár mobilgarázs kialakításához.

MŰSZAKI TARTALOM MINŐSÉG, AMI HOSSZÚ TÁVRA SZÓL

30 cm-es nútféderes tégla falazat

Fa födém

Antracit betoncserép fedés

15 cm EPS homlokzati szigetelés

10 cm Austrotherm padlószigetelés

25 cm ásványgyapot födémszigetelés

6 légkamrás, 3 rétegű üvegezésű nyílászárók

MODERN, GAZDASÁGOS FŰTÉS

10 kW-os monoblokkos hőszivattyú

Teljes körű padlófűtés

EXTRA KÉNYELEM

17 m²-es nyitott terasz

Riasztó- és kapumozgató elektronika előkészítés

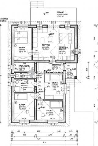
PRAKTIKUS, CSALÁDBARÁT ELRENDEZÉS

4 tágas szoba

Amerikai konyhás nappali

Fürdőszoba + külön WC

Külön háztartási helyiség

Átgondolt, élhető alaprajz

VÁLASZTHATÓ MŰSZAKI TARTALOM (KÖLTSÉGKERETEN BELÜL)

Hideg- és melegburkolatok: 3.000 Ft/m²-ig

Csaptelepek: 15.000 Ft/db

Kád vagy zuhany: 40.000 Ft

Beltéri ajtók: 35.000 Ft/db

Falsík mögötti WC rendszer
Magasabb kategória is választható, a különbözet ráfizetésével.

ELEKTROMOS KIÉPÍTÉS

Szobákban: 3-3 konnektor

Nappaliban: 4 konnektor + internet + kábel TV

Konyhában: 6 konnektor

Helyiségenként világítási kiállás

Kábel TV előkészítés

MEGBÍZHATÓ KIVITELEZŐ

A kivitelező Kókán több mint 20 ingatlant épített, referenciaházak komoly érdeklődés esetén megtekinthetők.

Várható átadás: 2026. AUGUSZTUS

Hívjon bizalommal!
Nézzük meg együtt leendő ÚJ OTTHONÁT!
Független hitelügyintézővel is segítem a vásárlást.

Referencia szám: HZ033547-ZE

Hirdetés feltöltve: 2026. 03. 03. Utoljára módosítva: 2026. 04. 03.

5 szobás családi házak ára Sülysápon

Ebből az összehasonlításból megtudhatod, hogyan viszonyul a lakás ára a környékbeli családi házak átlagos árához. Ez nem azt jelenti, hogy ennyivel olcsóbb vagy drágább, mint amennyit a lakás ér, hanem hogy ennyivel tér el a környékbeli átlagtól.

Ennek a m² ára
Sülysáp m² ár
624 e Ft
596 e Ft -5%
Ennek az ára
Sülysáp átlagár
74.9 M Ft m Ft
91.6 m Ft 18%

Az ingatlan elhelyezkedése

Cím: Sülysáp

Eladó családi házak a környékről

Sülysáp
Eladó családi ház

Sülysáp

74.5 M Ft
3 szoba
122 m²
Budakeszi
Eladó családi ház

Budakeszi

130 M Ft
5 szoba
30 m²
Budaörs
Eladó családi ház

Budaörs

400 M Ft
12 szoba
583 m²
Sülysáp
Eladó családi ház

Sülysáp

36 M Ft
3 szoba
39 m²
Érd, Érdliget - Kutyavár, Érd-liget
Eladó családi ház

Érd

230 M Ft
7 szoba
280 m²
Sülysáp
Eladó családi ház

Sülysáp

38.99 M Ft
3 szoba
75 m²
Remeteszőlős
Eladó családi ház

Remeteszőlős

399.9 M Ft
5 + 2 szoba
260 m²
Sülysáp
Eladó családi ház

Sülysáp

44.9 M Ft
3 + 1 szoba
100 m²
Sülysáp
Eladó családi ház

Sülysáp

69.9 M Ft
4 szoba
110 m²
Kerepes
Eladó családi ház

Kerepes

199 M Ft
6 szoba
360 m²
Sülysáp
Eladó családi ház

Sülysáp

44.9 M Ft
3 + 1 szoba
100 m²
Sülysáp, Kossuth Lajos utca
Eladó családi ház

Sülysáp

31.7 M Ft
1 szoba
32 m²
Budakeszi, Budakeszi kertváros
Eladó családi ház

Budakeszi

229 M Ft
10 szoba
450 m²
Sülysáp
Eladó családi ház

Sülysáp

74.5 M Ft
3 szoba
122 m²
Sülysáp
Eladó családi ház

Sülysáp

31.9 M Ft
2 szoba
57 m²
Sülysáp
Eladó családi ház

Sülysáp

79.9 M Ft
3 szoba
122 m²
Sülysáp
Eladó családi ház

Sülysáp

52.9 M Ft
3 szoba
67 m²
Tápiószentmárton
Eladó családi ház

Tápiószentmárton

48 M Ft
5 szoba
180 m²
Tápiógyörgye
Eladó családi ház

Tápiógyörgye

19.9 M Ft
3 szoba
65 m²
Sülysáp
Eladó családi ház

Sülysáp

44.9 M Ft
3 + 1 szoba
100 m²
Zebegény
Eladó családi ház

Zebegény

69.9 M Ft
6 szoba
245 m²
Tápiószele
Eladó családi ház

Tápiószele

32.9 M Ft
4 szoba
200 m²
Sülysáp
Eladó családi ház

Sülysáp

31.9 M Ft
2 szoba
57 m²
Dunakeszi
Eladó családi ház

Dunakeszi

250 M Ft
4 szoba
180 m²

Falusi CSOK ingatlanok

Magyarszék
Eladó családi ház

Magyarszék

48.5 M Ft
3 + 1 szoba
86 m²
Onga
Eladó családi ház

Onga

52.9 M Ft
5 szoba
110 m²
Ábrahámhegy
Eladó családi ház

Ábrahámhegy

139 M Ft
4 szoba
106 m²
Tápiógyörgye
Eladó családi ház

Tápiógyörgye

24.99 M Ft
6 + 1 szoba
153 m²
Bakóca
Eladó családi ház

Bakóca

500 M Ft
13 szoba
1860 m²
Újlengyel
Eladó ikerház

Újlengyel

78 M Ft
4 szoba
88 m²
Balatonszemes
Eladó téglalakás

Balatonszemes

119.9 M Ft
2 szoba
81 m²
Úrkút
Eladó családi ház

Úrkút

94.9 M Ft
4 szoba
186 m²