Astora Márvány8

Eladó családi ház
Sóskút

+ 12 kép 1/15
100 000 000 Ft100 M Ft 666 667 Ft/m2
4 szoba
150 m2
építés éve:1986

Részletes adatok

Állapot: Felújítandó
Telekméret: 902 m2
Fűtés: Egyéb
Energetikai besorolás: Nem adta meg a hirdető
Zenga Premier

Friss hirdetések, amiket nem találsz meg más ingatlankereső portálon.

Fedezd fel elsőként a Zenga Premier címkés eladó ingatlanokat!

További részletek a zenga.hu-n

Az OTP Bank lakáshitel ajánlataFizetett hirdetés

+36 20 262
Novák Ildikó
referens

Érdekel az OTP Bank kedvezményes lakáshitel ajánlata? *

* A kérdésre „Igen” válasz bejelölése esetén, az „Üzenet küldése” gombra kattintva kijelentem, hogy az OTP Bank Nyrt. Adatkezelési tájékoztatójának tartalmát megismertem és tudomásul vettem.

Eladó családi ház leírása

Sóskúton mesébe illő adottságokkal rendelkező családiház várja új lakóit. A kert végében lágyan csordogáló Benta-patak adja a telek különleges, megnyugtató atmoszféráját.
A házba az épület elején és oldalán is van bejárat. Az oldalsó bejáraton belépve egy előszobába érkezünk. Az előszobából a nappali fogad, amely folyamatos fényáradatban úszik - ablakai kelet, dél és dél-nyugat irányból kapják a fényt.
A ház alatt egy igazi időutazás bújik meg: az 1883-ban épült pince, benne a saját, fúrt kúttal, amely csak arra vár, hogy újra életre keltsék. A pince eredetileg zöldség, gyümölcs téli tartására, valamint boros hordók tárolására szolgált. A hűvös pincetér felújítás után tökéletes lehet újra borospinceként, hobbyhelyiségként vagy akár hangulatos borkóstolók hozzá illő színtereként.
A nappali szinteltolásos kialakítása meghitt, otthonos hangulatot teremt. Itt közvetlen rákapcsolódási lehetőség van az épület kéményére, ami lehetővé teszi akár kandalló, vagy látvány-kályha elhelyezését.
A nappali nyitott közlekedővel kapcsolódik az étkezőhöz és a konyhához, amelyhez praktikus spejz is tartozik.
A földszinten található továbbá egy káddal és zuhanyzóval is ellátott fürdőszoba, WC-vel, mosdóval, valamint van egy külön bejáratú második WC is.
A nappaliból fa lépcsőn jutunk fel az emeletre, ahol három hálószoba kapott helyet és egy kialakításra/befejezésre váró fürdőszoba.
A hálószobák közül kettő teraszkapcsolatos, a nagyobb háló erkélyéről olyan panoráma tárul eléd a Benta-völgyre, hogy minden reggel ajándéknak érzed majd.
Az emeleten egy további, vízkiállással rendelkező helyiség is van, amely eredetileg második fürdőszobának készült.
A második emeleten a padlás van, mely tárolóhelyiségként is használható.

A ház kétféle központi fűtéssel rendelkezik: 1. gázkazán 2. vegyestüzelésű kazán (fa, szén), A szobák fűtését masszív vasradiátorok adják.
A telek 902 nm, ősfák, gyümölcsfák,körte, szilva, szederfa, selyemakác és a patak közelsége olyan békét áraszt, amit ritkán találni.
Kiváló hely hobbikert kialakítására, pihenésre vagy gyerekeknek biztonságos játszóparadicsomnak.

Fontos megjegyzés:
A házat fedő palatető még funkcionál, ám cserére szorul. Ez remek lehetőség arra, hogy új tulajdonosa saját ízlésére szabja a ház koronáját. A ház nem rendelkezik külső szigeteléssel, tégla falakkal készült. A födém betonkefnis.
A ház 1986-ban épült. A fürdőszoba az akkori kornak megfelelően készült. Fa keretes ablakok, fa ajtók vannak a házban.
A ház megtekinthető a hét bármely napján és akár azonnal költözhető.

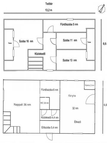
Telek méret: 902 nm
Ház földszint: 84 nm
1. emelet: 66 nm
2. emelet: padlástér
Pince: 23 nm
Az alaprajz tájékoztató jellegű!

Hirdetés feltöltve: 2025. 12. 15. Utoljára módosítva: 2025. 12. 15.

4 szobás családi házak ára Sóskúton

Ebből az összehasonlításból megtudhatod, hogyan viszonyul a lakás ára a környékbeli családi házak átlagos árához. Ez nem azt jelenti, hogy ennyivel olcsóbb vagy drágább, mint amennyit a lakás ér, hanem hogy ennyivel tér el a környékbeli átlagtól.

Ennek a m² ára
Sóskút m² ár
667 e Ft
846 e Ft 21%
Ennek az ára
Sóskút átlagár
100 M Ft m Ft
101.1 m Ft 1%

Az ingatlan elhelyezkedése

Cím: Sóskút

Eladó családi házak a környékről

Eladó családi ház
Eladó családi ház

Budakeszi, Budakeszi kertváros

140 M Ft
2 szoba
55 m2
Eladó családi ház
Eladó családi ház

Sóskút

109.9 M Ft
5 szoba
189 m2
Eladó családi ház
Eladó családi ház

Budakeszi, Makkosmária

100 M Ft
1 szoba
10 m2
Eladó családi ház
Eladó családi ház

Sóskút

65 M Ft
3 szoba
57 m2
Eladó családi ház
Eladó családi ház

Tápiószentmárton

7.9 M Ft
2 + 1 szoba
86 m2
Eladó családi ház
Eladó családi ház

Sóskút

35 M Ft
1 + 3 szoba
27 m2
Eladó családi ház
Eladó családi ház

Budakeszi

130 M Ft
5 szoba
30 m2
Eladó családi ház
Eladó családi ház

Dunakeszi

250 M Ft
4 szoba
180 m2
Eladó családi ház
Eladó családi ház

Érd

164.9 M Ft
5 szoba
192 m2
Eladó családi ház
Eladó családi ház

Sóskút

109.9 M Ft
5 szoba
189 m2
Eladó családi ház
Eladó családi ház

Sóskút

74.9 M Ft
3 szoba
87 m2
Eladó családi ház
Eladó családi ház

Sóskút

129.9 M Ft
5 szoba
200 m2
Eladó családi ház
Eladó családi ház

Sóskút

174.9 M Ft
5 szoba
246 m2
Eladó családi ház
Eladó családi ház

Sóskút

49.9 M Ft
4 szoba
100 m2
Eladó családi ház
Eladó családi ház

Sóskút

174.9 M Ft
5 szoba
246 m2
Eladó családi ház
Eladó családi ház

Leányfalu

237 M Ft
9 szoba
800 m2
Eladó családi ház
Eladó családi ház

Budakeszi, Budakeszi kertváros

229 M Ft
10 szoba
450 m2
Eladó családi ház
Eladó családi ház

Remeteszőlős

399.9 M Ft
5 + 2 szoba
260 m2
Eladó családi ház
Eladó családi ház

Budaörs, Odvshegy utca

268.9 M Ft
5 szoba
235 m2
Eladó családi ház
Eladó családi ház

Sóskút

37.9 M Ft
2 + 2 szoba
72 m2
Eladó családi ház
Eladó családi ház

Sóskút

129.9 M Ft
7 szoba
292 m2
Eladó családi ház
Eladó családi ház

Kerepes

199 M Ft
6 szoba
360 m2
Eladó családi ház
Eladó családi ház

Sóskút

87 M Ft
6 szoba
207 m2
Eladó családi ház
Eladó családi ház

Budaörs, Bányász utca

385 M Ft
6 szoba
300 m2

Falusi CSOK ingatlanok

Eladó családi ház
Eladó családi ház

Alattyán

45 M Ft
4 + 1 szoba
186 m2
Eladó családi ház
Eladó családi ház

Gyöngyöshalász

59 M Ft
4 + 3 szoba
214 m2
Eladó téglalakás
Eladó téglalakás

Balatonszemes

125.2 M Ft
2 szoba
50 m2
Eladó téglalakás
Eladó téglalakás

Balatonszemes

119.9 M Ft
2 szoba
81 m2
Eladó családi ház
Eladó családi ház

Kondorfa, Fővég utca

24.9 M Ft
3 szoba
102 m2
Eladó családi ház
Eladó családi ház

Ispánk

149 M Ft
6 szoba
250 m2
Eladó téglalakás
Eladó téglalakás

Balatonszemes

125.2 M Ft
2 szoba
50 m2
Eladó családi ház
Eladó családi ház

Csurgó

10 M Ft
2 szoba
80 m2