Pesti Házak

Eladó családi ház
Sóskút

+ 17 kép 1/20
76 900 000 Ft76.9 M Ft 883 908 Ft/m2
3 szoba
87 m2
építés éve:1930

Részletes adatok

Telekméret: 1112 m2
Fűtés: Egyéb
Energetikai besorolás: Nem adta meg a hirdető

Az OTP Bank lakáshitel ajánlataFizetett hirdetés

+36 30 600
Székely-Tóth Zsófia
OTPip - Érd Bajcsy-Zsilinszky út 160 - OTP Ingatlanpont Iroda

Érdekel az OTP Bank kedvezményes lakáshitel ajánlata? *

* A kérdésre „Igen” válasz bejelölése esetén, az „Üzenet küldése” gombra kattintva kijelentem, hogy az OTP Bank Nyrt. Adatkezelési tájékoztatójának tartalmát megismertem és tudomásul vettem.

Eladó családi ház leírása

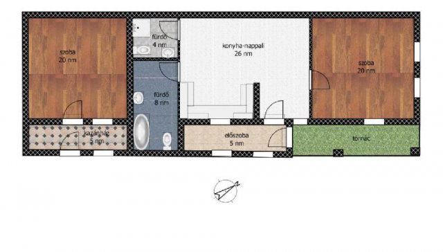
Sóskút egyik csendes utcájában vált eladóvá ez az igényesen felújított, önálló családi ház. Az 1112 nm-es telken lévő masszív alapokon megépített 87 nm-es otthon egy tornácos parasztház teljeskörű átépítésével született újjá. A ház sóskúti kőből, fagerendás födémszerkezettel épült, a korszerűsítés során új, műanyag nyílászárók kerültek beépítésre, gondos tulajdonosai kicserélték a víz, fűtés, elektromos vezetékeket, megtörtént a padló, födém és külső falak hőszigetelése. Új burkolatok, belső ajtók kerültek beépítésre. A kellemes hőérzetet korszerű, hőszivattyús klímák, valamint egy vegyes tüzelésű kazán látja el radiátoros hőleadókkal. A pala fedésű tető gerendái jó állapotban vannak. A szép állapotú otthon nagy belmagasságú terekkel rendelkezik, kialakításának köszönhetően minimális alakítással akár 2 generáció zavartalan együttélésére is lehetőséget ad! Kialakításra került benne egy előszoba, 2 fürdőszoba, konyha-étkező, 2 szoba, valamint a kazánház.
A kerten belül nagy méretű tároló, és nyitott parkolóhely is megtalálható, a mindennapokat az automata kertkapu teszi kényelmesebbé.
Lokációja kiváló, rendes, kultúrált szomszédság, buszmegálló, boltok, posta, orvosi rendelő, gyógyszertár, polgármesteri hivatal mindössze pár perc sétára megtalálhatóak.
A kínálatunkból választott ingatlan finanszírozásához az OTP Bank vevőinket kedvezményes hitelkonstrukcióval támogatja, valamint teljes körű ügyintézéssel áll az eladók és a vevők részére! A szerződés megkötéséhez igény esetén megbízható ügyvédi közreműködést biztosítunk, és segítséget nyújtunk az adásvételhez kapcsolódó ügyek intézéséhez. További információkért várom szeretettel megtisztelő érdeklődését a hét bármely napján!

Hirdetés feltöltve: 2025. 08. 07. Utoljára módosítva: 2025. 11. 02.

Az ingatlan elhelyezkedése

Cím: Sóskút

Eladó családi házak a környékről

Eladó családi ház
Eladó családi ház

Sóskút

64.9 M Ft
3 szoba
93 m2
Eladó családi ház
Eladó családi ház

Budakeszi

130 M Ft
5 szoba
30 m2
Eladó családi ház
Eladó családi ház

Sóskút

35 M Ft
1 + 3 szoba
27 m2
Eladó családi ház
Eladó családi ház

Sóskút

174.9 M Ft
5 szoba
246 m2
Eladó családi ház
Eladó családi ház

Sóskút

128 M Ft
6 szoba
210 m2
Eladó családi ház
Eladó családi ház

Szigetszentmiklós, Tököli út közeli utca

120 M Ft
7 szoba
525 m2
Eladó családi ház
Eladó családi ház

Budakeszi, Makkosmária

100 M Ft
1 szoba
10 m2
Eladó családi ház
Eladó családi ház

Sóskút

105 M Ft
4 szoba
240 m2
Eladó családi ház
Eladó családi ház

Sóskút

65 M Ft
3 szoba
57 m2
Eladó családi ház
Eladó családi ház

Budakeszi, Budakeszi kertváros

229 M Ft
10 szoba
450 m2
Eladó családi ház
Eladó családi ház

Kerepes

199 M Ft
6 szoba
360 m2
Eladó családi ház
Eladó családi ház

Budaörs, Odvshegy utca

268.9 M Ft
5 szoba
235 m2
Eladó családi ház
Eladó családi ház

Sóskút

84.9 M Ft
1 szoba
30 m2
Eladó családi ház
Eladó családi ház

Sóskút

105 M Ft
4 szoba
240 m2
Eladó családi ház
Eladó családi ház

Dunavarsány

69.9 M Ft
3 + 1 szoba
140 m2
Eladó családi ház
Eladó családi ház

Budakeszi, Budakeszi kertváros

140 M Ft
2 szoba
55 m2
Eladó családi ház
Eladó családi ház

Tahitótfalu

188 M Ft
7 szoba
280 m2
Eladó családi ház
Eladó családi ház

Sóskút

133.9 M Ft
7 szoba
292 m2
Eladó családi ház
Eladó családi ház

Sóskút

49.9 M Ft
4 szoba
100 m2
Eladó családi ház
Eladó családi ház

Leányfalu

237 M Ft
9 szoba
800 m2
Eladó családi ház
Eladó családi ház

Sóskút, Mártírok útja

87 M Ft
6 szoba
207 m2
Eladó családi ház
Eladó családi ház

Sóskút

146.99 M Ft
2 + 2 szoba
110 m2
Eladó családi ház
Eladó családi ház

Tápiószele

32.9 M Ft
4 szoba
200 m2
Eladó családi ház
Eladó családi ház

Tápiószentmárton

7.9 M Ft
2 + 1 szoba
86 m2

Falusi CSOK ingatlanok

Eladó családi ház
Eladó családi ház

Tiszaroff

15.5 M Ft
2 szoba
63 m2
Eladó családi ház
Eladó családi ház

Tóalmás

35 M Ft
1 szoba
36 m2
Eladó családi ház
Eladó családi ház

Seregélyes

75 M Ft
6 szoba
160 m2
Eladó családi ház
Eladó családi ház

Veszprémfajsz

149 M Ft
5 szoba
179 m2
Eladó családi ház
Eladó családi ház

Gyékényes

35.9 M Ft
5 szoba
205 m2
Eladó családi ház
Eladó családi ház

Kocsér

31.9 M Ft
2 + 1 szoba
68 m2
Eladó családi ház
Eladó családi ház

Nagybaracska

42 M Ft
3 szoba
144 m2
Eladó családi ház
Eladó családi ház

Geresdlak

44.9 M Ft
4 + 1 szoba
200 m2