Metrodom

Eladó családi ház
Soltvadkert

+ 16 kép 1/19
100 613 205 Ft100.613 M Ft 407 341 Ft/m2
4 + 1 szoba
247 m²
építés éve:1990

Részletes adatok

Telekméret: 4064 m2
Fűtés: Egyéb
Parkolás: Garázs
Közmű: Víz, Villany, Szélessáv, KábelTV
Energetikai besorolás: D

Az OTP Bank lakáshitel ajánlataFizetett hirdetés

+36 30 509
Juhász Ingatlan
Juhász Ingatlan

Érdekel az OTP Bank kedvezményes lakáshitel ajánlata? *

* A kérdésre „Igen” válasz bejelölése esetén, az „Üzenet küldése” gombra kattintva kijelentem, hogy az OTP Bank Nyrt. Adatkezelési tájékoztatójának tartalmát megismertem és tudomásul vettem.

Eladó családi ház leírása

Luxus vidéki birtok Soltvadkert közelében – két lakóház, szauna, garázsok, teljes nyugalom
Bács-Kiskun vármegye – Soltvadkert külterület
Ár: 98.000.000 Ft
Ha olyan ingatlant keres, ahol a természet közelsége, a teljes nyugalom és a tágas élettér találkozik, akkor ez a különleges vidéki birtok valódi ritkaság.
A tulajdoni lapon kivett tanya és szőlő megnevezéssel szereplő, összesen 4064 m²-es parkosított területen két különálló lakóépület található. A gondosan kialakított birtok szomszédmentes, így a nyugalom és a privát élettér garantált.
Az ingatlan Soltvadkert központjától kb. 10 km-re, csendes természetközeli környezetben helyezkedik el.
Két különálló lakóépület
A birtokon két lakóingatlan található, amelyek ideálisak:

több generáció számára
vendégház kialakítására
vidéki turizmusra
vagy akár vállalkozási célra

Mindkét épület szigetelt, falazatuk vályog és tégla.
A nyílászárók fa és műanyag kivitelűek.
Mindkét ház külön vegyes tüzelésű kazánnal rendelkezik, emellett egy külön épületben található egy nagy teljesítményű kazán, amely szükség esetén mindkét épület fűtését biztosítja.
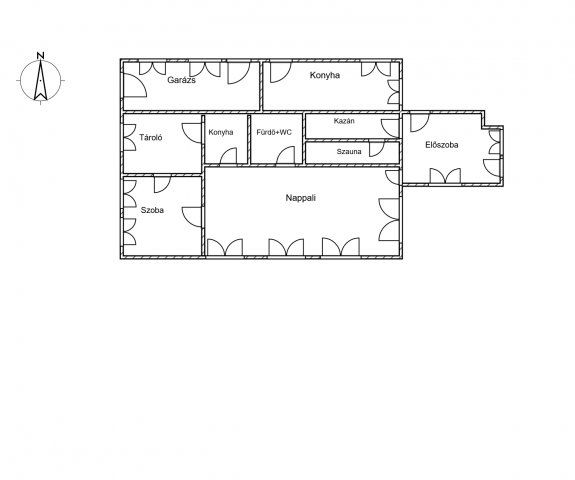
I. Épület helyiségei:
Szoba: 22m2
Nappali: 44m2
Konyha: 8m2
Konyha: 7,1 m2
Fürdőszoba: 4,2 m2
WC: 2 m2
Közlekedő: 9,5 m2
Tároló: 7 m2
Kazánház+Szauna: 6,2 m2
Garázs: 17 m2
Összesen: 127m2

II. Épület Helyiségek
Szoba: 19 m2
Szoba: 12 m2
Szoba: 21 m2
Nappali+Étkező: 26 m2
Konyha: 10 m2
Fürdő+WC: 7,7 m2
Fürdő+WC: 22 m2
Belépő: 2 m2
Összesen: 120 m2
Parkosított birtok
A teljes terület körbekerített, elektromos kapuval ellátott.
Extrák:

parkosított udvar
automata öntözőrendszer
kamerarendszer
autóval körbejárható udvar
murvakaviccsal borított út
több fedett kiülő és étkezőhely
2 szauna

Az udvaron 5 garázs található, melyből 3 dupla garázs.
Az egyik garázs felett játszószoba került kialakításra.
További lehetőségek
Az ingatlanhoz további terület vásárolható vagy bérelhető, amely nagyrészt fenyvesből áll, valamint egy mesterségesen kialakított halastó is található rajta szivattyúrendszerrel (jelenleg nem üzemel).
Műszaki jellemzők

ipari áram
internet és kábel TV
saját ökoszivattyú rendszer
több melléképület
műút kb. 2 km

Ideális választás
-vidéki birtoknak
- több generáció számára
-falusi turizmushoz
- gazdálkodásra
- természetközeli életre
Érdeklődni:
Juhász Krisztina
+36 30 509 0434
juhaszk.ingatlan@gmail.com

Hirdetés feltöltve: 2026. 03. 13. Utoljára módosítva: 2026. 04. 01.

5 szobás családi házak ára Soltvadkerten

Ebből az összehasonlításból megtudhatod, hogyan viszonyul a lakás ára a környékbeli családi házak átlagos árához. Ez nem azt jelenti, hogy ennyivel olcsóbb vagy drágább, mint amennyit a lakás ér, hanem hogy ennyivel tér el a környékbeli átlagtól.

Ennek a m² ára
Soltvadkert m² ár
407 e Ft
156 e Ft -161%
Ennek az ára
Soltvadkert átlagár
100.613 M Ft m Ft
30 m Ft -235%

Az ingatlan elhelyezkedése

Cím: Soltvadkert

Eladó ingatlanok a környékről

Kiskunhalas
Eladó családi ház

Kiskunhalas

47 M Ft
1.24 ha
183 m²
Kecskemét, Alsószéktó, Alsószéktó 138
Eladó családi ház

Kecskemét

58 M Ft
5 szoba
92 m²
Soltvadkert
Eladó családi ház

Soltvadkert

18 M Ft
3 szoba
94 m²
Kecskemét
Eladó családi ház

Kecskemét

39.9 M Ft
2 szoba
110 m²
Kecskemét
Eladó családi ház

Kecskemét

24.9 M Ft
3 szoba
62 m²
Fülöpháza
Eladó családi ház

Fülöpháza

68 M Ft
6 szoba
250 m²
Kunadacs
Eladó családi ház

Kunadacs

210 M Ft
14 szoba
920 m²
Soltvadkert
Eladó családi ház

Soltvadkert

24.99 M Ft
2 szoba
65 m²
Soltvadkert
Eladó családi ház

Soltvadkert

16.9 M Ft
3 szoba
95 m²
Soltvadkert
Eladó családi ház

Soltvadkert

57 M Ft
5 szoba
156 m²
Soltvadkert
Eladó családi ház

Soltvadkert

69.9 M Ft
4 szoba
185 m²
Kiskunhalas
Eladó családi ház

Kiskunhalas

27.9 M Ft
3 szoba
101 m²
Soltvadkert
Eladó családi ház

Soltvadkert

30 M Ft
3 szoba
106 m²
Kecskemét, Alsószéktó, Alsószéktó 138
Eladó családi ház

Kecskemét

63 M Ft
5 szoba
91 m²
Kiskunmajsa, 1
Eladó családi ház

Kiskunmajsa

60.9 M Ft
6 szoba
220 m²
Soltvadkert
Eladó családi ház

Soltvadkert

55 M Ft
8 szoba
230 m²
Kiskunhalas
Eladó téglalakás

Kiskunhalas

34.9 M Ft
2 szoba
60 m²
Soltvadkert
Eladó családi ház

Soltvadkert

16.9 M Ft
3 szoba
95 m²
Kecskemét, Alsószéktó, Alsószéktó 138
Eladó családi ház

Kecskemét

55 M Ft
5 szoba
91 m²
Soltvadkert, 1
Eladó családi ház

Soltvadkert

28.233 M Ft
3 szoba
134 m²
Bugac
Eladó családi ház

Bugac

9.8 M Ft
4 szoba
67 m²
Kecskemét
Eladó családi ház

Kecskemét

93 M Ft
3 szoba
140 m²
Kecskemét
Eladó családi ház

Kecskemét

135 M Ft
5 szoba
220 m²
Soltvadkert
Eladó családi ház

Soltvadkert

17.99 M Ft
2 szoba
62 m²

Falusi CSOK ingatlanok

Szentmártonkáta
Eladó családi ház

Szentmártonkáta

51.9 M Ft
5 szoba
150 m²
Csemő
Eladó családi ház

Csemő

61.9 M Ft
3 szoba
88 m²
Ostffyasszonyfa
Eladó családi ház

Ostffyasszonyfa

37.9 M Ft
5 szoba
494 m²
Bag
Eladó családi ház

Bag

16.9 M Ft
6 szoba
160 m²
Perbál
Eladó családi ház

Perbál

130 M Ft
5 szoba
190 m²
Vajszló
Eladó családi ház

Vajszló

43 M Ft
4 szoba
123 m²
Nyáregyháza
Eladó családi ház

Nyáregyháza

189 M Ft
2 szoba
260 m²
Nyáregyháza
Eladó családi ház

Nyáregyháza

114.99 M Ft
7 szoba
267 m²