City Pearl

Eladó családi ház
Siófok

87 000 000 Ft87 M Ft 1 225 352 Ft/m2
4 szoba
71 m2
építés éve:2026

Részletes adatok

Telekméret: 300 m2
Fűtés: Egyéb
Emelet: földszint
Közmű: Villany, Csatorna
Energetikai besorolás: Nem adta meg a hirdető

Az OTP Bank lakáshitel ajánlataFizetett hirdetés

+36 70 465
Bezzeg Nikoletta
referens

Érdekel az OTP Bank kedvezményes lakáshitel ajánlata? *

* A kérdésre „Igen” válasz bejelölése esetén, az „Üzenet küldése” gombra kattintva kijelentem, hogy az OTP Bank Nyrt. Adatkezelési tájékoztatójának tartalmát megismertem és tudomásul vettem.

Eladó családi ház leírása

Siófok, Ezüstpart közelében - Egy új ház azoknak, akik nem szeretnek zajban élni.

Eladásra kínálunk egy új építésű, földszintes, önálló családi házat Siófokon, az Ezüstpart szabadstrandtól 1000 méterre.
Az ingatlan kulcsrakészen kerül átadásra, a kivitelezés minden részlete a hosszú távú minőségre és az alacsony üzemeltetési költségekre lett optimalizálva.

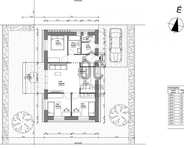
A 61–71 m² alapterületű házak átgondolt alaprajzzal készülnek:
Nappali–amerikai konyha, 2–3 hálószoba, fürdőszoba, külön WC, terasz.
Földszintes kialakítás, természetes térarányok, élhető méretek.

A szerkezet 30 cm-es Porotherm téglából épül, korszerű hőszigeteléssel, háromrétegű nyílászárókkal.
A fűtést és a használati melegvizet levegő–víz hőszivattyú biztosítja, padlófűtéssel.
A burkolatok és szaniterek meghatározott árkategórián belül választhatók.

Az ár tartalmazza a 3D kerítést, a tereprendezést és a felszíni gépkocsi-beállót.

A projektben összesen 12 önálló ház épül, külön bejárattal és saját kerítéssel.
A főbb építőanyagok már rendelkezésre állnak. Várható átadás: 2026. második negyedév.

A környezet csendes, zöld, nem a főút és nem a Balaton felőli oldalon található.
A Balaton 15 perc sétával elérhető, a mindennapi infrastruktúra néhány percre van.

Ez az ingatlan nem látványos ígéretekkel operál.
Egyszerűen jól lesz megépítve.

Tervdokumentáció és részletes műszaki tartalom kérhető.
Projekt bemutatása

Siófok, Ezüstpart közelében – ÚJ, FÖLDSZINTES otthon CSENDES, ZÖLD környezetben.

Olyan házat keres, ahol a NYUGALOM és a PRAKTIKUM találkozik?
Eladásra kínálunk Siófokon, az Ezüstpart szabadstrandtól mindössze 1000 méterre egy KULCSRAKÉSZ, önálló, földszintes családi házat.

A kivitelezés fókusza az IDŐTÁLLÓ MINŐSÉG és az ALACSONY ÜZEMELTETÉSI KÖLTSÉG – felesleges ígéretek nélkül.

Átgondolt elrendezés, ÉLHETŐ méretek: 61–71 m² alapterület.
Nappali–amerikai konyha, 2–3 hálószoba, fürdőszoba, KÜLÖN WC, TERASZ.
A LÉPCSŐMENTES kialakítás és a természetes térarányok KÉNYELMES mindennapokat biztosítanak az idősebb korosztály számára is.

Megbízható műszaki tartalom:
- 30 cm POROTHERM falazat, KORSZERŰ HŐSZIGETELÉS
- HÁROMRÉTEGŰ NYÍLÁSZÁRÓK a jobb hő- és hangkomfortért
- LEVEGŐ–VÍZ HŐSZIVATTYÚ és PADLÓFŰTÉS – ENERGIAHATÉKONY működés
- Burkolatok és szaniterek VÁLASZTHATÓK meghatározott árkategórián belül

- Az ár tartalmazza:
3D KERÍTÉS, TEREPRENDEZÉS, FELSZÍNI GÉPKOCSI-BEÁLLÓ

Projektinformációk:
Összesen 12 ÖNÁLLÓ HÁZ épül, mindegyik KÜLÖN BEJÁRATTAL és SAJÁT KERÍTÉSSEL.
A főbb építőanyagok rendelkezésre állnak.
Várható átadás: 2026. MÁSODIK NEGYEDÉV.

Elhelyezkedés:
CSENDES, ZÖLD utcák, nem a főút és nem a Balaton felőli oldal.
A Balaton 15 perc SÉTA, a mindennapi INFRASTRUKTÚRA néhány percre elérhető.

„Ez az ingatlan nem látványos ígéretekkel operál. Egyszerűen jól lesz megépítve.”

Tervdokumentáció és részletes műszaki tartalom kérhető.

#siofok #ezustpart_kozeleben #uj_haz #foldszintes #onallo_csaladi_haz #kulcsrakeszen #eladohaz #siofok #eladohazsiofok#fokihegy

Hirdetés feltöltve: 2026. 01. 23. Utoljára módosítva: 2026. 01. 23.

4 szobás családi házak ára Siófokon

Ebből az összehasonlításból megtudhatod, hogyan viszonyul a lakás ára a környékbeli családi házak átlagos árához. Ez nem azt jelenti, hogy ennyivel olcsóbb vagy drágább, mint amennyit a lakás ér, hanem hogy ennyivel tér el a környékbeli átlagtól.

Ennek a m² ára
Siófok m² ár
1225 e Ft
1133 e Ft -8%
Ennek az ára
Siófok átlagár
87 M Ft m Ft
140.7 m Ft 38%

Az ingatlan elhelyezkedése

Cím: Siófok

Eladó családi házak a környékről

Eladó családi ház
Eladó családi ház

Siófok

159 M Ft
3 szoba
119 m2
Eladó családi ház
Eladó családi ház

Siófok

139.9 M Ft
10 szoba
385 m2
Eladó családi ház
Eladó családi ház

Siófok

135 M Ft
7 + 2 szoba
250 m2
Eladó családi ház
Eladó családi ház

Balatonlelle

250 M Ft
12 szoba
260 m2
Eladó családi ház
Eladó családi ház

Zamárdi

126 M Ft
6 szoba
120 m2
Eladó családi ház
Eladó családi ház

Siófok

400 M Ft
15 szoba
500 m2
Eladó családi ház
Eladó családi ház

Siófok

549 M Ft
9 szoba
310 m2
Eladó családi ház
Eladó családi ház

Marcali

149 M Ft
7 + 4 szoba
400 m2
Eladó családi ház
Eladó családi ház

Siófok

498 M Ft
10 szoba
975 m2
Eladó családi ház
Eladó családi ház

Siófok

330 M Ft
12 szoba
Eladó családi ház
Eladó családi ház

Siójut

32 M Ft
4 szoba
108 m2
Eladó családi ház
Eladó családi ház

Bábonymegyer

19.9 M Ft
4 szoba
100 m2
Eladó családi ház
Eladó családi ház

Siófok

150 M Ft
6 szoba
168 m2
Eladó családi ház
Eladó családi ház

Siófok

549 M Ft
9 szoba
310 m2
Eladó családi ház
Eladó családi ház

Siófok

120.5 M Ft
4 szoba
138 m2
Eladó családi ház
Eladó családi ház

Siófok

72 M Ft
3 szoba
60 m2
Eladó családi ház
Eladó családi ház

Siófok

72 M Ft
5 szoba
132 m2
Eladó családi ház
Eladó családi ház

Siófok

135 M Ft
7 + 2 szoba
250 m2
Eladó családi ház
Eladó családi ház

Siófok

71.8 M Ft
3 szoba
66 m2
Eladó családi ház
Eladó családi ház

Siófok

125 M Ft
5 szoba
90 m2
Eladó családi ház
Eladó családi ház

Balatonszentgyörgy

134 M Ft
4 szoba
170 m2
Eladó családi ház
Eladó családi ház

Balatonfenyves

77 M Ft
7 szoba
120 m2
Eladó családi ház
Eladó családi ház

Marcali

95 M Ft
5 szoba
230 m2
Eladó családi ház
Eladó családi ház

Látrány

74.99 M Ft
4 szoba
138 m2

Falusi CSOK ingatlanok

Eladó családi ház
Eladó családi ház

Mályi

84.9 M Ft
4 szoba
100 m2
Eladó családi ház
Eladó családi ház

Hercegszántó

7 M Ft
3 szoba
120 m2
Eladó családi ház
Eladó családi ház

Csengőd

42 M Ft
2 szoba
81 m2
Eladó családi ház
Eladó családi ház

Szabadbattyán

163.99 M Ft
5 szoba
255 m2
Eladó családi ház
Eladó családi ház

Vid

29 M Ft
4 szoba
100 m2
Eladó családi ház
Eladó családi ház

Dág

39.9 M Ft
2 szoba
80 m2
Eladó családi ház
Eladó családi ház

Zalacsány

75 M Ft
3 szoba
90 m2
Eladó családi ház
Eladó családi ház

Lesenceistvánd

75 M Ft
2 szoba
90 m2