Eladó családi ház
Siófok
Részletes adatok
Az OTP Bank lakáshitel ajánlataFizetett hirdetés
Induló törlesztőrészlet
101 262 Ft /hóTörlesztőrészlet a 13. hónaptól
129 106 Ft /hóInduló törlesztőrészlet
135 016 Ft /hóTörlesztőrészlet a 13. hónaptól
172 142 Ft /hóA tájékoztatás nem teljes körű és nem minősül ajánlattételnek. Az OTP Évnyerő Lakáshitelei 1 éves türelmi idős kölcsönök, amellyel az első 12 hónapban alacsonyabb a havi törlesztőrészlet. A tőke törlesztését a 13. hónaptól kell megkezdeni.
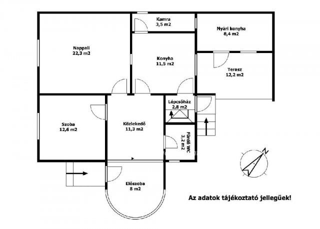
Eladó családi ház leírása
Balaton déli part, Siófok, 75 m2 családi ház eladó. Az ingatlan a Belvároshoz közel, forgalmas út mellett helyezkedik el. A földszintes lakóépület több elemében az elmúlt években felújításra került, nyílászárók nagy részben korszerű műanyag szerkezetek, a külső homlokzat hőszigetelést és új vakolatot kapott, a tető, tetőhéjazat megújult. A belső térben új padlóburkolatok készültek, közlekedőben elektromos padlófűtéssel. A fűtés elektromos infra panelekkel megoldott. A lakótérben hűtő fűtő klímaberendezés került kiépítésre. A jól karbantartott épület kedvező tájolású, déli-nyugati benapozású. A konyhabútor a vételár részét képezi, a többi berendezés további megegyezés tárgya lehet. A telek területe 316 m2. A lakóépület részben alápincézett, mögötte nyári konyha és fedett terasz található. Balaton-part 1500 méterre, autóval 5 perc alatt elérhető. Otthon Start Program. Bővebb információért keressen telefonon!
Hirdetés feltöltve: 2025. 10. 22. Utoljára módosítva: 2025. 10. 22.
2 szobás családi házak ára Siófokon
Ebből az összehasonlításból megtudhatod, hogyan viszonyul a lakás ára a környékbeli családi házak átlagos árához. Ez nem azt jelenti, hogy ennyivel olcsóbb vagy drágább, mint amennyit a lakás ér, hanem hogy ennyivel tér el a környékbeli átlagtól.
Az ingatlan elhelyezkedése
Cím: Siófok
Eladó családi házak a környékről
