Eladó családi ház
Siófok

+ 15 kép 1/18
57 000 000 Ft57 M Ft 655 172 Ft/m2
3 szoba
87 m2
építés éve:1965

Részletes adatok

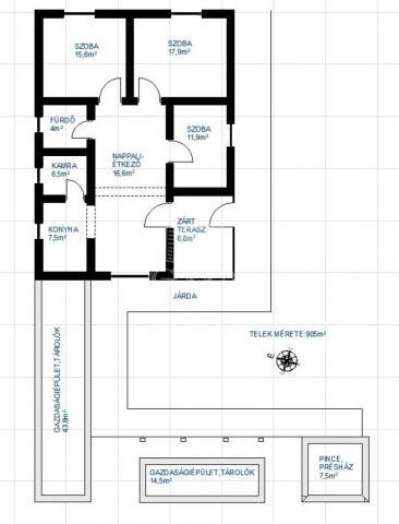
Telekméret: 905 m2
Fűtés: Gázkonvektor
Parkolás: Kocsibeálló
Energetikai besorolás: Nem adta meg a hirdető

Az OTP Bank lakáshitel ajánlataFizetett hirdetés

+36 20 397
Miklósné Csapó Andrea
referens

Érdekel az OTP Bank kedvezményes lakáshitel ajánlata? *

* A kérdésre „Igen” válasz bejelölése esetén, az „Üzenet küldése” gombra kattintva kijelentem, hogy az OTP Bank Nyrt. Adatkezelési tájékoztatójának tartalmát megismertem és tudomásul vettem.

Eladó családi ház leírása

Siófokon eladásra kínálunk egy csendes kertvárosias részen lévő 87 m2 hasznos alapterületű családi házat, 905 m2-es telekkel, a GDN Ingatlanhálózat kínálatából.

Tulajdonságok:
- A Balatontól kb. 3 kilométerre helyezkedik el a szépen karbantartott családi ház, + melléképületekkel.
- Az üveges teraszról a szép tágas előtérbe jutunk, innen nyílik a konyha étkezővel, a 3 szoba és a fürdőszoba WC-vel. A konyhából még egy tágas kamra is található, a padlás feljáróval. .
- Továbbá a ház folytatásában melléképületek láthatóak és a mellékletben található alaprajz szépen megmutatja azt, hogy például a pince hol található a telken.
- Víz, villany, gáz, csatorna a házba bekötésre került. A kertben található még ásott kút és kerti csap is.
- A tető hélyazata hódfarkú cserép, a nyílászárók pedig műanyag és fa szerkezetűek, az ablakokat redőnnyel látták el.
- A ház fűtése gázkonvektorral megoldott, emellett még megtalálható hűtő-fűtő klíma is.
- A parkolás a telken belül több autónak is helyet ad, az út aszfaltos.
- A közelben található buszmegálló és különféle bevásárló üzletek.

- Ajánlom azoknak, akik Siófokon szeretnének letelepedni, valamint ingatlanbefektetőknek!
- Az ingatlan tehermentes!

Ne hagyja ki ezt a remek lehetőséget!

Amennyiben a veszprémi GDN Ingatlaniroda által kínált családi ház, vagy bármely, a kínálatunkban található ingatlan felkeltette érdeklődését, forduljon hozzám bizalommal!

Ingatlanirodánk díjmentes, banksemleges hitelügyintézéssel, illetve ügyvédi tanácsadással is áll Ügyfeleink rendelkezésére! ...TOVÁBBI, TÖBBEZRES INGATLAN KÍNÁLAT: www.gdn-ingatlan.hu - GDN azonosító: 388485

Hirdetés feltöltve: 2025. 10. 15.

3 szobás családi házak ára Siófokon

Ebből az összehasonlításból megtudhatod, hogyan viszonyul a lakás ára a környékbeli családi házak átlagos árához. Ez nem azt jelenti, hogy ennyivel olcsóbb vagy drágább, mint amennyit a lakás ér, hanem hogy ennyivel tér el a környékbeli átlagtól.

Ennek a m² ára
Siófok m² ár
655 e Ft
1097 e Ft 40%
Ennek az ára
Siófok átlagár
57 M Ft m Ft
85.6 m Ft 33%

Az ingatlan elhelyezkedése

Cím: Siófok

Eladó családi házak a környékről

Eladó családi ház
Eladó családi ház

Balatonföldvár

78.821 M Ft
4 szoba
93 m2
Eladó családi ház
Eladó családi ház

Balatonföldvár

223 M Ft
2 + 2 szoba
184 m2
Eladó családi ház
Eladó családi ház

Marcali, Igényes családi ház+Apartman

97.75 M Ft
5 + 1 szoba
165 m2
Eladó családi ház
Eladó családi ház

Siófok

159 M Ft
3 szoba
119 m2
Eladó családi ház
Eladó családi ház

Balatonberény

128 M Ft
3 + 1 szoba
121 m2
Eladó családi ház
Eladó családi ház

Marcali, Rendezett családi ház+Apartman

72.9 M Ft
4 + 1 szoba
135 m2
Eladó családi ház
Eladó családi ház

Siófok

549 M Ft
9 szoba
310 m2
Eladó családi ház
Eladó családi ház

Balatonkeresztúr, Újépítésü,igényes Apartmanház!!

163 M Ft
7 szoba
200 m2
Eladó családi ház
Eladó családi ház

Siófok

159 M Ft
3 szoba
119 m2
Eladó családi ház
Eladó családi ház

Siófok

92.99 M Ft
3 szoba
90 m2
Eladó családi ház
Eladó családi ház

Siófok

369.99 M Ft
12 szoba
495 m2
Eladó családi ház
Eladó családi ház

Siófok

498 M Ft
10 szoba
975 m2
Eladó családi ház
Eladó családi ház

Siójut

32 M Ft
4 szoba
108 m2
Eladó családi ház
Eladó családi ház

Marcali

95 M Ft
5 szoba
230 m2
Eladó családi ház
Eladó családi ház

Siófok

400 M Ft
15 szoba
500 m2
Eladó családi ház
Eladó családi ház

Somogyzsitfa

52.8 M Ft
5 szoba
140 m2
Eladó családi ház
Eladó családi ház

Siófok

68 M Ft
3 szoba
64 m2
Eladó családi ház
Eladó családi ház

Siófok

72 M Ft
3 szoba
60 m2
Eladó családi ház
Eladó családi ház

Siófok

170 M Ft
14 szoba
350 m2
Eladó családi ház
Eladó családi ház

Siófok

129.99 M Ft
4 szoba
138 m2
Eladó családi ház
Eladó családi ház

Siófok

99 M Ft
11 szoba
370 m2
Eladó családi ház
Eladó családi ház

Balatonlelle

123 M Ft
3 + 2 szoba
140 m2
Eladó családi ház
Eladó családi ház

Zamárdi

126 M Ft
6 szoba
120 m2
Eladó családi ház
Eladó családi ház

Siófok, Petőfi Sándor utca

39.5 M Ft
3 szoba
90 m2

Falusi CSOK ingatlanok

Eladó családi ház
Eladó családi ház

Szőlősgyörök, Táncsics Mihály utca

47.999 M Ft
5 szoba
105 m2
Eladó téglalakás
Eladó téglalakás

Hegyeshalom

35 M Ft
43 m2
Eladó családi ház
Eladó családi ház

Majs

28.5 M Ft
3 szoba
160 m2
Eladó családi ház
Eladó családi ház

Lengyeltóti

37.9 M Ft
3 szoba
90 m2
Eladó családi ház
Eladó családi ház

Szilvágy

49.99 M Ft
3 szoba
90 m2
Eladó családi ház
Eladó családi ház

Tápióság

29.9 M Ft
2 szoba
65 m2
Eladó családi ház
Eladó családi ház

Kánya

27.6 M Ft
3 + 1 szoba
62 m2
Eladó családi ház
Eladó családi ház

Tök

96.2 M Ft
4 szoba
104 m2